Каркасно-панельный двухэтажный дом AET-011

Характеристика дома:
Общая площадь
179,4 m²
Жилая площадь
92,3 m²
Количество этажей
Двухэтажный
Количество санузлов
3
Количество человек
4-6
Особенности
Панорамное остекление, Терраса
Стоимость от
12 109 500 руб
Контакты для связи:
Способы оплаты
С помощью интернет банкинга
Рассрочки / кредитование
Досрочное погашение
Предчистовая отделка включена
Гарантия на проект
Фиксированная цена
Стоимость, указанная в договоре, не меняется в ходе строительства
Гибкая система оплаты
Вы вносите 5% от стоимости при подписании договора. Остаток оплачиваете частями.
Акция
Изменение проекта или адаптация проекта другой компании - БЕСПЛАТНО

О проекте Каркасно-панельный двухэтажный дом AET-011

Этот солидный двухэтажный особняк идеально подходит для большой семьи. Здесь могут с комфортом разместиться до 6 человек. Если Вас интересуют проекты одноэтажных домов, обратите внимание на другие наши проекты. Со своей стороны мы можем порекомендовать Вам отличный, компактный, но вместительный дом AET-020.

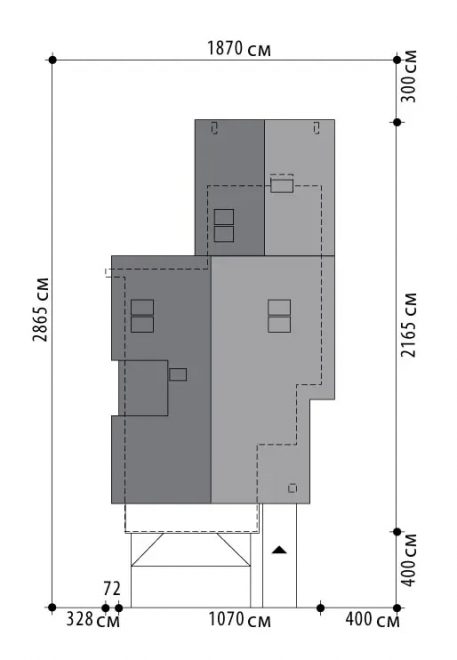
Первый этаж (дневная зона) включает в себя кухню, кладовую, столовую и гостиную со вторым светом — большим окном в верхней части стены, которое добавляет ей света и ощущения простора. Из этой комнаты на террасу ведут стеклянные двери. Там, под двускатной крышей с ажурным декором, обустроена площадка для отдыха на свежем воздухе

Для гостей на первом этаже предусмотрена отдельная комната с примыкающей к ней ванной комнатой. Она имеет отдельный выход в сад, так что приглашенному обеспечена приватность, комфорт и возможность отдыхать, не стесняя хозяев. Кстати, в доме предусмотрен гараж на две машины, так что с парковкой тоже не возникнет проблем.

На второй этаж ведет одномаршевая лестница, пространство под которой можно использовать как шкаф или мини-кладовую в дополнение к той, что находится возле кухни. Мансарда же включает в себе две спальни для детей, одну — для родителей, а также большую ванную комнату. Она в ней достаточно места, чтобы поместились ванна, душевая кабина, унитаз, биде, раковина, а также стильная машина и сушильный автомат. Более того, площадь позволяет обустроить тут финскую сауну или хамам.

И конечно, большим достоинством второго этажа является большая, просторная терраса, объединяющая две комнаты.

Закажите бесплатный расчет

Характеристика
Общая площадь
179,4 m²
Жилая площадь
92,3 m²
Количество этажей
Двухэтажный
Количество санузлов
3
Количество человек
4-6
Особенности
Панорамное остекление, Терраса
Отделка фасада
Камень, Планкен, Штукатурка
Форма крыши
Многоскатная
Популярные проекты
Каркасно-панельный дом 6 на 8 AET-125
Общая площадь
67,55 м²
Жилая площадь
41,66 м²
Площадь первого этажа
34,84 м²
Площадь мансарды
30,76 м²
Стоимость от
2 512 000 руб
Каркасно-панельный дом 6 на 8 AET-124
Общая площадь
65,06 м²
Жилая площадь
41,87 м²
Площадь первого этажа
34,84 м²
Площадь мансарды
30,75 м²
Стоимость от
2 511 900 руб
Каркасно-панельный дом 6 на 8 AET-132
Общая площадь
50,90 м²
Жилая площадь
39,00 м²
Полезная площадь
51 м²
Площадь застройки
69,70 м²
Стоимость от
2 331 500 руб
Все проекты
Обратная связь
Оставьте заявку и получите проект дома в подарок