Быстровозводимый дом AET-020

Характеристика дома:
Общая площадь
184,0 m²
Жилая площадь
81,9 m²
Количество этажей
Одноэтажный
Количество санузлов
2
Количество человек
5 и более
Особенности
Панорамное остекление, Терраса
Стоимость от
13 283 000 руб
Контакты для связи:
Способы оплаты
С помощью интернет банкинга
Рассрочки / кредитование
Досрочное погашение
Предчистовая отделка включена
Гарантия на проект
Фиксированная цена
Стоимость, указанная в договоре, не меняется в ходе строительства
Гибкая система оплаты
Вы вносите 5% от стоимости при подписании договора. Остаток оплачиваете частями.
Акция
Изменение проекта или адаптация проекта другой компании - БЕСПЛАТНО

О проекте Быстровозводимый дом AET-020

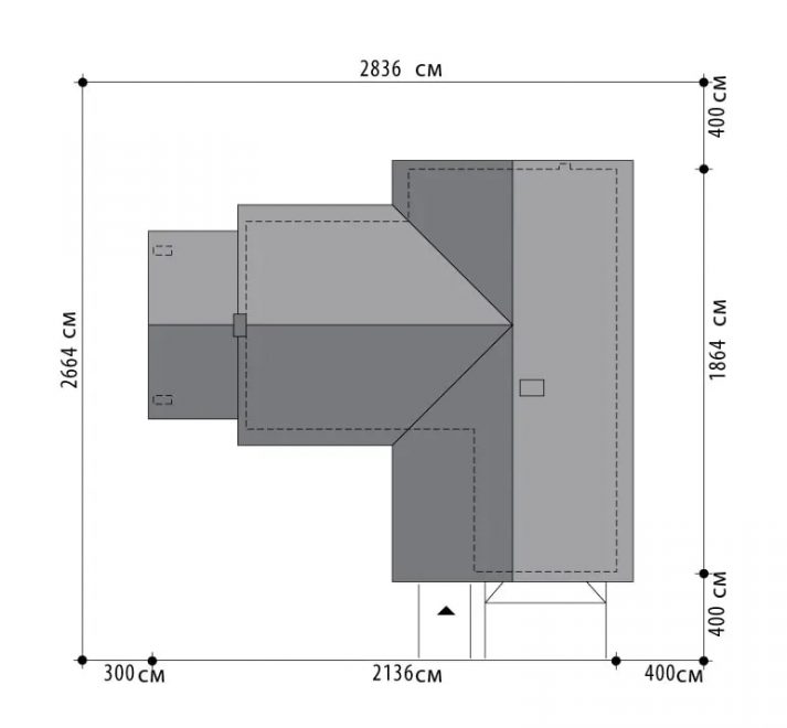
Этот одноэтажный загородный дом при относительно небольшой (184 м2) площади обеспечит комфортную жизнь семье из 5 человек. В нем четыре спальни, каждая из которых имеет собственную гардеробную, два санузла, а также кухня, гостиная, объединенная со столовой, несколько технических помещений и гараж на две машины. Если Вас интересуют дома без гаража, рекомендуем присмотреться к этому двухэтажному загородному дому.

Проект идеально подходит тем, кто любит наслаждаться отдыхом на свежем воздухе — у дома есть две террасы. На одну ведут стеклянные двери гостиной, на вторую же можно выйти из большой спальни.

В доме предусмотрен двойной камин — один в гостиной, другой — на террасе. Оба отопительных устройства имеют общий дымоход, точнее, короб, в котором проходят две изолированных металлических трубы-сэндвича. Только так можно обеспечить эффективный отвод продуктов сгорания без проблем с тягой.

Дом имеет большую площадь остекления. В гостиной это обычные окна и панорамные двери, в спальне — угловая светопрозрачная конструкция, совмещающая функции окна и двери. Даже гараж имеет окно с треугольными створками, расположенное в верхней части фасадной стены. Обилие естественного света позволяет ощутимо экономить на электричестве.

Крыша дома — комбинированная, с тремя парами скатов, спроектирована таким образом, чтобы избежать лавинообразного схода снега даже после сильных метелей. В качестве кровельного покрытия мы рекомендуем клик фальц, металлическую или битумную черепицу. Фасады на промо-изображении отделаны штукатуркой, искусственным камнем и планкеном, который при желании можно заменить на фиброцементный сайдинг или выбрать другой облицовочный материал.

Закажите бесплатный расчет

Характеристика
Общая площадь
184,0 m²
Жилая площадь
81,9 m²
Количество этажей
Одноэтажный
Количество санузлов
2
Количество человек
5 и более
Особенности
Панорамное остекление, Терраса
Отделка фасада
Искусственный камень, Планкен, Штукатурка
Форма крыши
Комбинированная
Популярные проекты
Каркасно-панельный дом 6 на 8 AET-125
Общая площадь
67,55 м²
Жилая площадь
41,66 м²
Площадь первого этажа
34,84 м²
Площадь мансарды
30,76 м²
Стоимость от
2 512 000 руб
Каркасно-панельный дом 6 на 8 AET-124
Общая площадь
65,06 м²
Жилая площадь
41,87 м²
Площадь первого этажа
34,84 м²
Площадь мансарды
30,75 м²
Стоимость от
2 511 900 руб
Каркасно-панельный дом 6 на 8 AET-132
Общая площадь
50,90 м²
Жилая площадь
39,00 м²
Полезная площадь
51 м²
Площадь застройки
69,70 м²
Стоимость от
2 331 500 руб
Все проекты
Обратная связь
Оставьте заявку и получите проект дома в подарок