Быстровозводимый одноэтажный дом AET-026

Характеристика дома:
Общая площадь
184,8 m²
Жилая площадь
102,8 m²
Количество этажей
Одноэтажный
Количество санузлов
2
Количество человек
4-6
Особенности
Панорамное остекление, Терраса
Стоимость от
12 650 000 руб
Контакты для связи:
Способы оплаты
С помощью интернет банкинга
Рассрочки / кредитование
Досрочное погашение
Предчистовая отделка включена
Гарантия на проект
Фиксированная цена
Стоимость, указанная в договоре, не меняется в ходе строительства
Гибкая система оплаты
Вы вносите 5% от стоимости при подписании договора. Остаток оплачиваете частями.
Акция
Изменение проекта или адаптация проекта другой компании - БЕСПЛАТНО

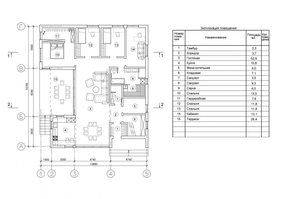
О проекте Быстровозводимый одноэтажный дом AET-026

Этот проект для семьи из 4-6 человек выполнен в лучших традициях стиля барнхаус. Его отличает строгая геометрия форм, отсутствие пристроек и архитектурных излишеств, панорамное остекление, как например в этом загородном доме AET-010 с просторной террасой, двускатная крыша без свесов и натуральные цвета в отделке фасадов.

Авторы проекта остроумно решили проблему террасы. Чтобы не делать отдельный навес, удорожая проект, зону для отдыха на свежем воздухе организовали в нише, где находится одна из двух входных зон. Эта площадка достаточно велика, чтобы можно было установить там обеденную группу на восемь посадочных мест.

Дом отличает продуманная планировка, не лишенная оригинальности. За дверью главного входа находится холл с гардеробной и примыкающей к ней кладовой. Далее, минуя санузел, мы попадаем в огромное. Более 50 м2, пространство, совмещающее в себе функции гостиной и столовой. Из нее можно попасть в кухню, вмещающую все, что нужно для кулинарии.

Приватная зона дома включает в себя четыре спальни — одну большую (с изолированной гардеробной) и три малых. Разумеется, любое из этих помещений может быть переделано в кабинет, мастерскую, домашний кинотеатр и проч. Безусловным достоинством дома является сауна с собственным санузлом.

Что касается отделки, дома в стиле барнхаус, прародителями которых были фермерские сараи, предполагают натуральные материалы или их иммитацию. На промо-изображении фасады покрыты фиброцементным сайдингом, повторяющим фактуру деревянной доски, и металлической обшивкой клик-фальц.

Закажите бесплатный расчет

Характеристика
Общая площадь
184,8 m²
Жилая площадь
102,8 m²
Количество этажей
Одноэтажный
Количество санузлов
2
Количество человек
4-6
Особенности
Панорамное остекление, Терраса
Отделка фасада
Фиброцементный сайдинг
Форма крыши
Двускатная
Популярные проекты
Каркасно-панельный дом 6 на 8 AET-125
Общая площадь
67,55 м²
Жилая площадь
41,66 м²
Площадь первого этажа
34,84 м²
Площадь мансарды
30,76 м²
Стоимость от
2 512 000 руб
Каркасно-панельный дом 6 на 8 AET-124
Общая площадь
65,06 м²
Жилая площадь
41,87 м²
Площадь первого этажа
34,84 м²
Площадь мансарды
30,75 м²
Стоимость от
2 511 900 руб
Каркасно-панельный дом 6 на 8 AET-132
Общая площадь
50,90 м²
Жилая площадь
39,00 м²
Полезная площадь
51 м²
Площадь застройки
69,70 м²
Стоимость от
2 331 500 руб
Все проекты
Обратная связь
Оставьте заявку и получите проект дома в подарок