Одноэтажный каркасно-панельный дом AET-109

Характеристика дома:
Общая площадь
85,06 м²
Общая площадь диапазон
80–99.9 м²
Жилая площадь
85 м²
Жилая площадь диапазон
80–89.9 м²
Площадь застройки
106,13 м²
Угол наклона крыши
35°
Стоимость от
5 180 600 руб
Контакты для связи:
Способы оплаты
С помощью интернет банкинга
Рассрочка / кредитование / ипотека
Досрочное погашение
Предчистовая отделка включена
Гарантия на проект
Фиксированная цена
Стоимость, указанная в договоре, не меняется в ходе строительства
Гибкая система оплаты
Вы вносите 5% от стоимости при подписании договора. Остаток оплачиваете частями.
Акция
Изменение проекта или адаптация проекта другой компании - БЕСПЛАТНО

О проекте одноэтажный каркасно-панельный дом AET-109

Небольшой, но функциональный одноэтажный каркасный дом площадью 85 м² — отличный выбор для тех, кто хочет быстро переехать в собственное жильё и при этом минимизировать затраты на строительство и эксплуатацию. Благодаря каркасной технологии возведение проходит в короткие сроки, а энергоэффективные материалы снижают расходы на отопление.

Прямоугольная форма здания и простая планировка каркасного дома позволяют строить его на участке небольшой ширины. Надёжная двускатная крыша упрощает монтаж и уменьшает стоимость покрытия, а минималистичный дизайн без лишних декоративных элементов идеально подходит для современных архитектурных решений.

Внутреннее пространство продумано до мелочей: объединённая дневная зона с гостиной и кухней создаёт ощущение простора, а чёткое разделение на ночную и дневную части обеспечивает уединение. Три спальни подходят для семьи с детьми, а отдельный туалет и просторная ванная комната делают утренние сборы удобнее.

Это универсальный проект для тех, кто ищет компактный и практичный одноэтажный дом под ключ с гармоничным сочетанием современного стиля и традиционных строительных решений.

Закажите бесплатный расчет

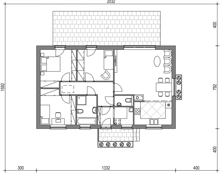
Характеристика
Общая площадь
85,06 м²
Общая площадь диапазон
80–99.9 м²
Жилая площадь
85 м²
Жилая площадь диапазон
80–89.9 м²
Площадь застройки
106,13 м²
Угол наклона крыши
35°
Высота здания
6,18 м
Ширина фасада
13,32 м
Длина фасада
7,92 м
Минимальные размеры участка
Длина: 17,45 м, Ширина: 20,35 м
Тамбур (вестибюль)
2,45 м²
Холл
7,55 м²
Ванная комната
5,18 м²
Комната
10,16 м², 10,16 м², 11,40 м²
Гостиная
25,73 м²
Кухня
7,75 м²
Туалет
1,72 м²
Хозяйственное помещение
2,96 м²
Количество этажей
Одноэтажный
Количество санузлов
2
Количество человек
3-5
Особенности
Панорамное остекление, Терраса
Форма крыши
Двускатная
Отделка фасада
Планкен, Штукатурка
Популярные проекты
Все проекты
Обратная связь
Получить проект дома в подарок