Одноэтажный каркасно-панельный дом AET-110

Характеристика дома:
Жилая площадь
110 м²
Жилая площадь диапазон
110–119.9 м²
Площадь застройки
139,20 м²
Общая площадь
136 м²
Общая площадь диапазон
120–139.9 м²
Общий объём
736,20 м³
Стоимость от
6 975 200 руб
Контакты для связи:
Способы оплаты
С помощью интернет банкинга
Рассрочка / кредитование / ипотека
Досрочное погашение
Предчистовая отделка включена
Гарантия на проект
Фиксированная цена
Стоимость, указанная в договоре, не меняется в ходе строительства
Гибкая система оплаты
Вы вносите 5% от стоимости при подписании договора. Остаток оплачиваете частями.
Акция
Изменение проекта или адаптация проекта другой компании - БЕСПЛАТНО

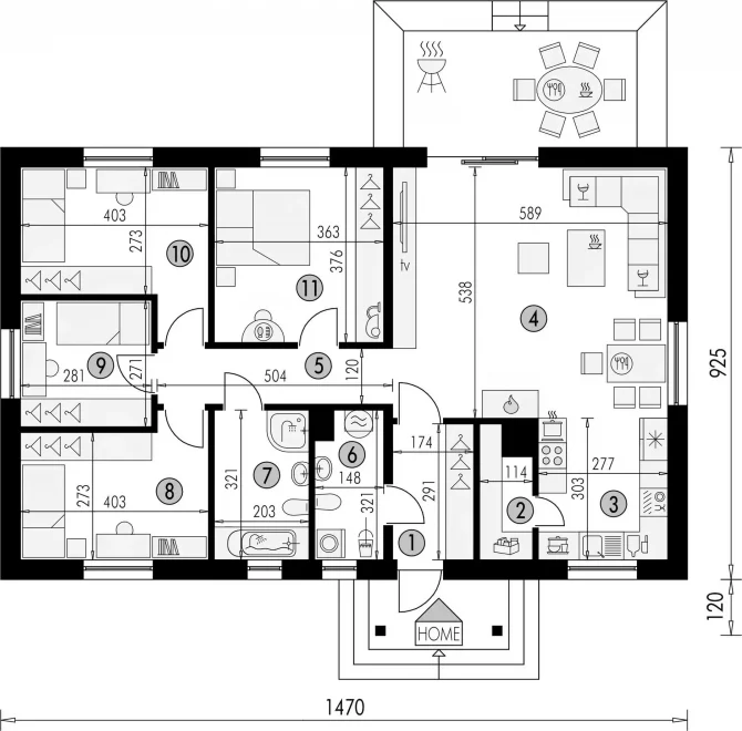
О проекте одноэтажный каркасно-панельный дом AET-110

Просторный одноэтажный каркасный дом площадью 110 м² создан для комфортного круглогодичного проживания большой семьи. Его грамотная планировка одноэтажного дома включает четыре полноценные спальни, просторную гостиную, совмещённую со столовой, отдельную кухню, две ванные комнаты и практичное хозяйственное помещение.

Большая гостиная площадью более 30 м² идеально подойдёт для семейных встреч и праздничных ужинов. Кухня расположена так, чтобы оставаться удобной как для повседневного использования, так и для приёма гостей. Наличие четырёх спален позволяет с комфортом разместить большую семью или предусмотреть кабинет и гостевые комнаты.

В доме предусмотрены два санузла, что делает утренние сборы максимально удобными, а также кладовая для хранения продуктов и бытовых мелочей. Каркасная технология обеспечивает высокую энергоэффективность, быстрые сроки возведения и низкие эксплуатационные расходы, что особенно актуально при строительстве одноэтажных каркасных домов под ключ.

Надёжная двускатная крыша и лаконичная форма здания гарантируют долговечность и гармонично вписываются в любой ландшафт. Этот проект станет отличным выбором для тех, кто хочет построить одноэтажный дом под ключ для постоянного проживания с идеальным балансом комфорта и функциональности.

Закажите бесплатный расчет

Характеристика
Жилая площадь
110 м²
Жилая площадь диапазон
110–119.9 м²
Площадь застройки
139,20 м²
Общая площадь
136 м²
Общая площадь диапазон
120–139.9 м²
Общий объём
736,20 м³
Площадь крыши
211 м²
Угол наклона крыши
30°
Высота здания
7,05 м
Ширина фасада
14,70 м
Длина фасада
9,25 м
Минимальные размеры участка
Длина: 21,25 м, Ширина: 26,70 м
Тамбур (вестибюль)
5,05 м²
Кладовая
2,85 м²
Кухня
8,40 м²
Гостиная + столовая
31,70 м²
Холл
6,05 м²
Санузел + хозяйственное помещение
4,50 м²
Ванная комната
6,50 м²
Комната
11,55 м², 12,15 м², 13,65 м², 7,60 м²
Количество этажей
Одноэтажный
Количество санузлов
2
Количество человек
5 и более
Особенности
Терраса
Форма крыши
Двускатная
Отделка фасада
Планкен, Штукатурка
Популярные проекты
Все проекты
Обратная связь
Оставьте заявку и получите проект дома в подарок