Каркасно-панельный дом с гаражом AET-117

Характеристика дома:
Общая площадь
146,20 m²
Жилая площадь
69,80 м²
Полезная площадь
106,60 м²
Площадь застройки
119,50 м²
Общий объём
712,60 м³
Площадь крыши
243,80 м²
Стоимость от
10 513 000 руб
Контакты для связи:
Способы оплаты
С помощью интернет банкинга
Рассрочки / кредитование
Досрочное погашение
Предчистовая отделка включена
Гарантия на проект
Фиксированная цена
Стоимость, указанная в договоре, не меняется в ходе строительства
Гибкая система оплаты
Вы вносите 5% от стоимости при подписании договора. Остаток оплачиваете частями.
Акция
Изменение проекта или адаптация проекта другой компании - БЕСПЛАТНО

О проекте каркасно-панельный дом с гаражом AET-117

Проект дома AET-117 — это современный одноэтажный дом с гаражом и мансардой, спроектированный для комфортного проживания семьи из 4 человек. Дом сочетает практичность и уют, а также рациональное использование каждого квадратного метра.

Первый этаж включает открытую гостиную с кухней и кладовой, просторный кабинет, ванную комнату и котельную. К боковой стене пристроен гараж на одно место с дополнительным хозяйственным помещением и чердаком, расположенным на уровне мансарды. С фасада предусмотрена крытая терраса с лёгкой деревянной конструкцией, которая органично продолжает жилое пространство на улице.

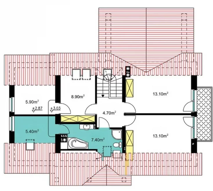
Мансарда предлагает три удобные спальни, ванную комнату, прачечную и дополнительный чердак над гаражом. Возможна адаптация пространства: две спальни и чердак с отдельным входом из коридора. Такое решение обеспечивает максимальную гибкость при организации жилой зоны и хранения.

Проект выполнен с применением каркасной технологии строительства, что позволяет сократить сроки возведения дома и обеспечивает энергоэффективность. Одноэтажный дом с гаражом под ключ идеально подойдёт семьям, которые ценят удобство, приватность и гармоничное сочетание внутреннего и наружного пространства.

Закажите бесплатный расчет

Характеристика
Общая площадь
146,20 m²
Жилая площадь
69,80 м²
Полезная площадь
106,60 м²
Площадь застройки
119,50 м²
Общий объём
712,60 м³
Площадь крыши
243,80 м²
Угол наклона крыши
42°
Высота здания
8,23 м
Ширина фасада
14,65 м
Длина фасада
8,20 м
Минимальные размеры участка
Длина: 20,00 м, Ширина: 22,70 м
Тамбур (вестибюль)
3,30 м²
Кухня
9,50 м²
Кладовая
1,90 м²
Гостиная + столовая
25,20 м²
Коридор
4,70 м², 6,30 м²
Комната
13,10 м², 13,10 м², 8,90 м², 9,50 м²
Ванная комната
3,70 м², 7,40 м²
Котельная
5,20 м²
Одноместный гараж
18,40 м²
Хозяйственное помещение
4,70 м²
Чердак
5,90 м²
Прачечная
5,40 м²
Количество этажей
Одноэтажный, С мансардой
Количество человек
5 и более
Количество санузлов
2
Особенности
Терраса
Отделка фасада
Облицовочный камень, Штукатурка
Форма крыши
Многоскатная
Популярные проекты
Каркасно-панельный дом 6 на 9 AET-155
Общая площадь
141,21 м²
Полезная площадь
62,70 м²
Площадь застройки
55,72 м²
Жилая площадь
32,50 м²
Стоимость от
4 191 600 руб
Каркасно-панельный дом 6 на 9 AET-154
Общая площадь
70,70 м²
Полезная площадь
61,40 м²
Площадь застройки
44,40 м²
Жилая площадь
32,50 м²
Стоимость от
4 594 000 руб
Каркасно-панельный дом 6 на 9 AET-153
Общая площадь
53,32 м²
Полезная площадь
53,32 м²
Площадь застройки
64,77 м²
Жилая площадь
17,74 м²
Стоимость от
3 046 800 руб
Все проекты
Обратная связь
Оставьте заявку и получите проект дома в подарок