Каркасно-панельный дом 6 на 8 AET-123

Характеристика дома:
Общая площадь
77,91 м²
Жилая площадь
37,24 м²
Площадь первого этажа
33,12 м²
Площадь мансарды
31,11 м²
Полезная площадь
56,17 м²
Площадь застройки
57,79 м²
Стоимость от
2 244 000 руб
Контакты для связи:
Способы оплаты
С помощью интернет банкинга
Рассрочки / кредитование
Досрочное погашение
Предчистовая отделка включена
Гарантия на проект
Фиксированная цена
Стоимость, указанная в договоре, не меняется в ходе строительства
Гибкая система оплаты
Вы вносите 5% от стоимости при подписании договора. Остаток оплачиваете частями.
Акция
Изменение проекта или адаптация проекта другой компании - БЕСПЛАТНО

О проекте каркасно-панельный дом 6 на 8 AET-123

Проект дома AET-123 — это функциональный и уютный проект дома 6 на 8 с мансардой, идеально подходящий для узкого участка. Простая двускатная крыша и компактная форма делают строительство экономичным, а внешний вид — стильным и гармоничным. Такой каркасный дом 6х8 с мансардой станет отличным выбором для семьи, которая ценит уют, рациональность и практичность.
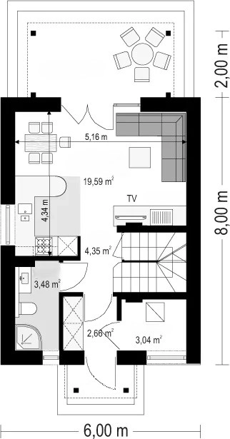
На первом этаже предусмотрена просторная гостиная с кухней и местом для обеденной зоны. Открытая планировка создаёт ощущение лёгкости и увеличивает пространство. Из гостиной можно выйти на террасу, где приятно проводить время летом. Также на этом уровне находятся котельная, ванная комната и удобный холл.
Мансарда включает три уютные спальни, гардероб и дополнительную ванную комнату. Такое решение делает дом удобным для семьи из 3–5 человек, обеспечивая комфорт и приватность каждому.
Проекты домов 6 на 8 с мансардой отличаются оптимальным соотношением площади и функциональности, а этот вариант — один из самых удачных. Проект дома выделяется простотой формы, энергоэффективностью и функциональностью планировки. Это каркасный дом 6 на 8 — небольшой, удобный и практичный, который легко впишется в ландшафт и подойдёт как для постоянного проживания, так и для дачи.

Закажите бесплатный расчет

Характеристика
Общая площадь
77,91 м²
Жилая площадь
37,24 м²
Площадь первого этажа
33,12 м²
Площадь мансарды
31,11 м²
Полезная площадь
56,17 м²
Площадь застройки
57,79 м²
Чистый объем
283 м³
Площадь крыши
111,53 м²
Угол наклона крыши
45°
Высота здания
7,72 м
Ширина фасада
6 м
Длина фасада
8 м
Минимальные размеры участка
Длина: 17 м, Ширина: 13 м
Тамбур (вестибюль)
2,66 м²
Холл
2,80 м², 4,35 м²
Котельная
3,04 м²
Гостиная + кухня
19,59 м²
Ванная комната
3,01 м², 3,48 м²
Комната
6,50 м², 7,82 м², 8,12 м²
Гардероб
2,86 м²
Количество этажей
Одноэтажный, С мансардой
Количество человек
3-5
Количество санузлов
2
Отделка фасада
Облицовочный кирпич, Штукатурка
Особенности
Панорамное остекление, Терраса
Форма крыши
Двускатная
Популярные проекты
Каркасно-панельный дом 7 на 8 AET-134
Общая площадь
80,50 м²
Полезная площадь
67,70 м²
Площадь застройки
58,32 м²
Площадь крыши
86,80 м²
Стоимость от
4 779 900 руб
Каркасно-панельный дом 7 на 8 AET-139
Общая площадь
93,46 м²
Полезная площадь
67,57 м²
Площадь застройки
68,03 м²
Площадь крыши
105,52 м²
Стоимость от
4 576 600 руб
Каркасно-панельный дом 7 на 8 AET-138
Общая площадь
88,95 м²
Полезная площадь
69,65 м²
Площадь застройки
62,64 м²
Площадь крыши
123,36 м²
Стоимость от
4 785 900 руб
Все проекты
Обратная связь
Оставьте заявку и получите проект дома в подарок