Каркасно-панельный дом 6 на 8 AET-125

Характеристика дома:
Общая площадь
67,55 м²
Жилая площадь
41,66 м²
Площадь первого этажа
34,84 м²
Площадь мансарды
30,76 м²
Полезная площадь
53,43 м²
Площадь застройки
44,07 м²
Стоимость от
2 512 000 руб
Контакты для связи:
Способы оплаты
С помощью интернет банкинга
Рассрочки / кредитование
Досрочное погашение
Предчистовая отделка включена
Гарантия на проект
Фиксированная цена
Стоимость, указанная в договоре, не меняется в ходе строительства
Гибкая система оплаты
Вы вносите 5% от стоимости при подписании договора. Остаток оплачиваете частями.
Акция
Изменение проекта или адаптация проекта другой компании - БЕСПЛАТНО

О проекте каркасно-панельный дом 6 на 8 AET-125

Проект дома AET-125 — это компактный каркасный дом 6х8 с мансардой, идеально подходящий для узких участков и комфортного проживания небольшой семьи. Благодаря лаконичной форме и рациональной планировке, он сочетает в себе практичность и уют, оставаясь недорогим в строительстве и эксплуатации.
Архитектура дома выдержана в традиционном стиле: двускатная крыша придаёт зданию гармоничные пропорции и классический вид. Крыша ориентирована параллельно дороге, что делает проект дома 6 на 8 с мансардой подходящим даже при ограничениях градостроительных норм.
На первом этаже предусмотрена функциональная дневная зона с просторной гостиной, объединённой с кухней. Такое решение создаёт светлое и открытое пространство, где легко собираться всей семьёй. В центре внимания — камин, придающий особое ощущение уюта и тепла. Рядом расположена удобная ванная комната.
Мансарда отведена под приватную зону — две уютные спальни, где можно организовать спальню родителей и детскую, кабинет или гостевую комнату. Благодаря продуманной планировке, дом отлично подойдёт для семьи из 3–4 человек.
Выход на террасу делает пространство дома продолжением сада — здесь можно проводить вечера, наслаждаясь природой. Конструкция дома выполнена в кирпичной технологии, что гарантирует долговечность и энергоэффективность.
Наш проект — это один из лучших проектов домов 6 на 8 с мансардой и террасой, сочетающий комфорт, эстетику и простоту реализации, идеально подходящий для загородного или постоянного проживания.

Закажите бесплатный расчет

Характеристика
Общая площадь
67,55 м²
Жилая площадь
41,66 м²
Площадь первого этажа
34,84 м²
Площадь мансарды
30,76 м²
Полезная площадь
53,43 м²
Площадь застройки
44,07 м²
Чистый объем
193 м³
Площадь крыши
96,96 м²
Угол наклона крыши
45°
Высота здания
6,88 м
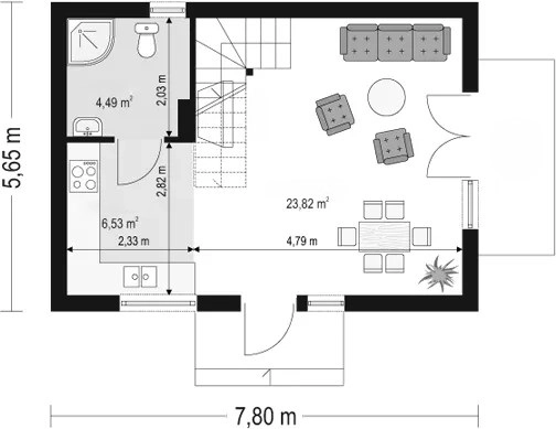
Ширина фасада
7,80 м
Длина фасада
5,65 м
Минимальные размеры участка
Длина: 13,65 м, Ширина: 15,80 м
Ванная комната
4,49 м²
Кухня
6,53 м²
Гостиная
23,82 м²
Комната
10,77 м², 17,08 м²
Коридор
2,91 м²
Количество этажей
Одноэтажный, С мансардой
Количество человек
3-4
Количество санузлов
1
Отделка фасада
Планкен, Штукатурка
Особенности
Панорамное остекление
Популярные проекты
Каркасно-панельный дом 6 на 9 AET-155
Общая площадь
141,21 м²
Полезная площадь
62,70 м²
Площадь застройки
55,72 м²
Жилая площадь
32,50 м²
Стоимость от
4 191 600 руб
Каркасно-панельный дом 6 на 9 AET-154
Общая площадь
70,70 м²
Полезная площадь
61,40 м²
Площадь застройки
44,40 м²
Жилая площадь
32,50 м²
Стоимость от
4 594 000 руб
Каркасно-панельный дом 6 на 9 AET-153
Общая площадь
53,32 м²
Полезная площадь
53,32 м²
Площадь застройки
64,77 м²
Жилая площадь
17,74 м²
Стоимость от
3 046 800 руб
Все проекты
Обратная связь
Оставьте заявку и получите проект дома в подарок