Каркасно-панельный дом 6 на 8 AET-130

Характеристика дома:
Общая площадь
71,07 м²
Жилая площадь
38,20 м²
Площадь первого этажа
37,76 м²
Площадь мансарды
33,31 м²
Полезная площадь
62,51 м²
Высота карнизной стены
1,50 м
Стоимость от
2 684 500 руб
Контакты для связи:
Способы оплаты
С помощью интернет банкинга
Рассрочки / кредитование
Досрочное погашение
Предчистовая отделка включена
Гарантия на проект
Фиксированная цена
Стоимость, указанная в договоре, не меняется в ходе строительства
Гибкая система оплаты
Вы вносите 5% от стоимости при подписании договора. Остаток оплачиваете частями.
Акция
Изменение проекта или адаптация проекта другой компании - БЕСПЛАТНО

О проекте каркасно-панельный дом 6 на 8 AET-130

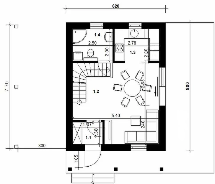
Проект дома 6 на 8 одноэтажный с мансардой предлагает компактное и функциональное решение для небольших участков. На первом этаже располагается просторная гостиная, объединённая с кухней, ванная комната и тамбур, а также предусмотрен навес для автомобиля, что делает жильё максимально удобным для повседневной жизни.
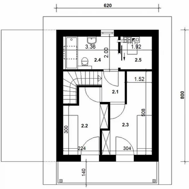
Мансарда увеличивает жилую площадь, предоставляя дополнительные комнаты, ванную и хозяйственное помещение, что делает каркасный дом 6х8 с мансардой отличным вариантом для семьи из нескольких человек.
Дом 6 на 8 одноэтажный с террасой сочетает в себе рациональное использование пространства и энергоэффективность. Планировка дома продумана так, чтобы дневная и ночная зоны были чётко разделены, обеспечивая комфорт и приватность. Каркасный дом 6х8 одноэтажный позволяет сочетать современный стиль и традиционную архитектуру, гармонично вписываясь в окружающую среду.

Закажите бесплатный расчет

Характеристика
Общая площадь
71,07 м²
Жилая площадь
38,20 м²
Площадь первого этажа
37,76 м²
Площадь мансарды
33,31 м²
Полезная площадь
62,51 м²
Высота карнизной стены
1,50 м
Площадь застройки
48,80 м²
Чистый объем
182,50 м³
Общий объём
263,90 м³
Площадь крыши
128,71 м²
Угол наклона крыши
38°
Высота здания
7,55 м
Ширина фасада
6,20 м
Длина фасада
8 м
Минимальные размеры участка
Длина: 16 м, Ширина: 15,25 м
Тамбур (вестибюль)
2,59 м²
Гостиная
24,43 м²
Кухня
5,74 м²
Ванная комната
5,00 м², 6,72 м²
Коридор
2,62 м²
Комната
11,61 м², 8,87 м²
Хозяйственное помещение
3,49 м²
Количество этажей
Одноэтажный, С мансардой
Количество санузлов
2
Количество человек
3-4
Особенности
Панорамное остекление
Отделка фасада
Планкен, Штукатурка
Форма крыши
Двускатная
Популярные проекты
Каркасно-панельный дом 6 на 9 AET-155
Общая площадь
141,21 м²
Полезная площадь
62,70 м²
Площадь застройки
55,72 м²
Жилая площадь
32,50 м²
Стоимость от
4 191 600 руб
Каркасно-панельный дом 6 на 9 AET-154
Общая площадь
70,70 м²
Полезная площадь
61,40 м²
Площадь застройки
44,40 м²
Жилая площадь
32,50 м²
Стоимость от
4 594 000 руб
Каркасно-панельный дом 6 на 9 AET-153
Общая площадь
53,32 м²
Полезная площадь
53,32 м²
Площадь застройки
64,77 м²
Жилая площадь
17,74 м²
Стоимость от
3 046 800 руб
Все проекты
Обратная связь
Оставьте заявку и получите проект дома в подарок