Каркасно-панельный дом 6 на 8 AET-132

Характеристика дома:
Общая площадь
50,90 м²
Жилая площадь
39,00 м²
Полезная площадь
51 м²
Площадь застройки
69,70 м²
Чистый объем
132 м³
Угол наклона крыши
30°
Стоимость от
2 331 500 руб
Контакты для связи:
Способы оплаты
С помощью интернет банкинга
Рассрочки / кредитование
Досрочное погашение
Предчистовая отделка включена
Гарантия на проект
Фиксированная цена
Стоимость, указанная в договоре, не меняется в ходе строительства
Гибкая система оплаты
Вы вносите 5% от стоимости при подписании договора. Остаток оплачиваете частями.
Акция
Изменение проекта или адаптация проекта другой компании - БЕСПЛАТНО

О проекте каркасно-панельный дом 6 на 8 AET-132

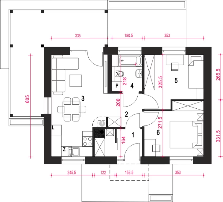
Проект дома 6 на 8 одноэтажный представляет собой комфортное и компактное решение для семьи. Первый этаж включает тамбур, холл, гостиную с кухней, ванную комнату и две спальни, обеспечивая удобную планировку для повседневной жизни.
Каркасный дом 6х8 одноэтажный позволяет рационально использовать пространство и подходит для узких участков. Его функциональная планировка обеспечивает чёткое разделение дневной и ночной зон, создавая комфорт для семьи из нескольких человек.
Дом 6 на 8 одноэтажный выполнен в традиционном стиле и отличается простотой конструкции, что упрощает строительство и снижает затраты, а каркасная технология гарантирует долговечность и энергоэффективность.

Закажите бесплатный расчет

Характеристика
Общая площадь
50,90 м²
Жилая площадь
39,00 м²
Полезная площадь
51 м²
Площадь застройки
69,70 м²
Чистый объем
132 м³
Угол наклона крыши
30°
Высота здания
5,80 м
Ширина фасада
10,10 м
Длина фасада
7,10 м
Минимальные размеры участка
Длина: 15,10 м, Ширина: 17,10 м
Тамбур (вестибюль)
4,10 м²
Холл
4,00 м²
Гостиная + кухня
18,40 м²
Ванная комната
3,80 м²
Комната
10,10 м², 10,50 м²
Количество этажей
Одноэтажный
Количество человек
3-4
Количество санузлов
1
Особенности
Терраса
Форма крыши
Двускатная
Отделка фасада
Планкен, Штукатурка
Популярные проекты
Каркасно-панельный дом 6 на 9 AET-155
Общая площадь
141,21 м²
Полезная площадь
62,70 м²
Площадь застройки
55,72 м²
Жилая площадь
32,50 м²
Стоимость от
4 191 600 руб
Каркасно-панельный дом 6 на 9 AET-154
Общая площадь
70,70 м²
Полезная площадь
61,40 м²
Площадь застройки
44,40 м²
Жилая площадь
32,50 м²
Стоимость от
4 594 000 руб
Каркасно-панельный дом 6 на 9 AET-153
Общая площадь
53,32 м²
Полезная площадь
53,32 м²
Площадь застройки
64,77 м²
Жилая площадь
17,74 м²
Стоимость от
3 046 800 руб
Все проекты
Обратная связь
Оставьте заявку и получите проект дома в подарок