Каркасно-панельный дом 7 на 8 AET-135

Характеристика дома:
Общая площадь
93,39 м²
Общая площадь диапазон
80–99.9 м²
Полезная площадь
55,28 м²
Площадь застройки
59 м²
Площадь крыши
83,60 м²
Угол наклона крыши
45°
Стоимость от
4 712 110 руб
Контакты для связи:
Способы оплаты
С помощью интернет банкинга
Рассрочка / кредитование / ипотека
Досрочное погашение
Предчистовая отделка включена
Гарантия на проект
Фиксированная цена
Стоимость, указанная в договоре, не меняется в ходе строительства
Гибкая система оплаты
Вы вносите 5% от стоимости при подписании договора. Остаток оплачиваете частями.
Акция
Изменение проекта или адаптация проекта другой компании - БЕСПЛАТНО

О проекте Каркасно-панельный дом 7 на 8 AET-135

Проект дома 7 на 8 с мансардой — это современное и компактное решение для комфортного проживания. Дом 7 на 8 одноэтажный с мансардой позволяет рационально использовать пространство: на первом этаже расположены гостиная, кухня и столовая, объединённые в единую светлую зону, а также ванная комната. Дополнительно предусмотрена просторная терраса, которая станет отличным местом для отдыха на свежем воздухе.

Каркасные дома 7х8, такие как этот проект, обеспечивают быструю сборку, энергоэффективность и надежность конструкции. В мансарде дома 7х8 с мансардой находятся две большие комнаты и балкон, создающий приватное пространство для отдыха и сна. Дом каркасный 7х8 одноэтажный планировка продумана так, чтобы каждый метр полезной площади использовался максимально эффективно.

Проект дома 7х8 подходит для постоянного проживания, дачи или сдачи в аренду. Планировка дома 7 на 8 с мансардой сочетает компактность и функциональность, а современный стиль фасада делает его гармоничным дополнением участка. Этот каркасный дом 7х8 одноэтажный с террасой и балконом — универсальный вариант для семьи, ценящей уют и практичность.

Закажите бесплатный расчет

Характеристика
Общая площадь
93,39 м²
Общая площадь диапазон
80–99.9 м²
Полезная площадь
55,28 м²
Площадь застройки
59 м²
Площадь крыши
83,60 м²
Угол наклона крыши
45°
Высота здания
8 м²
Ширина фасада
7,30 м²
Длина фасада
8,10 м
Минимальные размеры участка
Длина: 16,10 м
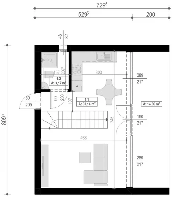
Гостиная + кухня + столовая
31,16 м²
Ванная комната
3,17 м²
Терраса
14,86 м²
Комната
14,67 м², 14,67 м²
Количество человек
3
Количество этажей
Одноэтажный, С мансардой
Количество санузлов
1
Особенности
Панорамное остекление
Отделка фасада
Штукатурка
Форма крыши
Многоскатная
Популярные проекты
Все проекты
Обратная связь
Оставьте заявку и получите проект дома в подарок