Каркасно-панельный дом 7 на 8 AET-137

Характеристика дома:
Общая площадь
79,74 м²
Общая площадь диапазон
60–79.9 м²
Полезная площадь
66,62 м²
Площадь застройки
55,88 м²
Площадь крыши
122,50 м²
Угол наклона крыши
45°
Стоимость от
5 145 600 руб
Контакты для связи:
Способы оплаты
С помощью интернет банкинга
Рассрочка / кредитование / ипотека
Досрочное погашение
Предчистовая отделка включена
Гарантия на проект
Фиксированная цена
Стоимость, указанная в договоре, не меняется в ходе строительства
Гибкая система оплаты
Вы вносите 5% от стоимости при подписании договора. Остаток оплачиваете частями.
Акция
Изменение проекта или адаптация проекта другой компании - БЕСПЛАТНО

О проекте Каркасно-панельный дом 7 на 8 AET-137

Проект дома 7 на 8 с мансардой предлагает продуманное и функциональное решение для комфортного проживания на участке средней ширины. Дом 7 на 8 одноэтажный с мансардой сочетает компактность и простор: на первом этаже расположена большая гостиная, объединённая с кухней, ванная комната, котельная и тамбур, создавая удобное и светлое пространство для повседневной жизни.

Каркасные дома 7х8, как этот проект, обеспечивают быстрые сроки строительства, энергоэффективность и долговечность. На мансарде дома 7х8 с мансардой предусмотрены три спальни, холл и дополнительная ванная комната, что позволяет чётко разделить дневную и ночную зоны. Каркасный дом 7х8 одноэтажный планировка ориентирована на максимальную функциональность и удобство для семьи из 3–4 человек.

Дом 7х8 с мансардой идеально подходит для постоянного проживания, дачи или сдачи в аренду. Планировка дома 7 на 8 обеспечивает комфорт, уют и рациональное использование каждого квадратного метра. Классическая двускатная крыша и камин в гостиной создают традиционную атмосферу, а терраса обеспечивает приятное место для отдыха на свежем воздухе. Этот каркасный дом 7х8 одноэтажный с мансардой сочетает практичность и эстетику, оставаясь доступным по стоимости и удобным в эксплуатации.

Закажите бесплатный расчет

Характеристика
Общая площадь
79,74 м²
Общая площадь диапазон
60–79.9 м²
Полезная площадь
66,62 м²
Площадь застройки
55,88 м²
Площадь крыши
122,50 м²
Угол наклона крыши
45°
Высота здания
6,45 м
Длина фасада
7,55 м
Ширина фасада
9 м
Минимальные размеры участка
Длина: 15,55 м, Ширина: 17,30 м
Тамбур (вестибюль)
2,14 м²
Гостиная + столовая
24,06 м²
Ванная комната
3,32 м²
Подсобное помещение
4,85 м²
Кухня
9,50 м²
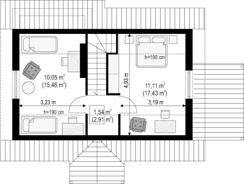
Комната
15,46 м², 17,43 м²
Коридор
2,91 м²
Количество человек
3-4
Количество этажей
Одноэтажный, С мансардой
Количество санузлов
1
Особенности
Панорамное остекление
Отделка фасада
Штукатурка
Форма крыши
Многоскатная
Популярные проекты
Все проекты
Обратная связь
Получить проект дома в подарок