Каркасно-панельный дом 7 на 8 AET-139

Характеристика дома:
Общая площадь
93,46 м²
Общая площадь диапазон
80–99.9 м²
Полезная площадь
67,57 м²
Площадь застройки
68,03 м²
Площадь крыши
105,52 м²
Угол наклона крыши
40°
Стоимость от
4 576 600 руб
Контакты для связи:
Способы оплаты
С помощью интернет банкинга
Рассрочка / кредитование / ипотека
Досрочное погашение
Предчистовая отделка включена
Гарантия на проект
Фиксированная цена
Стоимость, указанная в договоре, не меняется в ходе строительства
Гибкая система оплаты
Вы вносите 5% от стоимости при подписании договора. Остаток оплачиваете частями.
Акция
Изменение проекта или адаптация проекта другой компании - БЕСПЛАТНО

О проекте Каркасно-панельный дом 7 на 8 AET-139

Проект дома 7 на 8 с мансардой — функциональное решение для владельцев узких или средних по ширине участков. Этот одноэтажный дом с мансардой позволяет удобно разделить дневную и ночную зоны: на первом этаже расположены гостиная с камином, открытая кухня, туалет и котельная, а на мансарде находятся три спальни и ванная комната.

Каркасный дом 7х8 обеспечивает быстрые сроки строительства, высокую энергоэффективность и долговечность. Продуманная планировка делает дом удобным для семьи из 4-5 человек, а терраса добавляет дополнительное пространство для отдыха на свежем воздухе.

Дом 7 на 8 одноэтажный проект идеально подходит как для постоянного проживания, так и для дачного использования. Его компактная форма и двускатная крыша позволяют снизить затраты на строительство и эксплуатацию, а гармоничное сочетание традиционного и современного стиля делает здание эстетичным и уютным.

Закажите бесплатный расчет

Характеристика
Общая площадь
93,46 м²
Общая площадь диапазон
80–99.9 м²
Полезная площадь
67,57 м²
Площадь застройки
68,03 м²
Площадь крыши
105,52 м²
Угол наклона крыши
40°
Высота здания
7,62 м²
Длина фасада
7,90 м
Ширина фасада
7,30 м
Минимальные размеры участка
Длина: 16,60 м, Ширина: 15,03 м
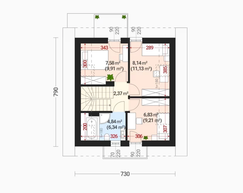
Тамбур (вестибюль)
2,56 м²
Холл
2,37 м², 4,94 м²
Гостиная
23,18 м²
Кухня
5,74 м²
Туалет
1,40 м²
Котельная
4,73 м²
Комната
11,13 м², 9,21 м², 9,91 м²
Ванная комната
6,34 м²
Количество человек
4-5
Количество этажей
Одноэтажный, С мансардой
Количество санузлов
1
Особенности
Панорамное остекление
Отделка фасада
Штукатурка
Форма крыши
Двускатная
Популярные проекты
Все проекты
Обратная связь
Получить проект дома в подарок