Каркасно-панельный дом 7 на 8 AET-141

Характеристика дома:
Общая площадь
87,27 м²
Общая площадь диапазон
80–99.9 м²
Полезная площадь
69,19 м²
Площадь застройки
63,19 м²
Площадь крыши
119 м²
Угол наклона крыши
38°
Стоимость от
4 333 330 руб
Контакты для связи:
Способы оплаты
С помощью интернет банкинга
Рассрочка / кредитование / ипотека
Досрочное погашение
Предчистовая отделка включена
Гарантия на проект
Фиксированная цена
Стоимость, указанная в договоре, не меняется в ходе строительства
Гибкая система оплаты
Вы вносите 5% от стоимости при подписании договора. Остаток оплачиваете частями.
Акция
Изменение проекта или адаптация проекта другой компании - БЕСПЛАТНО

О проекте Каркасно-панельный дом 7 на 8 AET-141

Проект дома 7 на 8 одноэтажный с мансардой представляет собой компактное и функциональное жильё, идеально подходящее для семьи или дачного отдыха. Первый этаж включает просторную открытую зону с гостиной, кухней и столовой, а также отдельную спальню и ванную комнату. Мансарда с антресолью создаёт дополнительное пространство, которое можно использовать как вторую спальню, кабинет или детскую.

Каркасный дом 7х8 сочетает традиционную форму с современными решениями — большие панорамные окна наполняют пространство светом, а терраса обеспечивает удобную связь с садом.

Дом 7 на 8 одноэтажный можно возвести по упрощённой процедуре без разрешения, что делает строительство быстрым и экономичным. В стандартной комплектации предусмотрены камин и тепловой насос, обеспечивающие уют и энергоэффективность круглый год.

Закажите бесплатный расчет

Характеристика
Общая площадь
87,27 м²
Общая площадь диапазон
80–99.9 м²
Полезная площадь
69,19 м²
Площадь застройки
63,19 м²
Площадь крыши
119 м²
Угол наклона крыши
38°
Высота здания
6,72 м²
Ширина фасада
8,90 м
Длина фасада
7,10 м
Минимальные размеры участка
Длина: 16,10 м, Ширина: 16,90 м
Коридор
6,55 м²
Ванная комната
5,23 м²
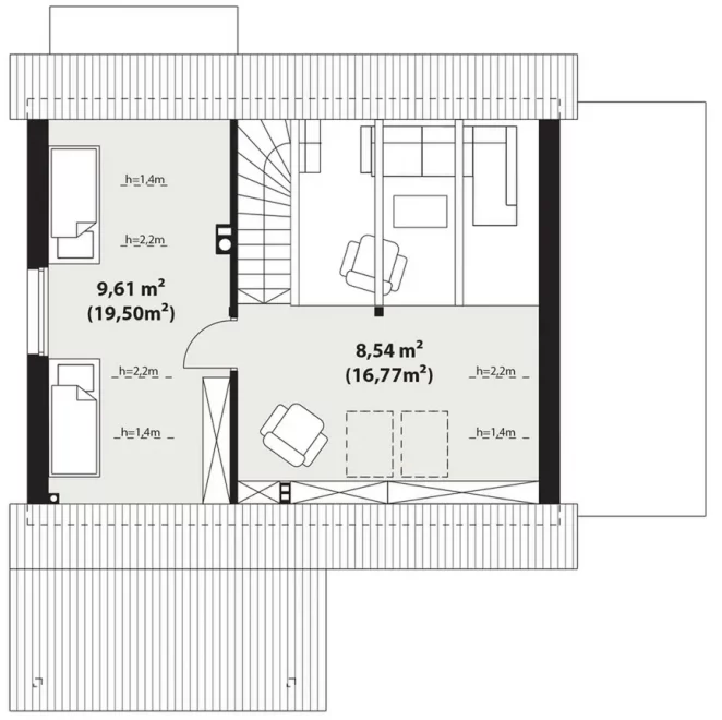
Комната
19,50 м², 9,40 м²
Гостиная + кухня + столовая
29,86 м²
Количество человек
3-4
Количество этажей
Одноэтажный, С мансардой
Количество санузлов
1
Особенности
Панорамное остекление
Отделка фасада
Фиброцементный сайдинг
Форма крыши
Двускатная
Популярные проекты
Все проекты
Обратная связь
Получить проект дома в подарок