Каркасно-панельный дом 6 на 9 AET-145

Характеристика дома:
Общая площадь
77,87 м²
Общая площадь диапазон
60–79.9 м²
Полезная площадь
64,44 м²
Площадь застройки
52,37 м²
Площадь крыши
107,87 м²
Угол наклона крыши
45°
Стоимость от
4 389 000 руб
Контакты для связи:
Способы оплаты
С помощью интернет банкинга
Рассрочка / кредитование / ипотека
Досрочное погашение
Предчистовая отделка включена
Гарантия на проект
Фиксированная цена
Стоимость, указанная в договоре, не меняется в ходе строительства
Гибкая система оплаты
Вы вносите 5% от стоимости при подписании договора. Остаток оплачиваете частями.
Акция
Изменение проекта или адаптация проекта другой компании - БЕСПЛАТНО

Проект дома AET-145 — это компактный и уютный каркасный дом 6 на 9 с мансардой, разработанный для комфортного проживания небольшой семьи. Простая форма, аккуратная двускатная крыша и продуманные пропорции делают здание универсальным решением как для дачного участка, так и для круглогодичного проживания.

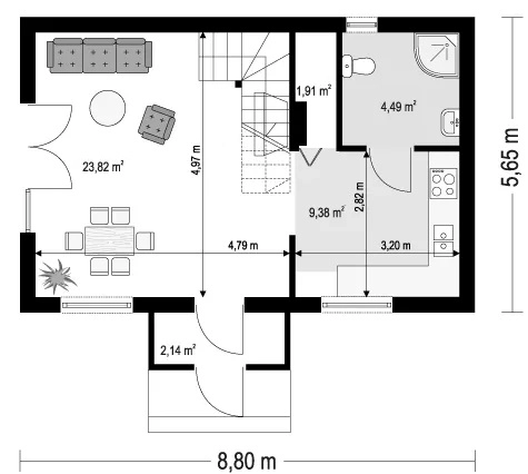
Несмотря на скромную площадь застройки — всего 52 м², планировка дома продумана до мелочей. Первый этаж включает просторную гостиную с обеденной зоной, светлую кухню и удобную ванную комнату. Открытая планировка позволяет создать ощущение простора и объединяет зоны отдыха, делая интерьер визуально больше. Дополнительное подсобное помещение обеспечивает место для хранения, а изолированный тамбур защищает дом от холода и влаги.

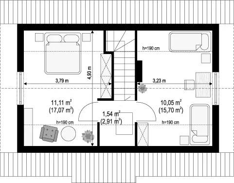
На мансардном этаже размещены две уютные спальни и коридор. Благодаря высокому углу наклона крыши (45°) помещения под мансардой получаются светлыми, с полноценной высотой потолков. Это создаёт дополнительное удобство и позволяет использовать пространство максимально эффективно.

Проект дома 6 на 9 с мансардой AET-145 — это пример гармоничного сочетания функциональности, экономичности и современного дизайна. Такой одноэтажный каркасный дом с мансардой станет идеальным выбором для тех, кто хочет купить или заказать проект дома 6 на 9 с комфортной планировкой, оптимальной стоимостью и приятным внешним видом.

Закажите бесплатный расчет

Характеристика
Общая площадь
77,87 м²
Общая площадь диапазон
60–79.9 м²
Полезная площадь
64,44 м²
Площадь застройки
52,37 м²
Площадь крыши
107,87 м²
Угол наклона крыши
45°
Высота здания
7,0 м²
Ширина фасада
8,80 м
Длина фасада
6,65 м
Минимальные размеры участка
Длина: 14,65 м, Ширина: 16,80 м
Тамбур (вестибюль)
2,14 м²
Гостиная + столовая
23,82 м²
Кухня
9,38 м²
Ванная комната
4,49 м²
Подсобное помещение
1,91 м²
Коридор
2,91 м²
Комната
15,70 м², 17,07 м²
Количество человек
2-3
Количество этажей
Одноэтажный, С мансардой
Количество санузлов
1
Особенности
Панорамное остекление
Отделка фасада
Облицовочный кирпич, Штукатурка
Форма крыши
Двускатная
Популярные проекты
Все проекты
Обратная связь
Получить проект дома в подарок