Каркасно-панельный дом 6 на 9 AET-148

Характеристика дома:
Общая площадь
123,66 м²
Общая площадь диапазон
120–139.9 м²
Полезная площадь
68,75 м²
Площадь застройки
61,83 м²
Площадь крыши
117,23 м²
Угол наклона крыши
40°
Стоимость от
4 538 430 руб
Контакты для связи:
Способы оплаты
С помощью интернет банкинга
Рассрочка / кредитование / ипотека
Досрочное погашение
Предчистовая отделка включена
Гарантия на проект
Фиксированная цена
Стоимость, указанная в договоре, не меняется в ходе строительства
Гибкая система оплаты
Вы вносите 5% от стоимости при подписании договора. Остаток оплачиваете частями.
Акция
Изменение проекта или адаптация проекта другой компании - БЕСПЛАТНО

Проект дома AET-148 — это современный и компактный каркасный дом 6 на 9 с мансардой, идеально подходящий для небольшой семьи. Площадь застройки менее 70 м² делает его отличным решением для участков с ограниченным пространством. Простая форма, лаконичная архитектура и оптимальная планировка обеспечивают экономичность строительства и высокий уровень комфорта.

Первый этаж объединяет функциональность и уют: просторная гостиная с кухней и обеденной зоной создаёт единое открытое пространство, где приятно проводить время всей семьёй. Рядом расположены ванная комната, котельная с прачечной и дополнительная спальня, которую можно использовать как кабинет или гостевую. В доме предусмотрены два варианта отопления — газовое или с использованием теплового насоса, что позволяет адаптировать проект под разные условия эксплуатации. Центральный камин в гостиной не только украшает интерьер, но и служит дополнительным источником тепла в холодный сезон.

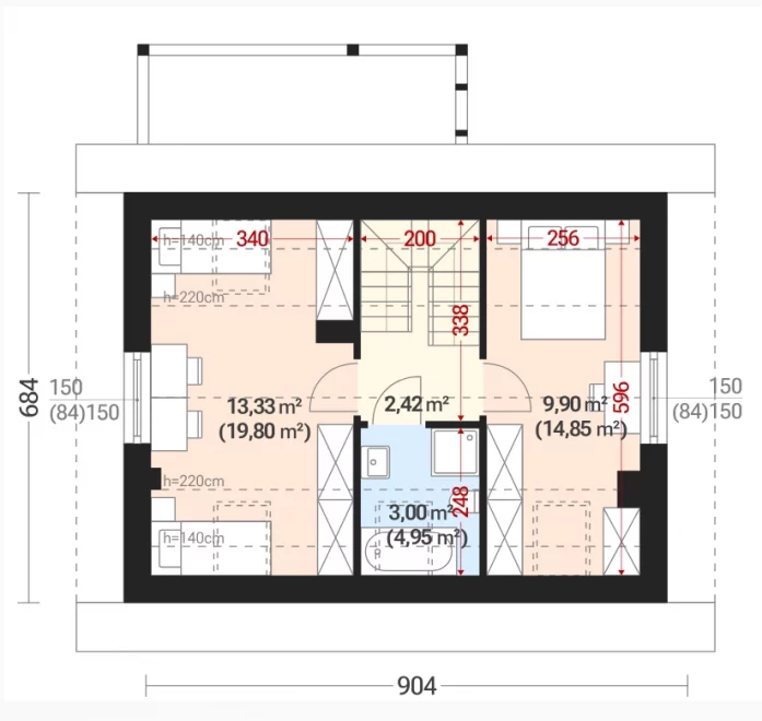
На мансарде расположена уютная родительская спальня, детская комната и просторная ванная. Благодаря углу наклона крыши 40° и удачным пропорциям, помещения получились светлыми и удобными для повседневного использования.

Фасад дома можно оформить как в современном, так и в классическом стиле, используя натуральные материалы. При проектировании особое внимание уделено экологичности и энергоэффективности: предусмотрена возможность установки фотогальванической системы и тёплого пола.

Проект дома 6 на 9 с мансардой AET-148 сочетает функциональность, современный дизайн и экономичность. Это идеальный выбор для тех, кто хочет купить или заказать каркасный дом 6х9 с оптимальной стоимостью, продуманной планировкой и возможностью экологичного отопления.

Закажите бесплатный расчет

Характеристика
Общая площадь
123,66 м²
Общая площадь диапазон
120–139.9 м²
Полезная площадь
68,75 м²
Площадь застройки
61,83 м²
Площадь крыши
117,23 м²
Угол наклона крыши
40°
Высота здания
7,62 м²
Длина фасада
6,84 м
Ширина фасада
9,04 м
Минимальные размеры участка
Длина: 16,49 м, Ширина: 17,04 м
Тамбур (вестибюль)
3,40 м²
Гостиная + кухня + столовая
18,95 м²
Коридор
2,42 м², 7,97 м²
Комната
14,85 м², 19,80 м², 6,40 м²
Ванная комната
3,38 м², 4,95 м²
Котельная + прачечная
4,10 м²
Количество человек
3-5
Количество этажей
Одноэтажный, С мансардой
Количество санузлов
2
Особенности
Терраса
Отделка фасада
Планкен, Штукатурка
Форма крыши
Двускатная
Популярные проекты
Все проекты
Обратная связь
Оставьте заявку и получите проект дома в подарок