Каркасно-панельный дом 6 на 9 AET-149

Характеристика дома:
Общая площадь
80,22 м²
Общая площадь диапазон
80–99.9 м²
Площадь застройки
56,01 м²
Площадь крыши
121,32 м²
Угол наклона крыши
45°
Высота здания
7,0 м²
Стоимость от
4 265 500 руб
Контакты для связи:
Способы оплаты
С помощью интернет банкинга
Рассрочка / кредитование / ипотека
Досрочное погашение
Предчистовая отделка включена
Гарантия на проект
Фиксированная цена
Стоимость, указанная в договоре, не меняется в ходе строительства
Гибкая система оплаты
Вы вносите 5% от стоимости при подписании договора. Остаток оплачиваете частями.
Акция
Изменение проекта или адаптация проекта другой компании - БЕСПЛАТНО

Проект дома AET-149 — это компактный и функциональный каркасный дом 6 на 9 с мансардой, разработанный для комфортного проживания небольшой семьи. Благодаря продуманной архитектуре и небольшой площади застройки дом идеально подходит для участков с ограниченными размерами. Он сочетает простоту формы, энергоэффективность и современный стиль, делая строительство доступным и практичным.

Первый этаж объединяет просторную гостиную площадью почти 24 м² и удобную кухню, создавая открытую и светлую зону для отдыха и приёма гостей. Также на этом уровне предусмотрены ванная комната, подсобное помещение и тамбур, изолирующий жилую часть от холода. Благодаря рациональной планировке и большим окнам, даже компактное пространство ощущается просторным и уютным.

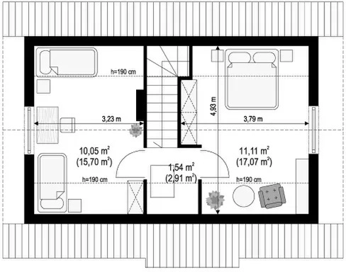
Мансардный этаж полностью отведён под зону отдыха. Здесь расположены две комфортные спальни и небольшой холл. Благодаря высокой коленной стене и углу наклона крыши 45°, комнаты получились светлыми и удобными для постоянного проживания. Такое решение делает дом идеальным вариантом как для круглогодичного использования, так и в качестве дачного коттеджа.

Проект дома 6 на 9 с мансардой AET-149 сочетает рациональную планировку, энергоэффективные решения и современный дизайн. Этот одноэтажный каркасный дом с мансардой — отличное решение для тех, кто хочет купить или заказать проект дома 6х9 с оптимальной стоимостью строительства и высоким уровнем комфорта.

Закажите бесплатный расчет

Характеристика
Общая площадь
80,22 м²
Общая площадь диапазон
80–99.9 м²
Площадь застройки
56,01 м²
Площадь крыши
121,32 м²
Угол наклона крыши
45°
Высота здания
7,0 м²
Длина фасада
6,95 м
Ширина фасада
9,0 м
Минимальные размеры участка
Длина: 14,95 м, Ширина: 17,0 м
Тамбур (вестибюль)
2,14 м²
Гостиная
23,82 м²
Кухня
7,44 м²
Ванная комната
4,38 м²
Подсобное помещение
3,05 м²
Холл
2,91 м²
Комната
15,70 м², 17,07 м²
Количество этажей
Одноэтажный, С мансардой
Количество человек
2-3
Количество санузлов
1
Особенности
Терраса
Отделка фасада
Планкен, Штукатурка
Форма крыши
Двускатная
Популярные проекты
Все проекты
Обратная связь
Получить проект дома в подарок