Каркасно-панельный дом 6 на 9 AET-155

Характеристика дома:
Общая площадь
141,21 м²
Общая площадь диапазон
140–159.9 м²
Полезная площадь
62,70 м²
Площадь застройки
55,72 м²
Жилая площадь
32,50 м²
Жилая площадь диапазон
30–39.9 м²
Стоимость от
4 191 600 руб
Контакты для связи:
Способы оплаты
С помощью интернет банкинга
Рассрочка / кредитование / ипотека
Досрочное погашение
Предчистовая отделка включена
Гарантия на проект
Фиксированная цена
Стоимость, указанная в договоре, не меняется в ходе строительства
Гибкая система оплаты
Вы вносите 5% от стоимости при подписании договора. Остаток оплачиваете частями.
Акция
Изменение проекта или адаптация проекта другой компании - БЕСПЛАТНО

О проекте Каркасно-панельный дом 6 на 9 AET-155

Проект дома 155 — это современный каркасный дом 6×9 с мансардой, сочетающий компактность, функциональность и уют. Благодаря продуманной планировке и рациональному использованию площади, он идеально подойдёт для семьи из 3–5 человек или как комфортный загородный дом для отдыха.

На первом этаже предусмотрена просторная гостиная, совмещённая с кухней и обеденной зоной, создающая открытую и светлую дневную часть дома. Здесь также размещены ванная, хозяйственное помещение и отдельная спальня, что делает проживание удобным для всех членов семьи.

Мансарда отведена под приватную зону — две уютные спальни, ванную и небольшую антресоль, которую можно использовать как рабочее место, игровую или библиотеку. Такое решение обеспечивает баланс между комфортом и уединением.

Форма здания и двускатная крыша делают этот дом 6 на 9 двухэтажный не только эстетически привлекательным, но и экономичным в строительстве. Каркасная технология позволяет возвести дом быстро, а энергоэффективные решения снижают эксплуатационные расходы.

Дом 155 прекрасно подойдёт для узких участков и органично впишется в любую среду — от городских окраин до сельских пейзажей. Просторная терраса и большие окна наполняют интерьер светом и создают ощущение простора.

Такой проект дома 6 на 9 одноэтажный с мансардой — отличный выбор для тех, кто ценит удобство, уют и стиль в одном решении.

Закажите бесплатный расчет

Характеристика
Общая площадь
141,21 м²
Общая площадь диапазон
140–159.9 м²
Полезная площадь
62,70 м²
Площадь застройки
55,72 м²
Жилая площадь
32,50 м²
Жилая площадь диапазон
30–39.9 м²
Угол наклона крыши
45°
Высота здания
6,70 м
Ширина фасада
9,95 м
Длина фасада
5,60 м
Минимальные размеры участка
Длина: 14,10 м, Ширина: 17,95 м
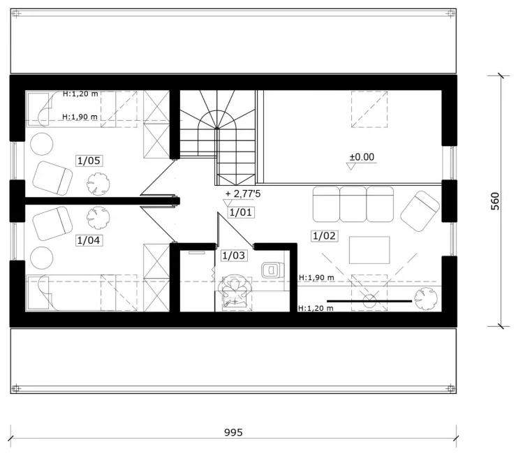
Коридор
3,92 м², 6,73 м²
Ванная комната
3,55 м², 3,77 м²
Комната
7,45 м², 7,97 м², 7,97 м²
Хозяйственное помещение
2,08 м²
Лестница
3,65 м²
Гостиная + кухня + столовая
20,64 м²
Количество этажей
С мансардой
Количество человек
3-5
Количество санузлов
2
Особенности
Панорамное остекление, Терраса
Отделка фасада
Планкен, Штукатурка
Форма крыши
Двускатная
Популярные проекты
Все проекты
Обратная связь
Оставьте заявку и получите проект дома в подарок