Каркасно-панельный дом 6 на 10 AET-161

Характеристика дома:
Общая площадь
116,30 м²
Жилая площадь
67,80 м²
Площадь застройки
67,50 м²
Чистая площадь
94,60 м²
Угол наклона крыши
45°
Высота здания
7,46 м
Стоимость от
4 532 000 руб
Контакты для связи:
Способы оплаты
С помощью интернет банкинга
Рассрочки / кредитование
Досрочное погашение
Предчистовая отделка включена
Гарантия на проект
Фиксированная цена
Стоимость, указанная в договоре, не меняется в ходе строительства
Гибкая система оплаты
Вы вносите 5% от стоимости при подписании договора. Остаток оплачиваете частями.
Акция
Изменение проекта или адаптация проекта другой компании - БЕСПЛАТНО

О проекте каркасно-панельный дом 6 на 10 AET-161

Этот современный каркасный дом 6 на 10 с мансардой идеально подойдёт для семьи из 3–4 человек. Общая площадь дома — 116,3 м², жилая — 67,8 м², что позволяет максимально эффективно использовать пространство на участке средней ширины.

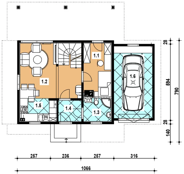
На первом этаже расположены гостиная (18,4 м²) и кухня (4,6 м²), объединённые в комфортную дневную зону, ванная комната (3,9 м²), комната площадью 8,6 м² и тамбур (2,9 м²). Встроенный одноместный гараж (16,9 м²) делает проживание особенно удобным для владельцев автомобиля.

Мансарда дома 6х10 одноэтажный с мансардой добавляет полезную площадь и включает две спальни (13 и 17,3 м²), коридор и хозяйственное помещение. Эта зона идеально подходит для детей, кабинета или гостевой комнаты, обеспечивая приватность и комфорт.

Проект дома 6 на 10 одноэтажный планировка разработан с учётом рационального использования участка. Двускатная крыша с углом наклона 45° гарантирует эффективный отвод осадков и долговечность конструкции.

Современная планировка дома позволяет разместить все необходимые хозяйственные помещения. Проект каркасного дома 6х10 с отличной планировкой сочетает компактность, функциональность и энергоэффективность, обеспечивая комфортное круглогодичное проживание.

Фасад дома выполнен в традиционном стиле, гармонично вписывается в любой ландшафт, а использование каркасных технологий позволяет сократить сроки строительства и снизить эксплуатационные расходы. Этот проект станет оптимальным выбором для тех, кто ищет дом 6 на 10 одноэтажный с мансардой — сочетание стиля, практичности и современных строительных решений.

Закажите бесплатный расчет

Характеристика
Общая площадь
116,30 м²
Жилая площадь
67,80 м²
Площадь застройки
67,50 м²
Чистая площадь
94,60 м²
Угол наклона крыши
45°
Высота здания
7,46 м
Ширина фасада
10,66 м
Длина фасада
7,90 м
Минимальные размеры участка
Длина: 17,50 м, Ширина: 19 м
Площадь первого этажа
55,30 м²
Площадь мансарды
39,30 м²
Комната
13 м², 17,30 м², 8,60 м²
Гостиная
18,40 м²
Ванная комната
3,90 м²
Тамбур (вестибюль)
2,90 м²
Кухня
4,60 м²
Одноместный гараж
16,90 м²
Коридор
4,60 м²
Хозяйственное помещение
4,40 м²
Количество этажей
С мансардой
Количество человек
3-5
Количество санузлов
1
Отделка фасада
Штукатурка
Особенности
Терраса
Форма крыши
Многоскатная
Популярные проекты
Каркасно-панельный дом 6 на 9 AET-155
Общая площадь
141,21 м²
Полезная площадь
62,70 м²
Площадь застройки
55,72 м²
Жилая площадь
32,50 м²
Стоимость от
4 191 600 руб
Каркасно-панельный дом 6 на 9 AET-154
Общая площадь
70,70 м²
Полезная площадь
61,40 м²
Площадь застройки
44,40 м²
Жилая площадь
32,50 м²
Стоимость от
4 594 000 руб
Каркасно-панельный дом 6 на 9 AET-153
Общая площадь
53,32 м²
Полезная площадь
53,32 м²
Площадь застройки
64,77 м²
Жилая площадь
17,74 м²
Стоимость от
3 046 800 руб
Все проекты
Обратная связь
Оставьте заявку и получите проект дома в подарок