Каркасно-панельный дом 6 на 10 AET-163

Характеристика дома:
Общая площадь
141,21 м²
Жилая площадь
69,65 м²
Высота коленной стены
1,20 м
Площадь застройки
55,72 м²
Чистая площадь
69,65 м²
Чистый объем
244,10 м³
Стоимость от
5 140 000 руб
Контакты для связи:
Способы оплаты
С помощью интернет банкинга
Рассрочки / кредитование
Досрочное погашение
Предчистовая отделка включена
Гарантия на проект
Фиксированная цена
Стоимость, указанная в договоре, не меняется в ходе строительства
Гибкая система оплаты
Вы вносите 5% от стоимости при подписании договора. Остаток оплачиваете частями.
Акция
Изменение проекта или адаптация проекта другой компании - БЕСПЛАТНО

О проекте каркасно-панельный дом 6 на 10 AET-163

Этот современный каркасный дом 6 на 10 с мансардой сочетает компактные размеры, продуманную планировку и комфорт для семьи из 3–5 человек. Общая площадь дома составляет 141,21 м², жилая — 69,65 м², что позволяет эффективно использовать пространство на участке средней ширины.

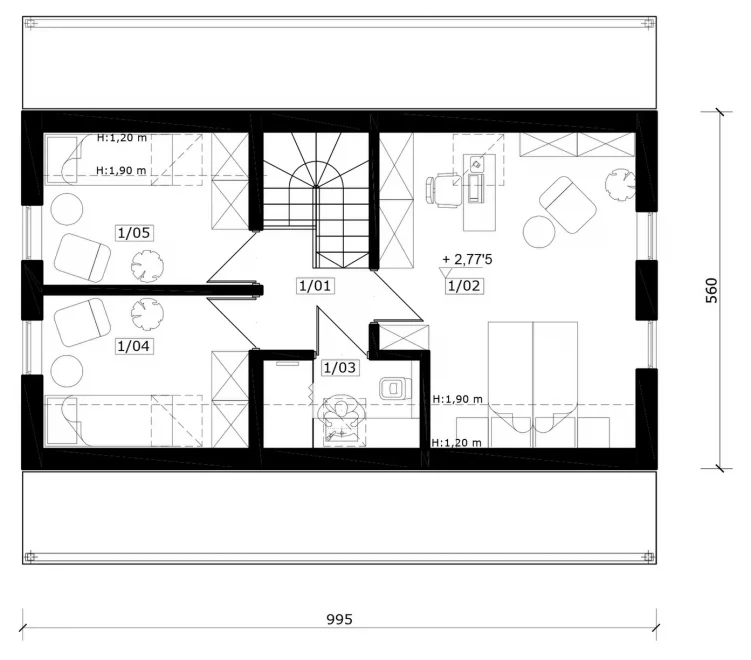
На первом этаже расположены просторная гостиная с кухней и столовой (20,64 м²), комната площадью 7,45 м², ванная (3,55 м²), коридор (3,92 м²) и хозяйственное помещение (2,08 м²). Лестница (3,65 м²) ведёт на мансарду, где находятся три спальни (19,11 и две по 7,97 м²), ванная (3,55 м²) и коридор (3,92 м²). Такая планировка обеспечивает приватность и комфорт для всех членов семьи.

Дом 6 на 10 одноэтажный с мансардой отличается продуманной конструкцией: двускатная крыша с углом наклона 40° и высотой коленной стены 1,2 м позволяет максимально эффективно использовать пространство мансарды. Высота здания 6,7 м, фасадные размеры 9,95×5,6 м, минимальные размеры участка — 17,95×14,1 м.

Проект каркасного дома 6х10 с отличной планировкой сочетает энергоэффективность и экономичность строительства. Простая форма здания и компактная планировка обеспечивают минимальные затраты на возведение и последующую эксплуатацию, а большие окна в дневной зоне создают ощущение простора и светлоты.

Фасад можно оформить в современном или классическом стиле, сочетая штукатурку, планкен и декоративные элементы. Этот проект дома 6х10 с мансардой станет отличным выбором для тех, кто ищет функциональное, компактное и комфортное жильё для круглогодичного проживания.

Закажите бесплатный расчет

Характеристика
Общая площадь
141,21 м²
Жилая площадь
69,65 м²
Высота коленной стены
1,20 м
Площадь застройки
55,72 м²
Чистая площадь
69,65 м²
Чистый объем
244,10 м³
Общий объём
365,50 м³
Площадь крыши
114,50 м²
Угол наклона крыши
40°
Высота здания
6,70 м
Ширина фасада
9,95 м
Длина фасада
5,60 м
Минимальные размеры участка
Длина: 14,10 м, Ширина: 17,95 м
Площадь первого этажа
44,32 м²
Площадь мансарды
42,52 м²
Коридор
3,92 м²
Ванная комната
3,55 м²
Комната
19,11 м², 7,45 м², 7,97 м², 7,97 м²
Хозяйственное помещение
2,08 м²
Лестница
3,65 м²
Гостиная + кухня + столовая
20,64 м²
Количество этажей
С мансардой
Количество человек
3-5
Количество санузлов
1
Отделка фасада
Планкен, Штукатурка
Особенности
Панорамное остекление, Терраса
Форма крыши
Двускатная
Популярные проекты
Каркасно-панельный дом 6 на 9 AET-146
Общая площадь
69,83 м²
Полезная площадь
51,82 м²
Площадь застройки
69,83 м²
Площадь крыши
106,61 м²
Стоимость от
3 290 000 руб
Каркасно-панельный дом 6 на 9 AET-145
Общая площадь
77,87 м²
Полезная площадь
64,44 м²
Площадь застройки
52,37 м²
Площадь крыши
107,87 м²
Стоимость от
4 389 000 руб
Каркасно-панельный дом 6 на 9 AET-144
Общая площадь
68,80 м²
Полезная площадь
53,10 м²
Площадь застройки
68,80 м²
Площадь крыши
104 м²
Стоимость от
5 482 840 руб
Все проекты
Обратная связь
Оставьте заявку и получите проект дома в подарок