Каркасно-панельный дом 8 на 8 AET-171

Характеристика дома:
Общая площадь
69,70 м²
Общая площадь диапазон
60–79.9 м²
Жилая площадь
42,00 м²
Жилая площадь диапазон
40–49.9 м²
Полезная площадь
51,90 м²
Площадь застройки
69,70 м²
Стоимость от
3 845 100 руб
Контакты для связи:
Способы оплаты
С помощью интернет банкинга
Рассрочка / кредитование / ипотека
Досрочное погашение
Предчистовая отделка включена
Гарантия на проект
Фиксированная цена
Стоимость, указанная в договоре, не меняется в ходе строительства
Гибкая система оплаты
Вы вносите 5% от стоимости при подписании договора. Остаток оплачиваете частями.
Акция
Изменение проекта или адаптация проекта другой компании - БЕСПЛАТНО

О проекте Каркасно-панельный дом 8 на 8 AET-171

Проект дома 171 — это одноэтажный каркасный дом 8 на 8, который сочетает компактность и функциональность, идеально подходя для узких или стандартных участков. Дом имеет продуманную планировку, где гостиная с кухней и обеденной зоной образует просторную дневную зону, обеспечивая удобство для семейных вечеров и общения. Внутри также предусмотрены несколько спален и ванная комната, что делает дом комфортным для семьи из 3–4 человек.

Каркасный дом 8х8 одноэтажный проект отличается экономичностью строительства и эксплуатации благодаря простой форме здания и двускатной крыше с умеренным углом наклона. Использование каркасной технологии позволяет быстро возвести дом и обеспечивает хорошую энергоэффективность.

Внешний вид дома выдержан в традиционном стиле, гармонично вписывающемся в любую окружающую среду. Терраса или открытая зона перед домом станет уютным местом для отдыха на свежем воздухе. Этот проект объединяет комфорт, практичность и стиль, предлагая идеальное решение для постоянного проживания или дачи.

Закажите бесплатный расчет

Характеристика
Общая площадь
69,70 м²
Общая площадь диапазон
60–79.9 м²
Жилая площадь
42,00 м²
Жилая площадь диапазон
40–49.9 м²
Полезная площадь
51,90 м²
Площадь застройки
69,70 м²
Общий объём
307,10 м³
Площадь крыши
119 м²
Угол наклона крыши
30°
Высота здания
6,11 м
Ширина фасада
8,35 м
Длина фасада
8,35 м
Минимальные размеры участка
Длина: 16,35 м, Ширина: 16,35 м
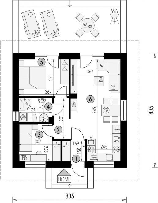
Тамбур (вестибюль)
2,45 м²
Холл
3,40 м²
Комната
7,50 м², 9,70 м²
Ванная комната
4,05 м²
Гостиная + кухня + столовая
24,80 м²
Количество этажей
Одноэтажный
Количество человек
3-4
Количество санузлов
1
Отделка фасада
Облицовочный камень, Штукатурка
Форма крыши
Многоскатная
Популярные проекты
Все проекты
Обратная связь
Получить проект дома в подарок