Каркасно-панельный дом 8 на 8 AET-174

Характеристика дома:
Общая площадь
69,70 м²
Общая площадь диапазон
60–79.9 м²
Жилая площадь
41,55 м²
Жилая площадь диапазон
40–49.9 м²
Полезная площадь
51,40 м²
Площадь застройки
69,70 м²
Стоимость от
3 656 900 руб
Контакты для связи:
Способы оплаты
С помощью интернет банкинга
Рассрочка / кредитование / ипотека
Досрочное погашение
Предчистовая отделка включена
Гарантия на проект
Фиксированная цена
Стоимость, указанная в договоре, не меняется в ходе строительства
Гибкая система оплаты
Вы вносите 5% от стоимости при подписании договора. Остаток оплачиваете частями.
Акция
Изменение проекта или адаптация проекта другой компании - БЕСПЛАТНО

О проекте Каркасно-панельный дом 8 на 8 AET-174

Проект дома 8 на 8 представляет собой одноэтажный каркасный дом 8х8 с продуманной и функциональной планировкой, идеально подходящий для семьи, ценящей комфорт и рациональное использование пространства. В доме предусмотрены просторная гостиная с кухней и обеденной зоной, несколько спален, ванная комната, холл и тамбур, что делает его удобным для повседневной жизни.

Каркасный дом 8х8 одноэтажный отличается экономичностью строительства и эксплуатации, а простая форма здания позволяет эффективно использовать участок. Угол наклона крыши обеспечивает надежную защиту от осадков, а аккуратная конструкция фасада гармонично вписывается в любой ландшафт.

Дом 8 на 8 одноэтажный планировка сочетает стиль, функциональность и энергоэффективность. Каркасная технология строительства обеспечивает быстрые сроки возведения, долговечность и комфортное проживание. Благодаря рациональной планировке и компактным размерам, этот проект идеально подходит для небольшого участка, оставаясь при этом просторным и удобным для всей семьи.

Закажите бесплатный расчет

Характеристика
Общая площадь
69,70 м²
Общая площадь диапазон
60–79.9 м²
Жилая площадь
41,55 м²
Жилая площадь диапазон
40–49.9 м²
Полезная площадь
51,40 м²
Площадь застройки
69,70 м²
Общий объём
335,10 м³
Площадь крыши
114 м²
Угол наклона крыши
30°
Высота здания
6,11 м
Ширина фасада
8,35 м
Длина фасада
8,35 м
Минимальные размеры участка
Длина: 16,35 м, Ширина: 16,35 м
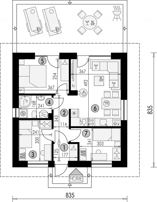
Тамбур (вестибюль)
2,10 м²
Холл
3,90 м²
Комната
7,05 м², 7,80 м²
Ванная комната
3,85 м²
Гостиная + кухня + столовая
17,60 м²
Количество этажей
Одноэтажный
Количество человек
3-4
Количество санузлов
1
Отделка фасада
Планкен, Штукатурка
Форма крыши
Многоскатная
Популярные проекты
Все проекты
Обратная связь
Получить проект дома в подарок