Каркасно-панельный дом 8 на 8 AET-175

Характеристика дома:
Общая площадь
69,70 м²
Общая площадь диапазон
60–79.9 м²
Жилая площадь
42,00 м²
Жилая площадь диапазон
40–49.9 м²
Полезная площадь
51,90 м²
Площадь застройки
69,70 м²
Стоимость от
3 648 200 руб
Контакты для связи:
Способы оплаты
С помощью интернет банкинга
Рассрочка / кредитование / ипотека
Досрочное погашение
Предчистовая отделка включена
Гарантия на проект
Фиксированная цена
Стоимость, указанная в договоре, не меняется в ходе строительства
Гибкая система оплаты
Вы вносите 5% от стоимости при подписании договора. Остаток оплачиваете частями.
Акция
Изменение проекта или адаптация проекта другой компании - БЕСПЛАТНО

О проекте Каркасно-панельный дом 8 на 8 AET-175

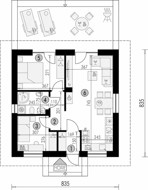
Проект дома 8 на 8 представляет собой одноэтажный каркасный дом 8х8 с удобной и продуманной планировкой, идеально подходящий для семьи, которая ценит комфорт и функциональность. В доме предусмотрены просторная гостиная с кухней и обеденной зоной, несколько комнат, ванная комната, холл и тамбур, что делает его удобным для повседневного проживания и досуга.

Каркасный дом 8х8 одноэтажный отличается экономичностью строительства и эксплуатации, а компактные размеры здания позволяют рационально использовать участок. Простая и аккуратная форма дома делает его гармоничным в любом окружении, а угол наклона крыши обеспечивает надежную защиту от осадков.

Дом 8 на 8 одноэтажный планировка сочетает современную функциональность и традиционный стиль. Каркасная технология строительства позволяет быстро возвести здание, обеспечивает долговечность и комфорт для всей семьи. Такой проект идеально подходит для небольшого участка, предлагая при этом просторное и уютное жилое пространство.

Закажите бесплатный расчет

Характеристика
Общая площадь
69,70 м²
Общая площадь диапазон
60–79.9 м²
Жилая площадь
42,00 м²
Жилая площадь диапазон
40–49.9 м²
Полезная площадь
51,90 м²
Площадь застройки
69,70 м²
Общий объём
335,10 м³
Площадь крыши
114 м²
Угол наклона крыши
30°
Высота здания
6,11 м
Ширина фасада
8,35 м
Длина фасада
8,35 м
Минимальные размеры участка
Длина: 16,35 м, Ширина: 16,35 м
Тамбур (вестибюль)
2,45 м²
Холл
3,40 м²
Комната
7,50 м², 9,70 м²
Ванная комната
4,05 м²
Гостиная + кухня + столовая
24,80 м²
Количество этажей
Одноэтажный
Количество человек
3-4
Количество санузлов
1
Отделка фасада
Облицовочный камень, Штукатурка
Форма крыши
Двускатная
Особенности
Панорамное остекление
Популярные проекты
Все проекты
Обратная связь
Получить проект дома в подарок