Каркасно-панельный дом 8 на 8 AET-176

Характеристика дома:
Общая площадь
69,70 м²
Общая площадь диапазон
60–79.9 м²
Жилая площадь
41,55 м²
Жилая площадь диапазон
40–49.9 м²
Полезная площадь
51,40 м²
Площадь застройки
69,70 м²
Стоимость от
3 720 300 руб
Контакты для связи:
Способы оплаты
С помощью интернет банкинга
Рассрочка / кредитование / ипотека
Досрочное погашение
Предчистовая отделка включена
Гарантия на проект
Фиксированная цена
Стоимость, указанная в договоре, не меняется в ходе строительства
Гибкая система оплаты
Вы вносите 5% от стоимости при подписании договора. Остаток оплачиваете частями.
Акция
Изменение проекта или адаптация проекта другой компании - БЕСПЛАТНО

О проекте Каркасно-панельный дом 8 на 8 AET-176

Проект дома 8 на 8 представляет собой одноэтажный каркасный дом 8х8, который сочетает компактные размеры с функциональной планировкой. В доме предусмотрены гостиная с кухней и обеденной зоной, несколько отдельных комнат, ванная комната, холл и тамбур, что обеспечивает удобное и комфортное проживание для семьи.

Каркасный дом 8 на 8 одноэтажный отличается экономичностью строительства и эксплуатации, а также рациональным использованием участка. Простая форма здания делает его гармоничным в любом окружении, а низкий угол наклона крыши облегчает монтаж и уход за покрытием.

Дом 8х8 одноэтажный создан для комфортной жизни, обеспечивая достаточное пространство для отдыха и приватности. Каркасная технология позволяет быстро возвести здание, а качественные материалы обеспечивают долговечность и теплоизоляцию, что делает его идеальным решением для постоянного проживания или использования в качестве дачного дома.

Закажите бесплатный расчет

Характеристика
Общая площадь
69,70 м²
Общая площадь диапазон
60–79.9 м²
Жилая площадь
41,55 м²
Жилая площадь диапазон
40–49.9 м²
Полезная площадь
51,40 м²
Площадь застройки
69,70 м²
Общий объём
307,10 м³
Площадь крыши
119 м²
Угол наклона крыши
30°
Высота здания
6,11 м
Ширина фасада
8,35 м
Длина фасада
8,35 м
Минимальные размеры участка
Длина: 16,35 м, Ширина: 16,35 м
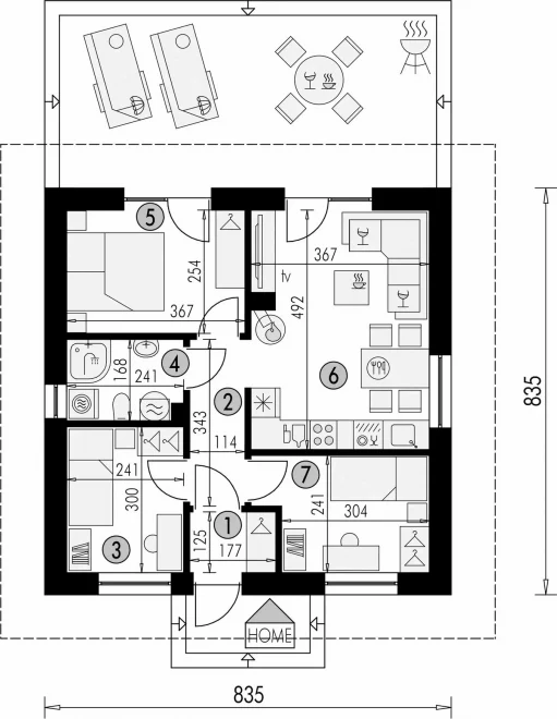
Тамбур (вестибюль)
2,10 м²
Холл
3,90 м²
Комната
7,05 м², 7,80 м², 9,10 м²
Ванная комната
3,85 м²
Гостиная + кухня + столовая
17,60 м²
Количество этажей
Одноэтажный
Количество человек
3-5
Количество санузлов
1
Отделка фасада
Планкен, Штукатурка
Форма крыши
Многоскатная
Популярные проекты
Все проекты
Обратная связь
Получить проект дома в подарок