Каркасно-панельный дом с мансардой AET-177

Характеристика дома:
Общая площадь
84,29 м²
Общая площадь диапазон
80–99.9 м²
Жилая площадь
44,79 м²
Жилая площадь диапазон
40–49.9 м²
Полезная площадь
61,69 м²
Площадь застройки
60,34 м²
Стоимость от
4 640 000 руб
Контакты для связи:
Способы оплаты
С помощью интернет банкинга
Рассрочка / кредитование / ипотека
Досрочное погашение
Предчистовая отделка включена
Гарантия на проект
Фиксированная цена
Стоимость, указанная в договоре, не меняется в ходе строительства
Гибкая система оплаты
Вы вносите 5% от стоимости при подписании договора. Остаток оплачиваете частями.
Акция
Изменение проекта или адаптация проекта другой компании - БЕСПЛАТНО

О проекте Каркасно-панельный дом с мансардой AET-177

Проект дома с мансардой AET-177 — функциональное решение для узкого участка, сочетающее уют, практичность и стиль. Компактная форма позволяет эффективно использовать пространство и сократить расходы на строительство. Дом рассчитан на отдельностоящее размещение и прекрасно подойдёт для семьи из 3–4 человек.

Архитектура выполнена в традиционном стиле с двускатной крышей, что делает здание гармоничным и универсальным. Это проект одноэтажного дома с мансардой, где дневная и ночная зоны чётко разделены. Просторная гостиная с камином и открытой кухней создаёт атмосферу уюта, а три спальни на мансарде обеспечивают приватность и комфорт.

Две ванные комнаты — по одной на каждом уровне — повышают удобство проживания. Терраса служит естественным продолжением жилого пространства и идеально подходит для отдыха на свежем воздухе.

Этот дом может использоваться как дачный дом с мансардой или для постоянного проживания. Каркасная технология обеспечивает надёжность и энергоэффективность, а лаконичный фасад делает дом привлекательным в любом окружении.

Закажите бесплатный расчет

Характеристика
Общая площадь
84,29 м²
Общая площадь диапазон
80–99.9 м²
Жилая площадь
44,79 м²
Жилая площадь диапазон
40–49.9 м²
Полезная площадь
61,69 м²
Площадь застройки
60,34 м²
Общий объём
301 м³
Площадь крыши
104,98 м²
Угол наклона крыши
42°
Высота здания
7,63 м
Ширина фасада
7,28 м
Длина фасада
7,28 м
Минимальные размеры участка
Длина: 15,28 м, Ширина: 15,28 м
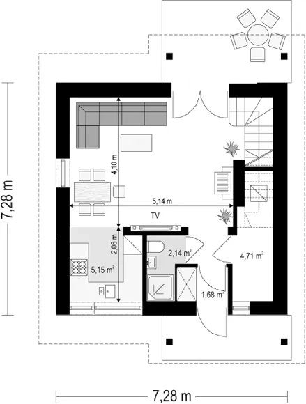
Площадь первого этажа
39,00 м²
Площадь мансарды
34,85 м²
Коридор
2,74 м²
Тамбур (вестибюль)
1,68 м²
Котельная
4,71 м²
Гостиная + столовая
25,32 м²
Кухня
5,15 м²
Ванная комната
2,14 м², 6,98 м²
Комната
7,11 м², 8,13 м², 9,89 м²
Количество этажей
С мансардой
Количество человек
3-5
Количество санузлов
2
Отделка фасада
Фиброцементный сайдинг, Штукатурка
Форма крыши
Двускатная
Особенности
Панорамное остекление
Популярные проекты
Все проекты
Обратная связь
Оставьте заявку и получите проект дома в подарок