Каркасно-панельный дом с мансардой AET-180

Характеристика дома:
Общая площадь
82,50 м²
Общая площадь диапазон
80–99.9 м²
Жилая площадь
48,96 м²
Жилая площадь диапазон
40–49.9 м²
Площадь первого этажа
41,39 м²
Площадь мансарды
38,07 м²
Стоимость от
4 311 000 руб
Контакты для связи:
Способы оплаты
С помощью интернет банкинга
Рассрочка / кредитование / ипотека
Досрочное погашение
Предчистовая отделка включена
Гарантия на проект
Фиксированная цена
Стоимость, указанная в договоре, не меняется в ходе строительства
Гибкая система оплаты
Вы вносите 5% от стоимости при подписании договора. Остаток оплачиваете частями.
Акция
Изменение проекта или адаптация проекта другой компании - БЕСПЛАТНО

О проекте Каркасно-панельный дом с мансардой AET-180

Проект дома с мансардой AET-180 — это идеальное сочетание функциональности, уюта и экономичности. Дом спроектирован для участка средней ширины и прекрасно подойдёт как для постоянного проживания, так и в качестве загородного или дачного варианта. Простая и лаконичная архитектура делает строительство быстрым и доступным, а двускатная крыша придаёт дому классический, гармоничный облик.

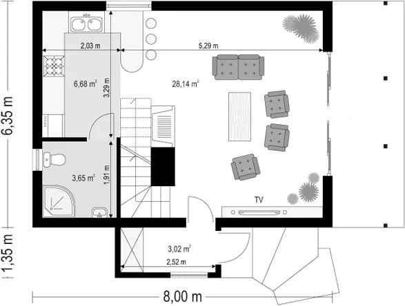
На первом этаже расположена просторная гостиная, объединённая с кухней, где можно проводить время всей семьёй. Большие окна обеспечивают естественное освещение, визуально увеличивая пространство. Здесь же предусмотрена ванная комната и удобный тамбур при входе.

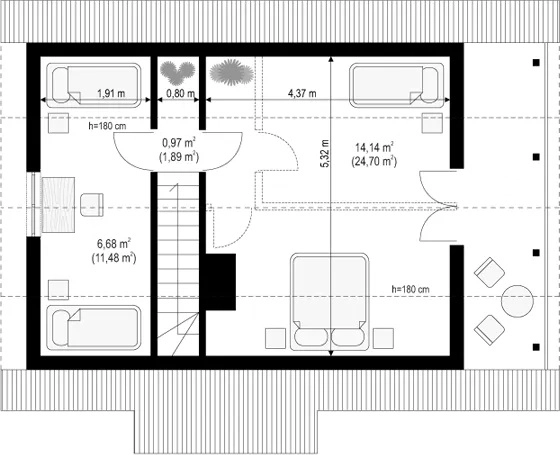
Мансардный этаж образует приватную зону отдыха с двумя уютными спальнями и коридором. Такое планировочное решение обеспечивает комфорт и рациональное использование каждого метра.

Проект одноэтажного дома с мансардой подойдёт для семей из 3–4 человек. Его компактные размеры делают возможным размещение даже на небольшом участке, при этом внутри дом остаётся просторным и светлым.

Внешняя отделка и пропорции здания выдержаны в традиционном стиле, благодаря чему дом гармонично впишется в любой пейзаж — от города до сельской местности.

Закажите бесплатный расчет

Характеристика
Общая площадь
82,50 м²
Общая площадь диапазон
80–99.9 м²
Жилая площадь
48,96 м²
Жилая площадь диапазон
40–49.9 м²
Площадь первого этажа
41,39 м²
Площадь мансарды
38,07 м²
Полезная площадь
63,40 м²
Площадь застройки
54,30 м²
Чистый объем
63,40 м²
Общий объём
233 м³
Площадь крыши
118,96 м²
Угол наклона крыши
50°
Высота здания
7,57 м
Ширина фасада
8,00 м
Длина фасада
7,35 м
Минимальные размеры участка
Длина: 15,35 м, Ширина: 16,50 м
Тамбур (вестибюль)
3,02 м²
Гостиная
28,14 м²
Кухня
6,58 м²
Комната
11,48 м², 24,70 м²
Ванная комната
3,65 м²
Количество этажей
С мансардой
Количество человек
3-4
Количество санузлов
1
Отделка фасада
Облицовочный камень, Планкен, Штукатурка
Форма крыши
Двускатная
Особенности
Панорамное остекление, Терраса
Популярные проекты
Все проекты
Обратная связь
Оставьте заявку и получите проект дома в подарок