Каркасно-панельный дом с мансардой AET-183

Характеристика дома:
Общая площадь
66,76 м²
Общая площадь диапазон
60–79.9 м²
Жилая площадь
47,22 м²
Жилая площадь диапазон
40–49.9 м²
Полезная площадь
66,76 м²
Площадь застройки
63,33 м²
Стоимость от
5 712 000 руб
Контакты для связи:
Способы оплаты
С помощью интернет банкинга
Рассрочка / кредитование / ипотека
Досрочное погашение
Предчистовая отделка включена
Гарантия на проект
Фиксированная цена
Стоимость, указанная в договоре, не меняется в ходе строительства
Гибкая система оплаты
Вы вносите 5% от стоимости при подписании договора. Остаток оплачиваете частями.
Акция
Изменение проекта или адаптация проекта другой компании - БЕСПЛАТНО

О проекте Каркасно-панельный дом с мансардой AET-183

Проект дома с мансардой AET-183 — это компактный и функциональный вариант для узких или средних участков. Простая форма здания облегчает обустройство интерьера и делает строительство быстрым и экономичным.

Дом относится к категории одноэтажных домов с жилой мансардой, что позволяет чётко разделить дневную и ночную зоны, а также рационально использовать полезную площадь.

На первом этаже расположена дневная зона, включающая гостиную, отдельную кухню и столовую. Гостиная оснащена камином, создающим уютную атмосферу. Также на первом этаже предусмотрена ванная комната оптимального размера.

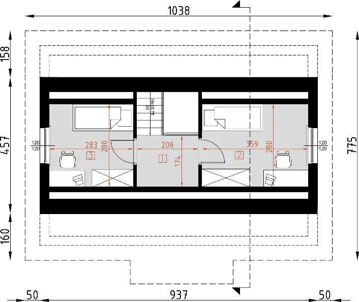
На мансарде находятся три спальни, обеспечивающие комфорт для семьи из 2–4 человек. Одну из комнат можно использовать как гостевую или кабинет.

Дом оборудован двумя террасами, которые создают удобные места для отдыха на свежем воздухе. Проект выполнен с применением каркасной технологии, что сокращает сроки возведения здания.

Внешний вид дома выдержан в традиционном стиле, что делает его гармоничным выбором для любого ландшафта. Площадь дома рассчитана до 70 м², что делает его экономичным и практичным решением.

Закажите бесплатный расчет

Характеристика
Общая площадь
66,76 м²
Общая площадь диапазон
60–79.9 м²
Жилая площадь
47,22 м²
Жилая площадь диапазон
40–49.9 м²
Полезная площадь
66,76 м²
Площадь застройки
63,33 м²
Площадь крыши
107 м²
Угол наклона крыши
40°
Высота здания
6,53 м
Ширина фасада
9,38 м
Длина фасада
6,75 м
Минимальные размеры участка
Длина: 14,75 м, Ширина: 17,38 м
Площадь первого этажа
72,28 м²
Площадь мансарды
22,79 м²
Тамбур (вестибюль)
2,68 м²
Гостиная
25,00 м²
Кухня
4,42 м²
Ванная комната
6,79 м²
Комната
10,21 м², 7,94 м², 9,96 м²
Лестница
1,27 м², 1,90 м²
Терраса
18,19 м², 3,34 м²
Коридор
3,37 м²
Количество этажей
С мансардой
Количество человек
3-5
Количество санузлов
1
Отделка фасада
Штукатурка
Форма крыши
Двускатная
Особенности
Терраса
Популярные проекты
Все проекты
Обратная связь
Оставьте заявку и получите проект дома в подарок