Каркасно-панельный дом с террасой AET-192

Характеристика дома:
Общая площадь
88,17 м²
Общая площадь диапазон
80–99.9 м²
Жилая площадь
43,97 м²
Жилая площадь диапазон
40–49.9 м²
Площадь застройки
64,37 м²
Площадь крыши
113,17 м²
Стоимость от
5 680 000 руб
Контакты для связи:
Способы оплаты
С помощью интернет банкинга
Рассрочка / кредитование / ипотека
Досрочное погашение
Предчистовая отделка включена
Гарантия на проект
Фиксированная цена
Стоимость, указанная в договоре, не меняется в ходе строительства
Гибкая система оплаты
Вы вносите 5% от стоимости при подписании договора. Остаток оплачиваете частями.
Акция
Изменение проекта или адаптация проекта другой компании - БЕСПЛАТНО

О проекте Каркасно-панельный дом с террасой AET-192

Проект AET-192 — компактный и функциональный одноэтажный дом с террасой проект с мансардой, идеально подходящий для семей, ценящих уют и рациональное использование пространства. Дом имеет простую форму и двускатную крышу с коньком, расположенным параллельно дороге, что облегчает строительство и отвечает современным градостроительным требованиям.

Первый этаж объединяет гостиную с обеденной зоной и закрытую кухню, где удобно готовить, не беспокоясь о распространении запахов по дому. Здесь также расположены ванная комната и несколько жилых помещений, которые могут использоваться как спальни или кабинет. Из дневной зоны предусмотрен выход на террасу — светлое и уютное место для отдыха на свежем воздухе и семейных встреч.

Мансарда добавляет дополнительные комнаты, создавая приватную ночную зону. Простая и функциональная планировка делает проект универсальным для постоянного проживания или загородного отдыха.

Проект AET-192 сочетает комфорт, практичность и современный стиль. Этот дом одновременно является одноэтажным домом с террасой, примером проекта дома с мансардой и террасой и удачным решением для тех, кто ищет одноэтажный каркасный дом с террасой с рациональной организацией пространства.

Закажите бесплатный расчет

Характеристика
Общая площадь
88,17 м²
Общая площадь диапазон
80–99.9 м²
Жилая площадь
43,97 м²
Жилая площадь диапазон
40–49.9 м²
Площадь застройки
64,37 м²
Площадь крыши
113,17 м²
Угол наклона крыши
40°
Высота здания
6,57 м
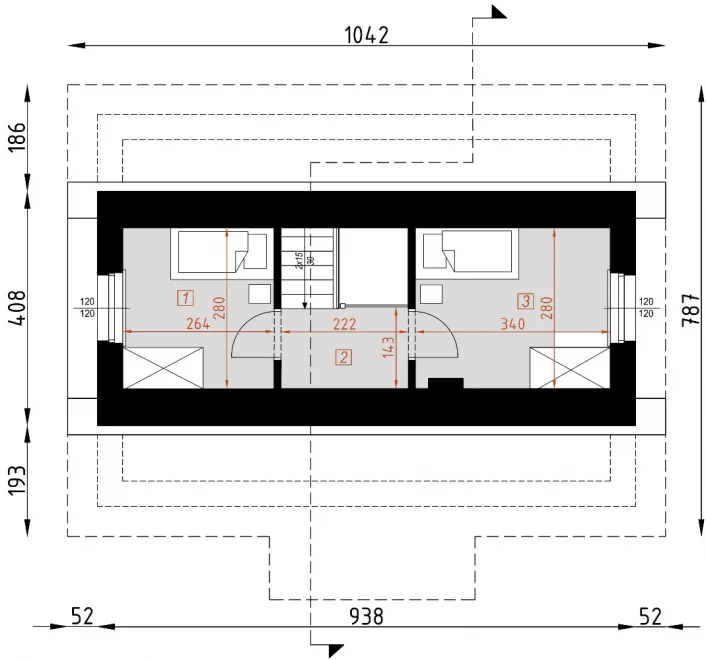
Ширина фасада
9,38 м
Длина фасада
10,19 м
Минимальные размеры участка
Длина: 14,83 м, Ширина: 17,38 м
Площадь первого этажа
67,67 м²
Площадь мансарды
20,50 м²
Тамбур (вестибюль)
2,55 м²
Ванная комната
6,15 м²
Комната
7,37 м², 9,26 м², 9,38 м²
Кухня
4,59 м²
Лестница
3,10 м²
Терраса
15,09 м², 3,64 м²
Количество этажей
Одноэтажный, С мансардой
Количество человек
3-5
Количество санузлов
1
Особенности
Терраса
Форма крыши
Двускатная
Отделка фасада
Штукатурка
Популярные проекты
Все проекты
Обратная связь
Оставьте заявку и получите проект дома в подарок