Каркасно-панельный дом 72,35 м² AET-202

Характеристика дома:
Общая площадь
72,35 м²
Общая площадь диапазон
60–79.9 м²
Жилая площадь
49,64 м²
Жилая площадь диапазон
40–49.9 м²
Полезная площадь
63,17 м²
Высота мансардной стены
1,50 м
Стоимость от
4 543 000 руб
Контакты для связи:
Способы оплаты
С помощью интернет банкинга
Рассрочка / кредитование / ипотека
Досрочное погашение
Предчистовая отделка включена
Гарантия на проект
Фиксированная цена
Стоимость, указанная в договоре, не меняется в ходе строительства
Гибкая система оплаты
Вы вносите 5% от стоимости при подписании договора. Остаток оплачиваете частями.
Акция
Изменение проекта или адаптация проекта другой компании - БЕСПЛАТНО

О проекте Каркасно-панельный дом AET-202

Проект AET-202 представляет собой практичный дом с мансардой, выполненный в традиционном стиле и рассчитанный на комфортное проживание небольшой семьи. Архитектура строения подчёркивает аккуратные пропорции и создаёт ощущение гармонии, что делает его отличным вариантом для тех, кто выбирает проекты домов до 100 кв м в компактной конфигурации. На первом уровне объединены гостиная и кухня, формируя удобную дневную зону, которая остаётся максимально функциональной при любом сценарии использования.

Мансардный этаж создаёт дополнительное приватное пространство, позволяя обустроить несколько отдельных комнат. Такая планировка особенно интересна тем, кто рассматривает проект одноэтажного дома 100 м2 с возможностью расширения жилой части за счёт верхнего уровня. Комнаты на мансарде подходят как для постоянного проживания, так и для организации гостевой зоны, рабочего кабинета или детской комнаты.

Дом сохраняет традиционный характер, при этом оставаясь современным по планировке и организации пространства. Благодаря продуманной структуре помещений он отлично подходит покупателям, которые изучают проекты домов до 100 квм и хотят получить функциональное решение на ограниченном участке.

Закажите бесплатный расчет

Характеристика
Общая площадь
72,35 м²
Общая площадь диапазон
60–79.9 м²
Жилая площадь
49,64 м²
Жилая площадь диапазон
40–49.9 м²
Полезная площадь
63,17 м²
Высота мансардной стены
1,50 м
Площадь застройки
50,25 м²
Чистый объем
188,20 м³
Общий объём
272,40 м³
Площадь крыши
95,85 м²
Угол наклона крыши
38°
Высота здания
7,74 м
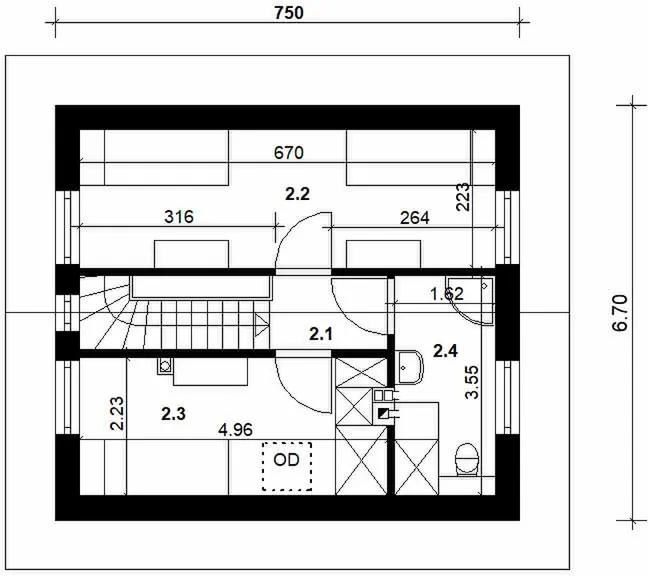
Ширина фасада
6,70 м
Длина фасада
7,50 м
Минимальные размеры участка
Длина: 15,50 м, Ширина: 14,70 м
Площадь первого этажа
38,46 м²
Площадь мансарды
33,89 м²
Тамбур (вестибюль)
2,12 м²
Коридор
2,28 м², 2,86 м²
Ванная комната
4,49 м², 5,75 м²
Гостиная
23,78 м²
Кухня
5,21 м²
Комната
10,92 м², 14,94 м²
Количество этажей
Одноэтажный, С мансардой
Количество человек
2-4
Количество санузлов
2
Особенности
Панорамное остекление, Терраса
Форма крыши
Двускатная
Отделка фасада
Планкен, Штукатурка
Популярные проекты
Все проекты
Обратная связь
Оставьте заявку и получите проект дома в подарок