Каркасно-панельный дом в стиле хай тек AET-218

Характеристика дома:
Общая площадь
207,22 м²
Общая площадь диапазон
200–219.9 м²
Жилая площадь
92,02 м²
Жилая площадь диапазон
90–99.9 м²
Полезная площадь
179,17 м²
Площадь застройки
141,65 м²
Стоимость от
7 100 000 руб
Контакты для связи:
Способы оплаты
С помощью интернет банкинга
Рассрочка / кредитование / ипотека
Досрочное погашение
Предчистовая отделка включена
Гарантия на проект
Фиксированная цена
Стоимость, указанная в договоре, не меняется в ходе строительства
Гибкая система оплаты
Вы вносите 5% от стоимости при подписании договора. Остаток оплачиваете частями.
Акция
Изменение проекта или адаптация проекта другой компании - БЕСПЛАТНО

О проекте Каркасно-панельный дом в стиле hi tech AET-218

Проект AET-218 — современный каркасный дом в стиле хай тек, созданный для тех, кто ценит минимализм, простор и технологичный подход. Архитектура подчёркивает эстетику хай-тека: прямые формы, большие панорамные окна и функциональные решения, которые делают каждый метр действительно полезным.

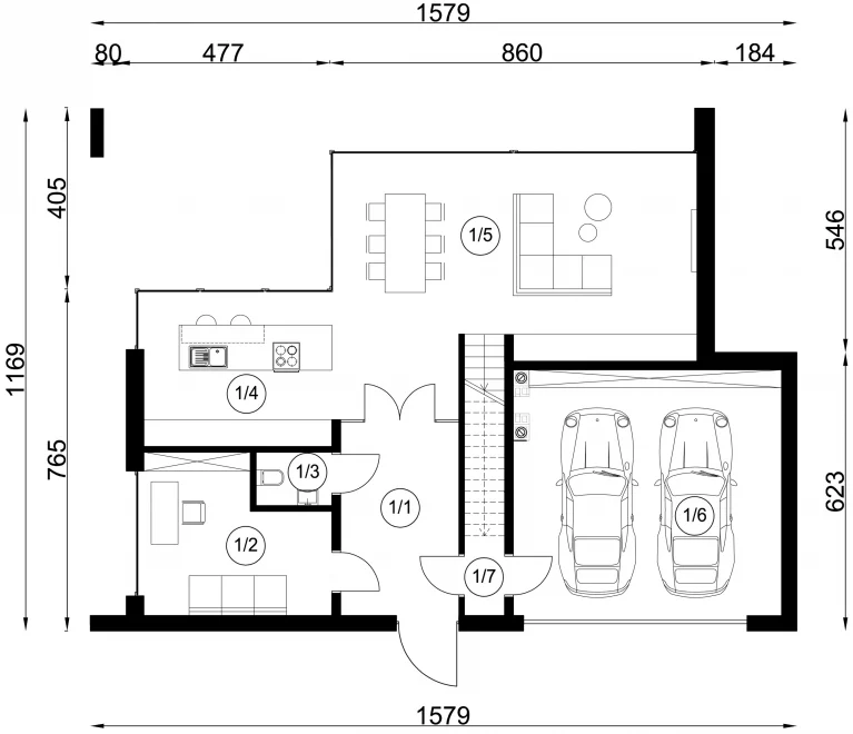
Первый этаж формирует открытую дневную зону — гостиная, столовая и кухня объединены в единое пространство, что делает дом идеальным для семейного отдыха и приёма гостей. Дополняют уровень кабинет, вспомогательные помещения и гараж, встроенный в структуру дома для максимального удобства.

На втором этаже расположена приватная часть. Главная спальня имеет собственную ванную и гардеробную, создавая ощущение уединённого комфорта. Дополнительные комнаты и ещё одна ванная позволяют адаптировать этаж под разные сценарии жизни: от семьи с детьми до тех, кому требуется кабинет или гостевые зоны.

Проект идеально подходит тем, кто рассматривает каркасные дома в стиле хай тек (проекты под ключ) и ищет современную, энергоэффективную и эстетичную архитектуру.

Закажите бесплатный расчет

Характеристика
Общая площадь
207,22 м²
Общая площадь диапазон
200–219.9 м²
Жилая площадь
92,02 м²
Жилая площадь диапазон
90–99.9 м²
Полезная площадь
179,17 м²
Площадь застройки
141,65 м²
Угол наклона крыши
Высота здания
6,90 м
Ширина фасада
14,99 м
Длина фасада
11,09 м
Минимальные размеры участка
Длина: 19,09 м, Ширина: 21,99 м
Тамбур (вестибюль)
11,48 м²
Комната
13 м², 13,47 м², 14,10 м², 15,98 м²
Туалет
2,04 м²
Кухня
14,32 м²
Двухместный гараж
28,05 м²
Коридор
1,61 м², 16,65 м²
Ванная комната
12,04 м², 15,42 м²
Гардероб
10,69 м²
Количество этажей
Двухэтажный
Количество человек
5 и более
Количество санузлов
3
Отделка фасада
Планкен, Штукатурка
Особенности
Панорамное остекление, Терраса
Форма крыши
Плоская
Популярные проекты
Все проекты
Обратная связь
Оставьте заявку и получите проект дома в подарок