Каркасно-панельный дом в стиле hi tech AET-222

Характеристика дома:
Общая площадь
243,52 м²
Общая площадь диапазон
240–259.9 м²
Жилая площадь
70,77 м²
Жилая площадь диапазон
70–79.9 м²
Полезная площадь
136,73 м²
Площадь застройки
147,25 м²
Стоимость от
10 250 000 руб
Контакты для связи:
Способы оплаты
С помощью интернет банкинга
Рассрочка / кредитование / ипотека
Досрочное погашение
Гарантия на проект
Фиксированная цена
Стоимость, указанная в договоре, не меняется в ходе строительства
Гибкая система оплаты
Вы вносите 5% от стоимости при подписании договора. Остаток оплачиваете частями.
Акция
Изменение проекта или адаптация проекта другой компании - БЕСПЛАТНО

О проекте Каркасно-панельный дом в стиле hi tech AET-222

AET-222 — современный каркасный дом с мансардой, разработанный для тех, кто ценит функциональную архитектуру и эстетический стиль хай-тек. Строгие линии, продуманные акценты и динамичная форма амбара создают выразительный силуэт, а большая терраса формирует комфортное пространство для отдыха на свежем воздухе.

Входная зона организована так, чтобы обеспечить удобство и приватность: продуманное распределение помещений, прямой доступ в гараж и функциональная ванная делают первый этаж максимально практичным. Светлая гостиная со столовой образует просторное ядро дома, плавно переходящее в кухню. Мансарда служит полноценной ночной зоной с несколькими комнатами, гардеробами и отдельной ванной. Благодаря рациональной планировке дом подходит как для семей, так и для тех, кто работает из дома.

AET-222 — отличный выбор для тех, кто ищет каркасный дом хай тек под ключ, интересуется двухэтажными домами в стиле хай-тек и рассматривает современные проекты домов в стиле хай тек с мансардой.

Закажите бесплатный расчет

Характеристика
Общая площадь
243,52 м²
Общая площадь диапазон
240–259.9 м²
Жилая площадь
70,77 м²
Жилая площадь диапазон
70–79.9 м²
Полезная площадь
136,73 м²
Площадь застройки
147,25 м²
Чистая площадь
146,32 м²
Общий объём
891 м³
Площадь крыши
137 м²
Угол наклона крыши
40°
Высота здания
8,74 м
Ширина фасада
11,09 м
Длина фасада
17,81 м
Минимальные размеры участка
Длина: 23,31 м, Ширина: 18,33 м
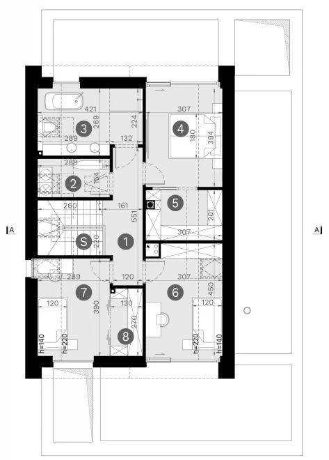
Тамбур (вестибюль)
7,01 м²
Коридор
10,11 м², 7,51 м²
Ванная комната
4,55 м², 9,44 м²
Кухня
11,39 м²
Кладовая
1,24 м²
Гостиная + столовая
31,02 м²
Комната
10,23 м², 11,33 м², 8,76 м², 9,43 м²
Котельная
2,43 м²
Двухместный гараж
36 м²
Терраса
38,47 м²
Прачечная
3,72 м²
Гардероб
3,47 м², 5,09 м²
Лестница
5,72 м²
Количество этажей
Одноэтажный, С мансардой
Количество человек
5 и более
Количество санузлов
2
Особенности
Панорамное остекление, Терраса
Отделка фасада
Планкен, Штукатурка
Форма крыши
Двускатная
Популярные проекты
Все проекты
Обратная связь
Оставьте заявку и получите проект дома в подарок