Каркасно-панельный дом в стиле Барнхаус AET-230

Характеристика дома:
Общая площадь
140,60 м²
Общая площадь диапазон
140–159.9 м²
Жилая площадь
34,77 м²
Жилая площадь диапазон
30–39.9 м²
Площадь первого этажа
49,44 м²
Площадь мансарды
38,68 м²
Стоимость от
5 852 000 руб
Контакты для связи:
Способы оплаты
С помощью интернет банкинга
Рассрочка / кредитование / ипотека
Досрочное погашение
Предчистовая отделка включена
Гарантия на проект
Фиксированная цена
Стоимость, указанная в договоре, не меняется в ходе строительства
Гибкая система оплаты
Вы вносите 5% от стоимости при подписании договора. Остаток оплачиваете частями.
Акция
Изменение проекта или адаптация проекта другой компании - БЕСПЛАТНО

О проекте Каркасно-панельный дом в стиле Барнхаус AET-230

Проект AET-230 — это современный и компактный дом, созданный для тех, кто ищет идеальный баланс между доступной ценой, быстрыми сроками строительства и выразительным стилем. Выполненный в популярном формате «современная стодола», этот каркасный дом в стиле барнхаус под ключ имеет простую прямоугольную конструкцию с двускатной крышей, что делает его максимально экономичным в реализации. Это отличный выбор для начала загородной жизни без лишних трат.

Внешний вид дома привлекает минималистичным, но запоминающимся дизайном. Фасад, где сочетаются натуральное дерево и фальцевая металлическая кровля, создает эффект стильной, целостной формы. Металлическое покрытие, поднимающееся на верхние части стен, усиливает этот уникальный характер. Проект выделяется большими остекленными поверхностями, которые открывают интерьер дневной зоны на террасу, наполняя пространство светом.

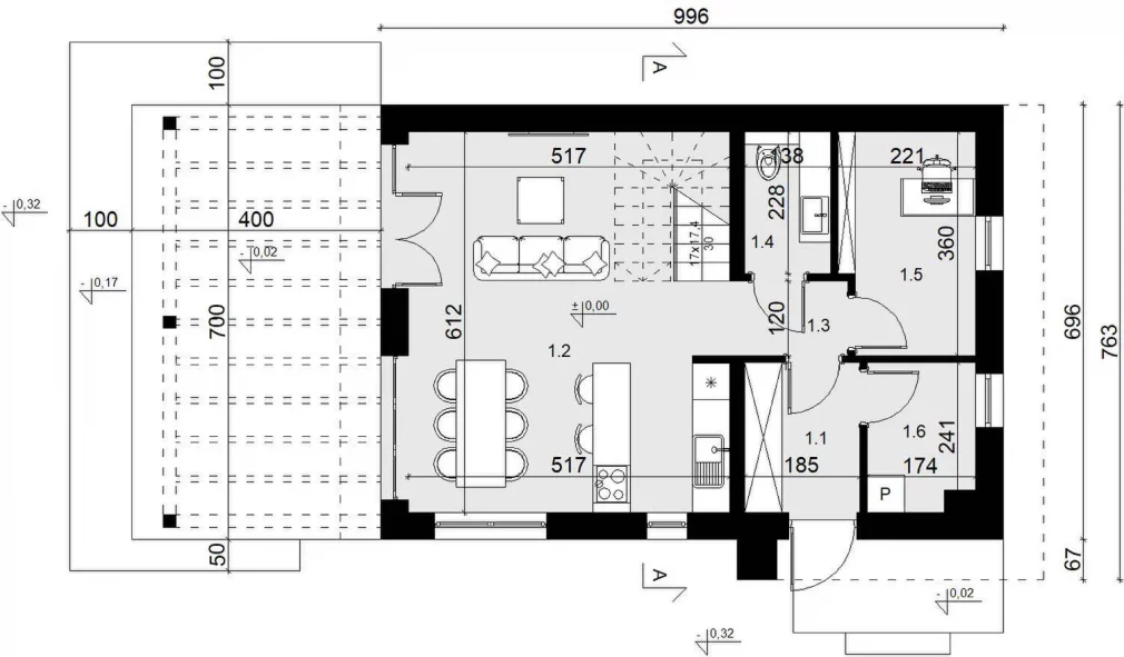
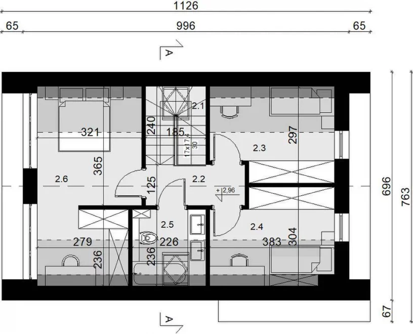
Планировка дома AET-230 невероятно функциональна, несмотря на его компактность. Первый этаж полностью отведен под дневную зону: здесь расположена просторная и прекрасно освещенная гостиная, объединенная с кухней и столовой. Дополнительным преимуществом является уютная Комната, которую можно использовать как кабинет или гостевую спальню, а также удобная Котельная и Туалет. Мансарда — это приватная зона, которая вмещает три комфортабельные Спальни и просторную Ванную комнату. Главная спальня предусматривает вместительную гардеробную, а две другие идеально подходят для детей или гостей, вмещая все необходимое. Проект AET-230 — идеальное решение для семьи из четырех человек, которое демонстрирует, насколько функциональным и стильным может быть каркасный дом под ключ барнхаус. Он доказывает, что каркасные дома в стиле барнхаус доступны каждому.

Закажите бесплатный расчет

Характеристика
Общая площадь
140,60 м²
Общая площадь диапазон
140–159.9 м²
Жилая площадь
34,77 м²
Жилая площадь диапазон
30–39.9 м²
Площадь первого этажа
49,44 м²
Площадь мансарды
38,68 м²
Полезная площадь
84,24 м²
Площадь застройки
69,72 м²
Чистая площадь
103,96 м²
Площадь крыши
63 м²
Общий объём
310 м³
Угол наклона крыши
37°
Высота здания
7,35 м
Ширина фасада
9,96 м
Длина фасада
7,63 м
Минимальные размеры участка
Длина: 14 м, Ширина: 20,50 м
Высота коленного стенового уровня
1,13 м
Тамбур (вестибюль)
4,32 м²
Коридор
2,20 м², 3,68 м²
Комната
12,95 м², 7,17 м², 7,23 м², 7,42 м²
Ванная комната
3,27 м²
Котельная
3,88 м²
Лестница
4,38 м²
Гостиная + кухня + столовая
28,58 м²
Туалет
3,04 м²
Количество этажей
Одноэтажный, С мансардой
Количество человек
5 и более
Количество санузлов
2
Отделка фасада
Клик-фальц, Планкен
Особенности
Панорамное остекление, Терраса
Форма крыши
Двускатная
Популярные проекты
Все проекты
Обратная связь
Оставьте заявку и получите проект дома в подарок