Каркасно-панельный дом в стиле Барнхаус AET-232

Характеристика дома:
Общая площадь
44,40 м²
Общая площадь диапазон
40–59.9 м²
Жилая площадь
22,70 м²
Жилая площадь диапазон
20–29.9 м²
Площадь первого этажа
25,90 м²
Площадь мансарды
18,50 м²
Стоимость от
3 227 000 руб
Контакты для связи:
Способы оплаты
С помощью интернет банкинга
Рассрочка / кредитование / ипотека
Досрочное погашение
Предчистовая отделка включена
Гарантия на проект
Фиксированная цена
Стоимость, указанная в договоре, не меняется в ходе строительства
Гибкая система оплаты
Вы вносите 5% от стоимости при подписании договора. Остаток оплачиваете частями.
Акция
Изменение проекта или адаптация проекта другой компании - БЕСПЛАТНО

О проекте Каркасно-панельный дом в стиле Барнхаус AET-232

Проект AET-232 представляет собой воплощение идеального рекреационного жилья. Этот каркасный дом барнхаус проект создан для тех, кто ценит минималистичное, но при этом максимально функциональное пространство для отдыха или круглогодичного проживания. Современная форма в стиле «стодола», простая геометрия и оптимальная конструкция позволяют существенно снизить стоимость строительства, делая его доступным для широкого круга инвесторов, желающих каркасный дом барнхаус купить.

Архитектурный стиль AET-232 отличается легкостью и современным характером. Фасад гармонично сочетает натуральную вертикальную доску и фальцевую металлическую отделку. В комбинации с большими остеклениями, эти элементы придают дому выразительный и чистый силуэт. Проект доказывает, что каркасный дом в стиле барнхаус может быть экономичным, не жертвуя при этом эстетикой и комфортом.

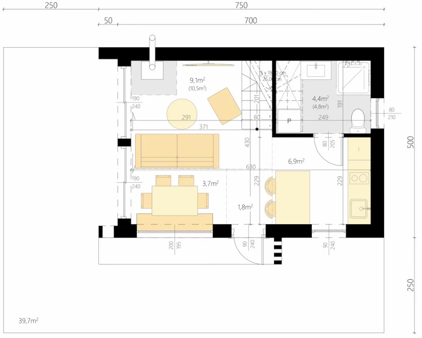
Функциональное пространство дома продумано для максимального удобства. Первый этаж представляет собой светлую открытую дневную зону: здесь расположены уютная Гостиная с возможностью установки камина, Кухня и выделенная Обеденная часть. Неожиданно просторная Ванная комната на первом уровне обеспечивает высокий комфорт ежедневного использования. Мансарда — приватный ярус, который включает две независимые Комнаты-спальни и отдельный Туалет. Благодаря такой планировке, дом идеально подходит для семьи из четырех человек, становясь отличным выбором для дачного участка или в качестве полноценного жилья в живописном месте.

Закажите бесплатный расчет

Характеристика
Общая площадь
44,40 м²
Общая площадь диапазон
40–59.9 м²
Жилая площадь
22,70 м²
Жилая площадь диапазон
20–29.9 м²
Площадь первого этажа
25,90 м²
Площадь мансарды
18,50 м²
Полезная площадь
43,60 м²
Площадь застройки
35 м²
Площадь крыши
55,60 м²
Общий объём
191,34 м³
Чистый объем
125,27 м³
Угол наклона крыши
45°
Высота здания
7 м
Ширина фасада
7,50 м
Длина фасада
5 м
Минимальные размеры участка
Длина: 12 м, Ширина: 15 м
Высота коленного стенового уровня
1,13 м
Коридор
1,80 м², 3,60 м²
Комната
5,10 м², 8,50 м²
Ванная комната
4,40 м²
Кухня
6,90 м²
Туалет
1,30 м²
Гостиная
9,10 м²
Столовая
3,70 м²
Количество этажей
Одноэтажный, С мансардой
Количество человек
2-4
Количество санузлов
2
Отделка фасада
Клик-фальц, Планкен, Штукатурка
Особенности
Панорамное остекление
Форма крыши
Двускатная
Популярные проекты
Все проекты
Обратная связь
Оставьте заявку и получите проект дома в подарок