Каркасно-панельный дом в стиле Барнхаус AET-236

Характеристика дома:
Общая площадь
110,90 м²
Общая площадь диапазон
100–119.9 м²
Жилая площадь
54,8 м²
Жилая площадь диапазон
50–59.9 м²
Площадь первого этажа
41,06 м²
Площадь мансарды
26,65 м²
Стоимость от
3 742 000 руб
Контакты для связи:
Способы оплаты
С помощью интернет банкинга
Рассрочка / кредитование / ипотека
Досрочное погашение
Предчистовая отделка включена
Гарантия на проект
Фиксированная цена
Стоимость, указанная в договоре, не меняется в ходе строительства
Гибкая система оплаты
Вы вносите 5% от стоимости при подписании договора. Остаток оплачиваете частями.
Акция
Изменение проекта или адаптация проекта другой компании - БЕСПЛАТНО

О проекте Каркасно-панельный дом в стиле Барнхаус AET-236

Проект AET-236 — это невероятно компактный двухэтажный дом, который демонстрирует, как эффективно можно использовать каждый квадратный метр. Этот каркасный дом в стиле барнхаус проекты идеально подходит для инвесторов с небольшими или узкими участками, которым необходимо функциональное жилье с высоким уровнем комфорта. При своих скромных габаритах дом AET-236 обладает удивительно богатой планировкой.

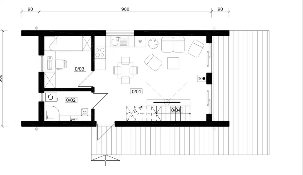
Главное преимущество проекта — четыре полноценные спальни. Одна Комната расположена на первом этаже, что идеально подходит для кабинета, гостевой комнаты или спальни для пожилых членов семьи, предпочитающих одноуровневое проживание. Дневная зона представляет собой просторное открытое пространство, объединяющее Гостиную, Кухню и Столовую — это светлое место для семейного общения и приема гостей.

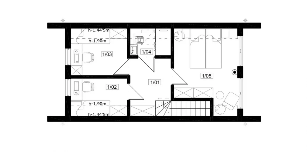
Мансардный этаж (второй) полностью отдан под приватную зону. Здесь расположены еще три уютные Комнаты, а также полноценная Ванная комната. Это гарантирует уединение и удобство для всех членов семьи. Благодаря простой форме и каркасной технологии, этот проект легко и быстро возводится, что делает его отличным решением среди каркасных домов барнхаус под ключ. Выбирая AET-236, вы приобретаете не просто жилье, а идеальный каркасный дом под ключ барнхаус, сочетающий в себе экономичность строительства, стильную эстетику и высокую функциональность.

Закажите бесплатный расчет

Характеристика
Общая площадь
110,90 м²
Общая площадь диапазон
100–119.9 м²
Жилая площадь
54,8 м²
Жилая площадь диапазон
50–59.9 м²
Площадь первого этажа
41,06 м²
Площадь мансарды
26,65 м²
Полезная площадь
61,90 м²
Площадь застройки
45,90 м²
Чистая площадь
64,50 м²
Площадь крыши
73,65 м²
Общий объём
197,50 м³
Чистый объем
259,65 м³
Угол наклона крыши
40°
Высота здания
6,50 м
Ширина фасада
9 м
Длина фасада
5,0 м
Минимальные размеры участка
Длина: 13 м, Ширина: 17 м
Коридор
4,89 м²
Комната
10,38 м², 4,08 м², 5,48 м², 7,43 м²
Ванная комната
1,82 м², 3,60 м²
Лестница
2,60 м²
Гостиная + кухня + столовая
27,43 м²
Количество человек
5 и более
Количество санузлов
2
Отделка фасада
Планкен, Штукатурка
Особенности
Панорамное остекление
Форма крыши
Двускатная
Количество этажей
Двухэтажный
Популярные проекты
Все проекты
Обратная связь
Оставьте заявку и получите проект дома в подарок