Каркасно-панельный дом с панорамными окнами AET-243

Характеристика дома:
Полезная площадь
99,00 м²
Площадь застройки
69,92 м²
Общая площадь
139,84 м²
Общая площадь диапазон
120–139.9 м²
Жилая площадь
58,80 м²
Жилая площадь диапазон
50–59.9 м²
Стоимость от
5 282 000 руб
Контакты для связи:
Способы оплаты
С помощью интернет банкинга
Рассрочка / кредитование / ипотека
Досрочное погашение
Предчистовая отделка включена
Гарантия на проект
Фиксированная цена
Стоимость, указанная в договоре, не меняется в ходе строительства
Гибкая система оплаты
Вы вносите 5% от стоимости при подписании договора. Остаток оплачиваете частями.
Акция
Изменение проекта или адаптация проекта другой компании - БЕСПЛАТНО

О проекте Каркасно-панельный дом с панорамными окнами AET-243

Проект AET-243 — это выразительное прочтение стиля «современная стодола», где традиционные альпийские мотивы встречаются с передовыми технологиями домостроения. Благодаря классической прямоугольной форме и двускатной крыше с глубокими свесами, этот каркасный современный дом с панорамными окнами выглядит надежно и монументально. Особенностью архитектуры является высокая коленная стена, которая позволяет максимально эффективно использовать пространство мансардного этажа, избавляя комнаты от резких скосов и создавая ощущение полноценного двухэтажного жилья.

Внутренняя планировка ориентирована на свет и открытость. Первый этаж занимает объединенная дневная зона с гостиной, кухней и столовой, где главным украшением служит антресоль и полностью остекленная стена, выходящая в сад. Такое решение превращает проект дома с панорамными окнами в личную обсерваторию, наполненную воздухом и природными красками. Помимо общего пространства, на нижнем уровне предусмотрена компактная спальня и несколько технических помещений, обеспечивающих удобство хранения и эксплуатации инженерных систем.

Мансардный этаж отведен под приватную зону отдыха с двумя уютными комнатами, гардеробной и раздельными санузлами. Настоящей жемчужиной проекта является огромная внешняя терраса, огибающая дом, которая идеально подходит для обустройства летней лаунж-зоны. Если вы ищете каркасные дома с панорамными окнами под ключ, которые будут одинаково гармонично смотреться как на горном склоне, так и в пригородном поселке, то модель AET-243 станет вашим идеальным выбором, сочетающим уют дерева и строгость металла.

Закажите бесплатный расчет

Характеристика
Полезная площадь
99,00 м²
Площадь застройки
69,92 м²
Общая площадь
139,84 м²
Общая площадь диапазон
120–139.9 м²
Жилая площадь
58,80 м²
Жилая площадь диапазон
50–59.9 м²
Чистая площадь
99,00 м²
Высота здания
8,36 м
Угол наклона крыши
30°
Длина фасада
7,60 м
Ширина фасада
9,20 м
Минимальные размеры участка
Длина: 15,60 м, Ширина: 17,84 м
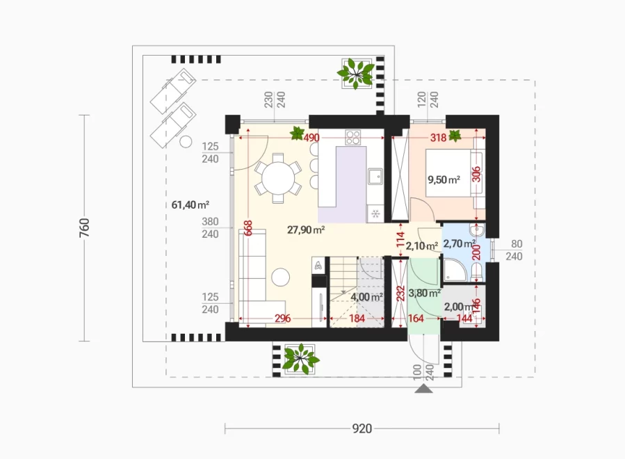
Тамбур (вестибюль)
3,80 м²
Коридор
13,50 м², 2,10 м²
Гостиная + кухня + столовая
27,90 м²
Комната
11,80 м², 9,50 м², 9,60 м²
Санузел
2,70 м²
Ванная комната
3,70 м², 3,90 м²
Гардероб
4,50 м²
Хозяйственное помещение
2,00 м², 4,00 м²
Терраса
61,40 м²
Количество человек
3-5
Количество санузлов
3
Отделка фасада
Облицовочный камень, Планкен
Особенности
Панорамное остекление, Терраса
Форма крыши
Двускатная
Количество этажей
Одноэтажный, С мансардой
Популярные проекты
Все проекты
Обратная связь
Оставьте заявку и получите проект дома в подарок