Каркасно-панельный дом с панорамными окнами AET-245

Характеристика дома:
Полезная площадь
92,28 м²
Площадь застройки
75,43 м²
Общая площадь
92,28 м²
Общая площадь диапазон
80–99.9 м²
Жилая площадь
56,21 м²
Жилая площадь диапазон
50–59.9 м²
Стоимость от
6 800 000 руб
Контакты для связи:
Способы оплаты
С помощью интернет банкинга
Рассрочка / кредитование / ипотека
Досрочное погашение
Предчистовая отделка включена
Гарантия на проект
Фиксированная цена
Стоимость, указанная в договоре, не меняется в ходе строительства
Гибкая система оплаты
Вы вносите 5% от стоимости при подписании договора. Остаток оплачиваете частями.
Акция
Изменение проекта или адаптация проекта другой компании - БЕСПЛАТНО

О проекте Каркасно-панельный дом с панорамными окнами AET-245

Проект AET-245 — это эталон рационального загородного жилья, созданный специально для владельцев узких участков. Лаконичная архитектура с высокой двускатной крышей и строгими линиями фасада позволяет зданию выглядеть актуально вне времени. Этот каркасный современный дом с панорамными окнами спроектирован с упором на экологичность и энергосбережение, что делает его эксплуатацию максимально экономичной без ущерба для визуальной привлекательности и комфорта.

Внутренняя планировка дома отличается безупречной логикой и четким зонированием. Весь первый этаж отведен под дневную активность: здесь расположилась светлая кухня, переходящая в уютную столовую, и просторная гостиная. Благодаря архитектурному решению использовать проекты современных домов с панорамным остеклением, интерьер первого этажа буквально пронизан светом, а граница между домом и садом становится почти неощутимой. Из гостиной предусмотрен выход на широкую террасу, которая служит естественным продолжением жилого пространства и идеальным местом для семейных ужинов на свежем воздухе.

Мансардный уровень полностью посвящен отдыху и тишине. На этаже расположены несколько уютных спален и общая ванная комната, что позволяет с комфортом разместить семью из нескольких человек. Продуманная эргономика каждой комнаты и эффективное использование подкровельного пространства делают этот дом с панорамным остеклением двухэтажный проект (с мансардой) очень вместительным при скромном пятне застройки. AET-245 — это гармоничное сочетание традиционной формы и современных технологий, созданное для спокойной жизни в окружении природы.

Закажите бесплатный расчет

Характеристика
Полезная площадь
92,28 м²
Площадь застройки
75,43 м²
Общая площадь
92,28 м²
Общая площадь диапазон
80–99.9 м²
Жилая площадь
56,21 м²
Жилая площадь диапазон
50–59.9 м²
Высота здания
8,14 м
Угол наклона крыши
45°
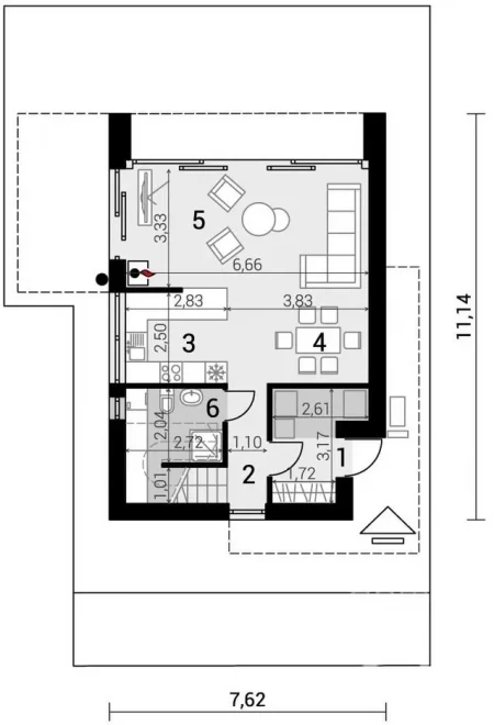
Ширина фасада
7,62 м
Длина фасада
11,14 м
Минимальные размеры участка
Длина: 20,14 м, Ширина: 15,62 м
Тамбур (вестибюль)
6,11 м²
Коридор
7,14 м²
Холл + лестница
7,19 м²
Гостиная
22,68 м²
Кухня
6,99 м²
Столовая
9,51 м²
Комната
7,57 м², 7,98 м², 7,98 м²
Санузел
4,45 м²
Ванная комната
4,68 м²
Количество человек
3-5
Количество санузлов
2
Отделка фасада
Планкен, Штукатурка
Особенности
Панорамное остекление, Терраса
Форма крыши
Двускатная
Количество этажей
Одноэтажный, С мансардой
Популярные проекты
Все проекты
Обратная связь
Оставьте заявку и получите проект дома в подарок