Каркасно-панельный дом с панорамными окнами AET-247

Характеристика дома:
Полезная площадь
91,60 м²
Площадь застройки
70,00 м²
Общая площадь
138,69 м²
Общая площадь диапазон
120–139.9 м²
Жилая площадь
51,40 м²
Жилая площадь диапазон
50–59.9 м²
Стоимость от
5 772 000 руб
Контакты для связи:
Способы оплаты
С помощью интернет банкинга
Рассрочка / кредитование / ипотека
Досрочное погашение
Предчистовая отделка включена
Гарантия на проект
Фиксированная цена
Стоимость, указанная в договоре, не меняется в ходе строительства
Гибкая система оплаты
Вы вносите 5% от стоимости при подписании договора. Остаток оплачиваете частями.
Акция
Изменение проекта или адаптация проекта другой компании - БЕСПЛАТНО

О проекте Каркасно-панельный дом с панорамными окнами AET-247

Проект AET-247 — это воплощение современной загородной эстетики в компактной и лаконичной форме. Благодаря своим оптимальным габаритам, это здание может служить как уютным домом для постоянного проживания, так и стильной резиденцией для сезонного отдыха. Внешний облик дома формирует симметричная двускатная кровля и теплый деревянный фасад, что позволяет строению органично вписаться в лесной или садовый ландшафт. Этот каркасный дом с панорамным остеклением выглядит легким и современным, при этом обеспечивая высокий уровень энергоэффективности.

Первый этаж спроектирован с упором на открытость и многофункциональность. Здесь располагается светлая дневная зона, объединяющая гостиную и кухню, пространство которых визуально расширяется благодаря выходу на большой балкон-террасу. Наличие отдельной комнаты на нижнем уровне добавляет проекту практичности: она может стать как тихим кабинетом, так и полноценной гостевой спальней. Как и полагается проекту дома с панорамными окнами, интерьеры первого этажа буквально пронизаны естественным светом, что создает особую атмосферу единения с природой.

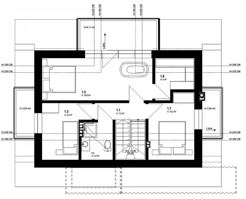
Мансардный этаж полностью отведен под приватную зону и включает несколько спален, при этом планировка одной из комнат позволяет обустроить внутри индивидуальное пространство с элементами ванной комнаты. Высокий угол наклона крыши обеспечивает комфортную высоту потолков в жилых помещениях. Если вы ищете каркасный современный дом с панорамными окнами, который сочетает в себе компактное пятно застройки и впечатляющую вместительность, то проект AET-247 станет безупречным решением для вашей семьи.

Закажите бесплатный расчет

Характеристика
Полезная площадь
91,60 м²
Площадь застройки
70,00 м²
Общая площадь
138,69 м²
Общая площадь диапазон
120–139.9 м²
Жилая площадь
51,40 м²
Жилая площадь диапазон
50–59.9 м²
Чистая площадь
99,80 м²
Высота здания
8,30 м
Угол наклона крыши
45°
Ширина фасада
10,00 м
Длина фасада
7,00 м
Минимальные размеры участка
Длина: 15,00 м, Ширина: 18,00 м
Тамбур (вестибюль)
2,80 м²
Коридор
1,80 м²
Гостиная + столовая
12,20 м²
Кухня
6,20 м²
Комната
15,60 м², 6,10 м², 7,60 м², 9,90 м²
Санузел
2,40 м²
Ванная комната
3,70 м²
Гардероб
4,20 м²
Хозяйственное помещение
3,60 м²
Количество этажей
Одноэтажный, С мансардой
Количество человек
5 и более
Количество санузлов
2
Отделка фасада
Облицовочный камень, Планкен
Особенности
Панорамное остекление
Форма крыши
Многоскатная
Популярные проекты
Все проекты
Обратная связь
Оставьте заявку и получите проект дома в подарок