Каркасно-панельный дом по канадской технологии AET-260

Характеристика дома:
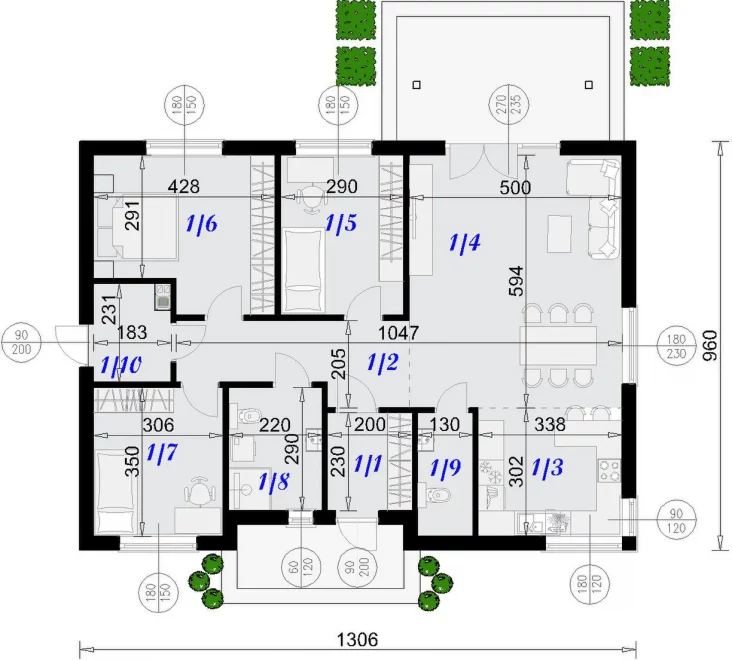
Тамбур (вестибюль)
4,60 м²
Холл
9,00 м²
Кухня
10,20 м²
Гостиная + столовая
29,70 м²
Комната
10,71 м², 10,73 м², 14,60 м²
Санузел
6,38 м²
Стоимость от
6 052 000 руб
Контакты для связи:
Способы оплаты
С помощью интернет банкинга
Рассрочка / кредитование / ипотека
Досрочное погашение
Предчистовая отделка включена
Гарантия на проект
Фиксированная цена
Стоимость, указанная в договоре, не меняется в ходе строительства
Гибкая система оплаты
Вы вносите 5% от стоимости при подписании договора. Остаток оплачиваете частями.
Акция
Изменение проекта или адаптация проекта другой компании - БЕСПЛАТНО

О проекте Каркасный дом по канадской технологии AET-260

Проект AET-260 — это просторный и светлый дом по канадской технологии, созданный для комфортного проживания семьи, которой важно иметь продуманную планировку и удобное зонирование. Дом отлично подойдёт как для постоянного проживания, так и для загородного формата с акцентом на совместное время и личное пространство.

Входная зона с тамбуром формирует удобный барьер от улицы и помогает поддерживать комфортный микроклимат внутри дома. Просторный холл объединяет все помещения и создаёт ощущение открытого, «дышащего» пространства уже с первых шагов. Планировка предусматривает несколько изолированных комнат, которые можно использовать как спальни, детские или кабинет — дом легко адаптируется под разные сценарии жизни.

Главным центром притяжения становится большая гостиная, объединённая со столовой. Это идеальное место для семейных ужинов, приёма гостей и отдыха. Кухня вынесена в отдельное помещение, что позволяет сохранить порядок и комфорт в общей зоне, при этом оставаясь в удобной связке с гостиной. Наличие двух санитарных помещений повышает удобство повседневного использования дома, особенно для семьи из нескольких человек.

Отдельная котельная делает проект практичным и удобным для круглогодичного проживания, позволяя грамотно разместить инженерные системы без вмешательства в жилые зоны. В целом проект создаёт гармоничный баланс между открытым пространством и приватными комнатами.

Проект AET-260 станет отличным выбором для тех, кто рассматривает дома по канадской технологии под ключ как современное и энергоэффективное решение. Надёжные и практичные канадские каркасные дома ценятся за комфорт, скорость возведения и гибкость планировок. Если вы подбираете дома по канадской технологии проекты цена фото, этот вариант заслуживает внимания благодаря своей универсальности и продуманной архитектуре.

Закажите бесплатный расчет

Характеристика
Тамбур (вестибюль)
4,60 м²
Холл
9,00 м²
Кухня
10,20 м²
Гостиная + столовая
29,70 м²
Комната
10,71 м², 10,73 м², 14,60 м²
Санузел
6,38 м²
Туалет
3,77 м²
Котельная
4,00 м²
Полезная площадь
99,69 м²
Общая площадь
159,29 м²
Общая площадь диапазон
140–159.9 м²
Жилая площадь
55,04 м²
Жилая площадь диапазон
50–59.9 м²
Чистый объем
378,30 м³
Угол наклона крыши
30°
Высота здания
6,91 м
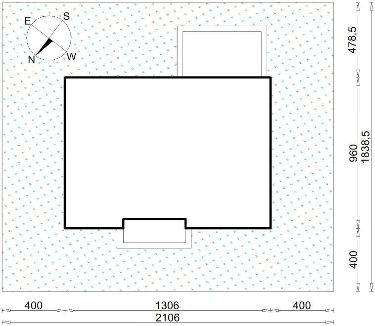
Ширина фасада
13,06 м
Длина фасада
9,60 м
Минимальные размеры участка
Длина: 18,39 м, Ширина: 21,06 м
Количество этажей
Одноэтажный
Количество человек
3-5
Количество санузлов
2
Отделка фасада
Планкен, Штукатурка
Особенности
Панорамное остекление, Терраса
Форма крыши
Двускатная
Популярные проекты
Все проекты
Обратная связь
Оставьте заявку и получите проект дома в подарок