Каркасно-панельный дом по канадской технологии AET-264

Характеристика дома:
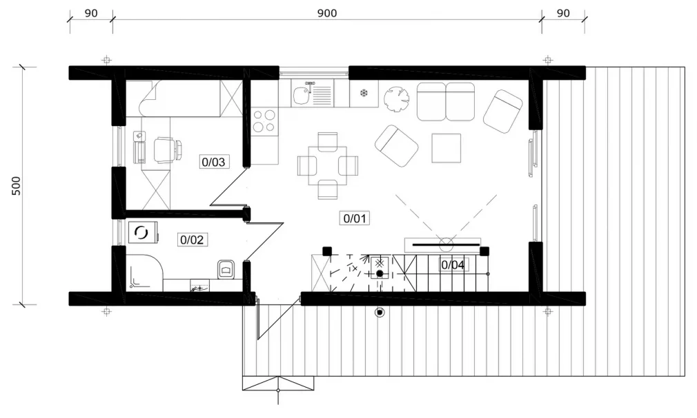
Гостиная + кухня + столовая
23,81 м²
Санузел
3,92 м², 4,08 м²
Комната
10,38 м², 5,48 м², 6,81 м²
Хозяйственное помещение
1,82 м²
Коридор
2,64 м², 4,89 м²
Полезная площадь
59,59 м²
Стоимость от
3 710 000 руб
Контакты для связи:
Способы оплаты
С помощью интернет банкинга
Рассрочка / кредитование / ипотека
Досрочное погашение
Предчистовая отделка включена
Гарантия на проект
Фиксированная цена
Стоимость, указанная в договоре, не меняется в ходе строительства
Гибкая система оплаты
Вы вносите 5% от стоимости при подписании договора. Остаток оплачиваете частями.
Акция
Изменение проекта или адаптация проекта другой компании - БЕСПЛАТНО

О проекте Каркасный дом по канадской технологии AET-264

Проект AET-264 — это компактный и продуманный дом по канадской технологии с мансардным этажом, идеально подходящий для небольшой семьи или пары, которая ценит уют, функциональность и рациональное использование каждого квадратного метра.

На первом этаже расположена объединённая зона гостиной, кухни и столовой — светлое пространство для совместного времяпрепровождения и приёма гостей. Отдельный санузел и комната повышают комфорт проживания, а лестница ведёт на мансардный этаж, где предусмотрены дополнительные жилые комнаты, санузел и хозяйственное помещение. Такая планировка позволяет эффективно разделить общественную и приватную зоны.

Мансардный этаж расширяет жилую площадь, обеспечивая дополнительные комнаты для сна, работы или отдыха. Продуманная организация коридоров и помещений создаёт удобное движение по дому и комфортное распределение пространства. Высокий угол наклона крыши и оптимальное зонирование обеспечивают хорошее естественное освещение и уютный микроклимат.

Проект AET-264 станет отличным выбором для тех, кто рассматривает дома по канадской технологии под ключ как энергоэффективное и современное решение. Надёжные канадские каркасные дома позволяют быстро возводить жильё и грамотно использовать пространство. Для изучающих дома по канадской технологии проекты цена фото, этот вариант привлекателен компактностью, функциональностью и продуманной планировкой.

 

Закажите бесплатный расчет

Характеристика
Гостиная + кухня + столовая
23,81 м²
Санузел
3,92 м², 4,08 м²
Комната
10,38 м², 5,48 м², 6,81 м²
Хозяйственное помещение
1,82 м²
Коридор
2,64 м², 4,89 м²
Полезная площадь
59,59 м²
Общая площадь
110,90 м²
Общая площадь диапазон
100–119.9 м²
Жилая площадь
32,69 м²
Жилая площадь диапазон
30–39.9 м²
Чистая площадь
65,70 м²
Чистый объем
259,65 м³
Общий объём
197,50 м³
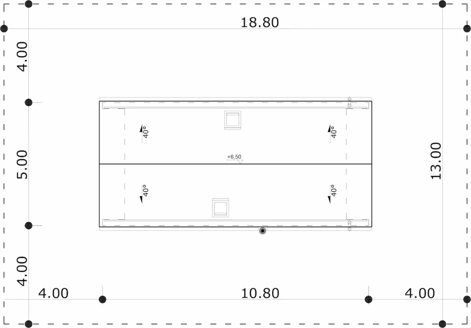
Площадь крыши
73,65 м²
Угол наклона крыши
40°
Высота здания
6,50 м
Ширина фасада
10,80 м
Длина фасада
5,00 м
Минимальные размеры участка
Длина: 13,00 м, Ширина: 18,80 м
Количество этажей
Двухэтажный
Количество человек
3-5
Количество санузлов
2
Отделка фасада
Планкен, Штукатурка
Особенности
Панорамное остекление
Форма крыши
Двускатная
Популярные проекты
Все проекты
Обратная связь
Оставьте заявку и получите проект дома в подарок