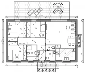
Планировка в каркасном доме
Планировка загородного дома — критически важный вопрос. Даже высокие потолки и большие окна не сделают дом уютным, если приходится петлять по бессмысленным коридорам или натыкаться на мебель в тесных комнатах. Наша компания бесплатно разрабатывает для каждого заказчика индивидуальный проект с учетом всех его требований. В этой статье мы проведем лишь небольшой «ликбез» об основных принципах планировки жилья и наборе необходимых/опциональных помещений
Планировка в каркасном доме — это основа комфорта и функциональности будущего жилья. От правильного распределения помещений зависит удобство, освещённость и эргономика каждого метра. Проектируя каркасный дом, важно учитывать состав семьи, образ жизни, ориентацию по сторонам света и особенности участка. Грамотно продуманная планировка позволяет создать уютное, тёплое и практичное пространство, где каждый элемент будет работать на комфорт и гармонию.
Этапы создания планировки в коттедже
Этапы создания планировки в коттедже включают несколько ключевых шагов, каждый из которых влияет на комфорт и функциональность будущего дома. Сначала определяют количество комнат и их назначение, затем продумывают взаимосвязь зон — жилых, технических и вспомогательных. Далее оценивают естественное освещение и расположение окон, чтобы каждая комната получала максимум дневного света. На заключительном этапе проводят зонирование по уровню активности, создавая логичное, эргономичное и уютное пространство.
Определите количество комнат и их назначение
Первым шагом при проектировании коттеджа является определение количества комнат и их назначения. Важно учесть потребности всех членов семьи: взрослым — спальни и кабинет, детям — отдельную комнату для игр и учебы, а гостям — уютное пространство для отдыха. Продумывая состав помещений, ориентируйтесь на образ жизни — кому-то нужна просторная кухня-гостиная, а кому-то — мастерская или спортзал. Такой подход помогает создать удобную и функциональную планировку в коттедже.
Продумайте потоки
Продумывая потоки, важно заранее представить, как будут перемещаться жильцы по дому. Пути должны быть логичными и не пересекать активные и тихие зоны. Из прихожей удобно попадать в кухню и гостиную, а спальни и кабинет лучше разместить подальше от шумных пространств. Такое распределение обеспечивает комфорт, уменьшает сквозное движение и сохраняет приватность. Грамотно выстроенные потоки делают планировку в каркасном доме практичной, уютной и максимально удобной для ежедневного использования.
Учтите естественное освещение
Естественное освещение играет ключевую роль в создании уюта и визуального комфорта. При планировке важно расположить окна так, чтобы дневной свет равномерно распределялся по всему дому. Гостиная и кухня должны быть самыми светлыми, спальни — выходить на восток или юг, а рабочие зоны — получать стабильное освещение без бликов. Такой подход не только экономит электроэнергию, но и делает интерьер живым и тёплым. Грамотное использование света помогает подчеркнуть достоинства планировки домов в коттеджах.
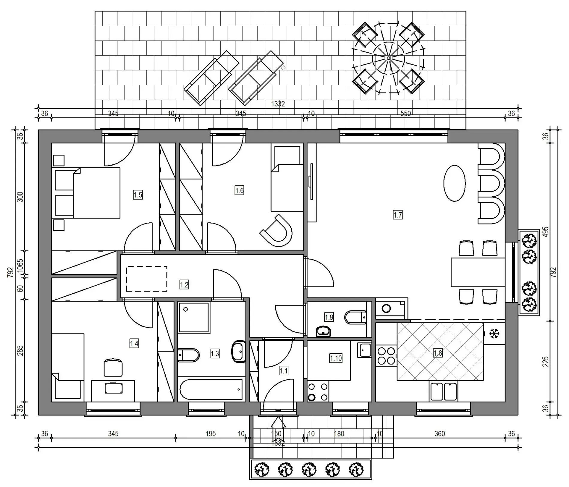
Особенности планировки одноэтажного дома
Каркасный дом в один этаж планировка которого продумана грамотно, отличается удобством и безопасностью. Все помещения располагаются на одном уровне, что упрощает перемещение и делает жильё комфортным для детей и пожилых людей. В одноэтажных домах важно рационально использовать пространство: объединять кухню с гостиной, размещать спальни в тихой части, а санузел ближе к коммуникациям. Такая планировка обеспечивает уют, функциональность и гармоничное распределение зон по всему дому.
Особенности планировки двухэтажного дома
Двухэтажный каркасный дом открывает больше возможностей для зонирования и индивидуальных решений. Первый этаж обычно отводят под общие помещения — гостиную, кухню, санузел и хозяйственные зоны, а второй делают приватным, размещая там спальни, детскую или кабинет. Такое разделение повышает комфорт и создаёт чувство простора. При проектировании важно учитывать удобство лестницы и размещение санузлов один над другим. Рациональная планировка в коттедже делает двухэтажный дом практичным и уютным.
Советы по планировке каждой комнаты
При разработке проекта важно продумать особенности каждой комнаты, чтобы создать гармоничное и удобное пространство. Гостиная в планировке коттеджа должна быть просторной и светлой, кухня — функциональной и связанной со столовой зоной, спальни — уединёнными и тихими. Детская требует безопасности и хорошего освещения, а кабинет — тишины и концентрации. Санузлы и прихожая должны быть удобны в использовании и иметь место для хранения. Такой подход делает дом максимально комфортным.
Прихожая
Прихожая — это первое помещение, которое встречает хозяев и гостей, поэтому она должна быть функциональной и продуманной. Здесь важно предусмотреть место для верхней одежды, обуви и мелких аксессуаров. Хорошим решением станет встроенный шкаф или компактная система хранения. При планировке желательно отделить прихожую от жилых комнат, чтобы грязь и холодный воздух не проникали дальше. Удобная и эргономичная прихожая задаёт тон всему дому, создавая ощущение порядка и уюта.
Гостиная комната
Гостиная в планировке коттеджа должна быть просторной, светлой и удобной для отдыха всей семьи. Здесь важно продумать расположение мебели так, чтобы оставалось достаточно свободного пространства для передвижения. Хорошо, если комната имеет выход на террасу или объединена с кухней и столовой, создавая открытую и уютную зону. Продуманная гостиная становится центром дома, где собираются все члены семьи и проходят важные события, обеспечивая комфорт и гармонию.
Спальные комнаты
Спальные комнаты должны быть расположены в тихой части дома, подальше от гостиной и кухни, чтобы обеспечить полноценный отдых. Важно продумать достаточное естественное освещение и вентиляцию, а также наличие места для хранения одежды и личных вещей. Планировка должна быть удобной для каждого жильца, создавая атмосферу уюта и приватности. Правильное распределение спален делает дом комфортным для всех членов семьи и способствует здоровому сну.
Детская
Детская комната должна быть светлой, безопасной и функциональной. Важно предусмотреть зоны для игр, учебы и хранения игрушек и книг, чтобы ребёнок мог свободно перемещаться и развиваться. Планировка должна учитывать достаточное естественное освещение и удобное расположение мебели. Грамотно организованная детская создаёт комфортное пространство для ребёнка, где он чувствует себя защищённым и может развивать свои способности в уютной и безопасной среде.
Кухня
Кухня в коттедже должна быть удобной и функциональной, обеспечивая комфортное приготовление пищи и организацию бытовых процессов. Важно продумать рабочий треугольник — холодильник, плита и мойка должны находиться на оптимальном расстоянии друг от друга. Желательно наличие естественного освещения и хорошей вентиляции, а также продуманного места для хранения посуды и продуктов. Правильная планировка кухни делает её практичной и уютной, объединяя семью за совместными трапезами.
Санузлы
Санузлы в доме должны быть удобными и функциональными, с продуманным расположением унитаза, душа или ванны. Важно предусмотреть достаточное место для хранения полотенец и средств гигиены. По возможности лучше разделять туалет и душевую, чтобы обеспечить комфорт для всей семьи. Хорошая вентиляция и освещение создают приятную атмосферу и предотвращают появление влаги и неприятных запахов. Эргономичная планировка санузлов делает их практичными и удобными в повседневном использовании.
Кабинет и рабочая зона
Кабинет или рабочая зона в доме должны быть расположены в тихой части коттеджа, чтобы ничто не отвлекало от работы или учёбы. Важно обеспечить хорошее естественное освещение и продумать искусственное, особенно если планируется работа в вечернее время. Мебель следует расставить так, чтобы сохранялось свободное пространство для движения и хранения документов или техники. Кабинет можно разместить на втором этаже или в мансарде, если требуется уединение. Грамотно организованная рабочая зона делает пребывание дома комфортным и продуктивным.
Частые ошибки при планировке
При проектировании дома важно избегать распространённых ошибок, которые снижают комфорт и функциональность. Среди них — слишком много маленьких комнат, неудобное расположение окон, недостаток места для хранения и игнорирование вентиляции. Часто забывают о встроенной технике и неправильно ориентируют дом по сторонам света, что ухудшает освещённость и увеличивает расходы на отопление и электроэнергию. Осознание этих ошибок помогает создавать продуманную планировку домов в коттеджах, где удобно жить и легко поддерживать порядок.
Отсутствие встроенной техники
Отсутствие встроенной техники — частая ошибка при планировке, которая снижает функциональность помещений. Отдельно стоящая техника занимает много места, нарушает целостность интерьера и усложняет организацию рабочих зон, особенно в кухне. Встраиваемые холодильники, плиты и посудомоечные машины позволяют экономить пространство, делают интерьер более гармоничным и удобным в использовании. Планируя дом заранее с учётом встроенной техники, вы создаёте практичное и эстетичное пространство.
Неправильная ориентация дома
Неправильная ориентация дома по сторонам света может существенно повлиять на комфорт проживания. Если основные окна выходят на север, комнаты будут недополучать естественный свет, а зимой потребуется больше отопления. Наоборот, избыточное солнечное освещение с южной стороны летом может создавать перегрев. При планировке важно учитывать расположение жилых и рабочих зон: гостиная и кухня должны получать максимум света, а спальни лучше ориентировать на тихую сторону. Правильная ориентация делает дом уютным и экономичным.
Слишком много маленьких комнат
Слишком много маленьких комнат делает дом тесным и неудобным. Часто застройщики стремятся разделить пространство на отдельные зоны, но это приводит к ограниченному использованию площади и сложностям с расстановкой мебели. Лучше объединять некоторые функции, создавая просторные комнаты для кухни, гостиной и столовой, а приватные зоны — спальни и кабинет — планировать отдельно. Такой подход обеспечивает комфорт и визуальное ощущение простора в доме.
Игнорирование вентиляции
Игнорирование вентиляции в доме может привести к повышенной влажности, появлению плесени и неприятных запахов. Особенно важно продумать вентиляцию в кухне, санузлах и подсобных помещениях, где скапливается пар и тепло. Грамотная система воздухообмена обеспечивает свежий воздух во всех комнатах, поддерживает комфортный микроклимат и сохраняет здоровье жильцов. Планировка с учётом вентиляции делает дом практичным и безопасным для жизни.
Неправильное расположение окон
Неправильное расположение окон снижает комфорт и освещённость помещений. Окна, выходящие на север или шумные улицы, делают комнаты тёмными и холодными, а избыточное солнце летом — перегревает жильё. Важно заранее продумать размер, высоту и ориентацию окон, чтобы обеспечить равномерное естественное освещение, вентиляцию и уют в каждой комнате. Правильное размещение окон делает планировку домов в коттеджах функциональной и комфортной.
Недостаточно места для хранения
Недостаточно места для хранения — распространённая проблема в домах, которая снижает удобство и порядок. Если не предусмотреть шкафы, гардеробные, антресоли и ниши, вещи будут занимать свободное пространство, создавая ощущение беспорядка. Особенно важно планировать хранение в прихожей, кухне, санузлах и спальнях, чтобы каждая вещь имела своё место. Грамотная организация систем хранения делает дом функциональным, комфортным и эстетически привлекательным, позволяя использовать каждый квадратный метр рационально.
Полезные советы
При планировке дома важно учитывать несколько ключевых советов, которые делают пространство удобным и гармоничным. Не стремитесь к идеальной симметрии — иногда асимметрия выглядит интереснее и функциональнее. Используйте естественные материалы и продуманное освещение, чтобы создать уютную атмосферу. Планируйте мебель и системы хранения по размеру комнат, учитывая потребности всех членов семьи. Заблаговременно продумайте электрику, вентиляцию и запасы пространства для будущих изменений. Эти советы помогают создать практичный и комфортный каркасный дом.
Заключение
Правильная планировка в каркасном доме — залог комфорта, функциональности и уюта на каждый день. Продуманный проект учитывает количество и назначение комнат, потоки перемещения, естественное освещение и распределение зон по уровню активности. Избегая типичных ошибок — недостатка хранения, неправильного расположения окон или игнорирования вентиляции — вы создаёте удобное и безопасное пространство. Следуя советам по зонированию и организации помещений, ваш коттедж станет гармоничным, практичным и комфортным домом для всей семьи.
Читайте также
Как сделать дома звукоизоляцию от соседей своими руками
Тишина в собственной крепости — не роскошь, а базовое условие для полноценного отдыха и психического здоровья.
Подробнее ![]()
Где и как поставить дом на участке — требования и нормы расположения по сторонам
Планирование застройки — это не только вопрос эстетики, но и строгое соблюдение законодательства. Грамотное расположение дома на участке определяет комфорт проживания, безопасность и отсутствие проблем с государственными органами.
Подробнее ![]()
Как правильно рассчитать оптимальный размер площади частного дома
Выбор габаритов будущего жилья — это баланс между амбициями и здравым смыслом. Чтобы понять, какую площадь дома выбрать, недостаточно просто умножить количество жильцов на стандартные метры.
Подробнее ![]()
Как сделать освещение в частном доме
Грамотно спроектировать освещение в частном доме внутри — значит обеспечить комфорт и безопасность для каждого члена семьи.
Подробнее ![]()
Разновидности канализации в частном доме
Канализация — это то, о чем часто задумываются в последнюю очередь, когда строят дом, но это крайне важный аспект комфортного проживания. Ведь от правильного выбора системы напрямую зависит ваш быт и удобство
Подробнее ![]()
Значение крыши в загородном доме
Когда дело доходит до выбора кровельного материала, ошибки недопустимы. Правильное решение влияет на долговечность, функциональность и визуализацию дома, поэтому тут нужно всё взвесить.
Подробнее ![]()
Уход и эксплуатация каркасного дома
Каркасные дома, как показывает практика, завоевали большой интерес. И не зря. Они удачно сочетают энергоэффективность, экономичность и экологическую безопасность.
Подробнее ![]()
Зачем выбирать одноэтажный дом с террасой?
Одноэтажные дома с террасой – это не просто мода. Они действительно находят отклик у тех, кто предпочитает жизнь за городом, ценя простоту и комфорт. Чем же они так привлекательны?
Подробнее ![]()
Почему важно правильно выбрать напольное покрытие?
Когда дело доходит до обустройства дома, напольное покрытие играет ключевую роль. Каждое покрытие не только является эстетическим элементом, но и оказывает влияние на комфорт вашего дома. Представьте себе тёплое дерево под ногами зимой или прохладную плитку летом.
Подробнее ![]()
Особенности дизайна кухонь в частных домах
Создать кухню мечты в частном доме — задача с изюминкой. Здесь вы, как художник, можете позволить себе большую свободу действий, чем в стандартной городской квартире. Сравните: городской формат часто ограничивает ваши замыслы, тогда как простор частного дома открывает новые горизонты. Попробуем покопаться в нюансах.
Подробнее ![]()
Утепление фасада зимой: методы и материал
Возможно, кому-то утепление фасада зимой покажется странной идеей. Ведь традиционно считается, что строительные работы лучше оставить на тёплое время года. Но наш климат — штука неустойчивая.
Подробнее ![]()
Архитектурные стили в модульном строительстве
Модульное строительство стремительно набирает популярность. Почему? Да потому, что оно уникально в своём роде, предлагая нечто большее, чем просто скорость и экономичность. Здесь можно реализовать самые смелые архитектурные замыслы, адаптировав их под почти любые потребности и стили. Современные технологии и инновационные материалы только добавляют потенциала. Эти дома, по сути, стали символом гибкости – трудно даже поспорить.
Подробнее ![]()
Создание идеального дома для жизни и отдыха
Каким должен быть дом мечты? Это не только место проживания, но и место эмоционального роста и покоя. Ощущение безопасности и уюта, которое оно предоставляет, действительно уникально.
Подробнее ![]()
Обустройство идеального домашнего офиса для удаленной работы
Всё больше людей выбирает удаленную работу, и создание домашнего офиса теперь — не просто желание, а настоящая необходимость. Рабочее пространство должно вдохновлять, поддерживать вашу продуктивность и обеспечивать комфорт.
Подробнее ![]()
Выбор участка для модульного дома
Сегодня модульные дома завоевывают популярность как весьма экономичное и быстрое решение для собственного жилья.
Подробнее ![]()
Украшение дома и двора к Новому году
Новогодние украшения — это не просто традиция, это способ сотворить настоящую магию в доме и во дворе. В последние годы многие всё чаще задумываются об экологичности и минимализме, и эти идеи чётко отражаются в современных направлениях декора.
Подробнее ![]()
Необходимость утепления домов из бруса
Дома из бруса пленяют своими природными очертаниями и экологичностью. Но когда приходит зима, становится очевидной потребность в качественном утеплении.
Подробнее ![]()
Контроль влажности и предотвращение конденсата в квартире
Конденсат на окнах. Кто с этим не сталкивался? Это действительно огорчает многих владельцев квартир.
Подробнее ![]()
Точный расчет объема грунта при строительстве траншей и котлованов
Процесс создания траншей и котлованов — да, та часть строительных работ, к которой просто невозможно подойти спустя рукава.
Подробнее ![]()
Значение качества скважинной воды для частных домов
Качество воды из скважин — первостепенный аспект для безопасности и комфорта жизни в частных домах.
Подробнее ![]()
Главные «враги» древесины и как с ними бороться
Сегодня деревянные дома продолжают оставаться на пике популярности — и это неудивительно! В чём же секрет? Давайте разберемся.
Подробнее ![]()
Как избежать наледи и сосулек на крыше дома
Каждой зимой владельцы частных домов, и особенно модульных конструкций, нередко сталкиваются с одной неприятной проблемой — на их крышах образуются лед и сосульки.
Подробнее ![]()
Электрическое отопление частных домов
В последние годы электрическое отопление привлекает все больше внимания владельцев частных домов. Почему так? Во многом это благодаря его безопасности, простоте использования, а также возможности установки в отдалённых районах, куда газ не добирается. Электрические системы более гибкие — они не требуют газовых магистралей и предлагают много интересных преимуществ.
Подробнее ![]()
Каркасные и модульные дома: современные тенденции в строительстве
Каркасные и модульные дома в последние годы обретают всё большую популярность. Они становятся важной частью современного рынка жилищного строительства. Но почему же так?
Подробнее ![]()
Планкен — современный строительный материал
Современные строительные подходы всё больше ориентируются на экологичность, долговечность и удобство применимости. В это уравнение отлично вписывается планкен. Эти гладкие деревянные доски становятся трендом для облицовки фасадов и внутренних помещений. Давайте поближе разберёмся, что именно представляет собой планкен и почему он так популярен в строительных проектах.
Подробнее ![]()
Использование имитации бруса для внутренней и наружной отделки
В последнее время имитация бруса набирает популярность как универсальное решение для отделки недвижимости - как в городских джунглях, так и на загородных просторах. И да, неудивительно!
Подробнее ![]()
Внутренняя отделка дома — выбираем материалы и варианты
Внутренняя отделка деревянного каркасного дома варианты включают в себя множество решений.
Подробнее ![]()
Как поставить межкомнатную дверь своими руками: пошаговая инструкция
В этом пошаговом руководстве мы расскажем, как самому поставить межкомнатную дверь своими руками, подробно разобрав все этапы: от подготовки коробки до финишной установки.
Подробнее ![]()
Русская печь своими руками пошаговая инструкция
Как сложить русскую печь в доме своими руками из кирпича с лежанкой пошаговая инструкция.
Подробнее ![]()
Как правильно класть пеноблок своими руками
В этом руководстве мы подробно разберем, как класть пеноблок на раствор или клей своими руками, от выбора связующего материала до укладки последнего блока.
Подробнее ![]()
Утепление крыши в частном доме своими руками
Эффективное утепление крыши - один из самых важных шагов на пути к созданию по-настоящему комфортного и энергоэффективного дома.
Подробнее ![]()
Какой антисептик выбрать для бани
Без надежной защиты дерево быстро темнеет, поражается грибком и плесенью. Чтобы этого избежать, необходима правильная обработка.
Подробнее ![]()
Выбор материала для строительства деревянного дома: Оцилиндрованное бревно (ОЦБ) vs Профилированный брус (ПБ)
В наши дни, когда строительство деревянных домов стремительно набирает популярность, многие задаются вопросом: «Какой же материал выбрать?» Пожалуй, два из самых обсуждаемых — это оцилиндрованное бревно (ОЦБ) и профилированный брус (ПБ).
Подробнее ![]()
Каркасные бани: современный подход к строительству и эксплуатации
Сегодня, в эпоху стремительных технологических инноваций, каркасные бани становятся всё более актуальными. Ведь они удачно объединяют в себе передовые технологии и древние традиции, позволяя каждому создать уголок спокойствия в собственном дворе.
Подробнее ![]()
Конопатка сруба
Конопатка не только улучшает теплоизоляцию, но и защищает древесину от агрессивных атмосферных влияний. А это уже серьезная заявка на долгосрочное спокойствие и уверенность в надежности жилья.
Подробнее ![]()
Отопление в каркасном доме
Справиться с вопросом отопления без газа — это задача не из простых. Итак, как же обеспечить тепло и уют, когда магистральный газ недоступен?
Подробнее ![]()
Наружная отделка каркасного дома
Наружная отделка каркасного дома — вещь незаменимая. Представьте себе: она не только защищает от капризов природы, но и придаёт вашему дому уникальный вид. Да и условия проживания становятся более комфортными, а это не может не радовать!
Подробнее ![]()
Значимость вентиляции в частных домах
Вентиляция — невероятно важная вещь, без которой представить комфортное жилье сегодня невозможно. Она ключевая в создании безопасного микроклимата.
Подробнее ![]()
Какие камни купить в каменку для бани
Когда мы говорим о бане, в голове сразу теплые воспоминания о паре, расслаблении и уюте. Но что делает этот магический процесс таким особенным?
Подробнее ![]()
Что такое Канадская технология строительства
Канадская технология каркасного строительства покоряет мир благодаря удачному сочетанию экономичности, скорости возведения и комфортности проживания.
Подробнее ![]()
Что такое дуплекс в недвижимости
Иногда бывает сложно определиться с выбором жилья, ведь возможностей сейчас много — от городских квартир до загородных домов.
Подробнее ![]()
Каркасные пристройка к каркасному дому — пошаговая инструкция
Правильная каркасная пристройка — это и есть тот самый малобюджетный и быстрый апгрейд.
Подробнее ![]()
Принципы строительства из клееного бруса
Строительство дома из клееного бруса — это современный подход, который решает главные проблемы традиционной древесины.
Подробнее ![]()
Как и чем утеплить пол в деревянном доме
Деревянные дома обладают особым шармом, природная изоляция делает их уютными. Но есть один нюанс — теплопотери через пол.
Подробнее ![]()
Какое отопление лучше для каркасного дома: виды и варианты
Выбирая систему отопления для каркасного дома, необходимо учитывать комфорт и экономичность.
Подробнее ![]()
Какую баню сделать: из чего лучше строить, чтобы не прогадать
Из чего лучше строить баню? Почему выбор материала чрезвычайно важен? Дело в том, что от материала стен напрямую зависит функциональность и долговечность постройки.
Подробнее ![]()
Мансардный этаж: что это и кому он нужен?
Мансарда — этаж, образованный скатами крыши, назван по имени архитектора Франсуа Мансара, жившем еще в XVII веке. И с той поры вокруг него не утихают споры. Для кого-то комната со скошенным потолком — идеальное жилое пространство, а для кого-то — дорогое и неудобное излишество. Так кто же прав? Попробуем разобраться, рассмотрев все типы мансард, а также их функционал и планировку
Подробнее ![]()
Какой дом лучше каркасный или из газобетона
Сегодня мало кто может себе позволить кирпичный особняк или бревенчатый терем. Наибольшим спросом пользуются легкие дома, собранные по каркасной технологии или сложенные из газобетонных блоков. Такие постройки обходятся намного дешевле, и строятся быстро. Но какой из двух вариантов лучше? Что выбрать?
Подробнее ![]()
Как подобрать черепицу для дома
Времена, когда крышу можно было покрыть лишь соломой, дранкой или керамикой, давно уже канули в Лету. Современный рынок предлагает огромное количество кровельных материалов, и определиться с покупкой бывает непросто. Поэтому мы решили провести своего рода «ликбез», рассмотрев основные виды черепицы. Надеемся, это поможет нашему читателю определиться с тем, какую черепицу выбрать для кровли дома
Подробнее ![]()
Укладка тротуарной плитки своими руками: пошаговая инструкция
Тротуарная плитка — один из самых популярных материалов для мощения, что можно понять. Ведь это не только красивое, но также прочное и удивительно долговечное покрытие, которое может служить не одному поколению. Конечно, если правильно его уложить. В этом деле много нюансов и тонкостей, которые мы раскроем в данной статье
Подробнее ![]()
Ландшафтный дизайн: идеи и советы
Дачный участок — это только площадка для земледелия, но и место, где можно отдохнуть душой, наслаждаясь свежим воздухом и близостью к природе. Все чаще и чаще домовладельцы рассматривают свои «шесть соток» как собственный парк, создавая порой настоящие шедевры. И далеко не все приглашают для этого специалистов. Красивый ландшафтный дизайн дачного участка можно сделать своими руками. Но для этого, конечно, придется углубиться в тему.
Подробнее ![]()
Как сделать красивый металлический забор из профлиста своими руками: пошаговая инструкция
Профнастил — это гофрированный лист из холоднопрокатной стали с многослойной защитой от коррозии. Легкий, прочный и устойчивый к изгибу материал используют в самых разных областях строительства — от кровли до фундамента. Но чаще всего мы видим профнастил в ограждениях. Сегодня мы поговорим о том, как поставить простой, но правильный и красивый металлический забор из профнастила своими руками
Подробнее ![]()
Проекты каркасно-панельных домов
Проектирование загородного дома — задача со множеством неизвестных. Нужно не только иметь общее представление о том, каким будет будущее жилье, но определиться с количеством и размером комнат, санузлов и технических помещений, найти оптимальное место для террасы и балкона, разработать точные планы этажей. Сегодня мы поговорим о том, как выбрать из готовых решений или заказать строительство каркасных домов по индивидуальным проектам
Подробнее ![]()
Пруд своими руками на участке
Вода — источник жизни на планете — всегда успокаивает и радует глаз. К сожалению, не каждый может себе жизнь возле моря, реки или живописного озера. Но даже простому дачнику под силу создать личный водоем. Итак, сегодня мы расскажем о том, как сделать пруд на участке своими руками
Подробнее ![]()
Чем отличается дом от коттеджа?
Говоря о загородном жилье, мы зачастую употребляем слова «коттедж» и «загородный дом» как синонимы, полагая, что это одно и то же. Но как ни странно, между этими объектами недвижимости есть некоторые различия. Насколько они существенны? И что лучше выбрать? Разберемся в подробностях
Подробнее ![]()
Садовая дорожка: выбор идеи, планирование работ и самостоятельная реализация проекта
Тема нашей сегодняшней статьи — садовые дорожки своими руками. Мы поговорим о том, как спроектировать «пути сообщения» на участке, создать надежное и ровное основание и выбрать идеально подходящее по цене и качеству покрытие
Подробнее ![]()
Выставка «Красивые дома 2025»
Компания AET-HOME с гордостью сообщает об успешном участии в выставке «Красивые дома» - одном из самых крупных и значимых российских мероприятий, посвященных строительству, ландшафтному дизайну и смежным сферам. Мы были рады рассказать нашим гостям о том, как воплотить в жизнь свою мечту об идеальном загородном доме. А если у вас все еще остались вопросы, мы с удовольствием на них ответим
Подробнее ![]()
Приглашаем вас выставку «Красивые дома»!
С 10 по 13 апреля в 2025 года в МВЦ «Крокус Экспо» пройдет очередная Международная архитектурно-строительная и интерьерная выставка «КРАСИВЫЕ ДОМА» . Это площадка с многолетней историей, на которой вы сможете получить исчерпывающие консультации от архитекторов, строителей, дизайнеров, девелоперов и других специалистов рынка. Бизнесмены по консультации у профессионалов рынка на одной площадке в одно время позволяют всем участникам наиболее эффективно организовать бизнес-процессы. Частные посетители смогут выбрать всё для создания дома мечты.
Подробнее ![]()
Сколько лет прослужит каркасный дом — реальные цифры
Каркасная технология строительства с каждым годом становится все более и более популярной. Причин тому множество — и относительно невысокая цена, и быстрые сроки возведения, и высокие показатели теплосбережения. При этом бытует мнение, что такой коттедж в суровых реалиях нашего климата не прослужит и пары десятилетий. Но так ли это? Какой реальный средний срок службы каркасного дома?
Подробнее ![]()
Как выбрать утеплитель для каркасного дома
Утеплитель важен для любого дома, но для каркасного — особенно. Именно он составляет основу постройки, а обшивка, слои гидро- и пароизоляции второстепенны и служат для его защиты. От утеплителя в первую очередь зависит уют и долговечность жилища, в которое вкладываются огромные средства. Итак, тема нашей сегодняшней статьи - какой утеплитель лучше для каркасного и каркасно-панельного дома
Подробнее ![]()
Пошаговое руководство по созданию бетонного крыльца своими руками
Парадный вход — визитная карточка дома, и неудивительно, что многие стараются сделать его красивым и презентабельным. Но и о долговечности не стоит забывать. Бетонное крыльцо, залитое и отделанное по всем правилам, будет служить долгие десятилетия. Работу по его созданию можно поручить профессионалам, но это, как говорится, влетит в копеечку. А что, если попробовать самому?
Подробнее ![]()
Дренаж участка — зачем и как?
С приближением весны наступает пора задуматься о грядущих паводках. Они приносят немало проблем, смывая плодородный слой почвы и превращая в болото ухоженные лужайки. Переувлажненная почва способствует развитию плесени и грибка на стенах домов, застоявшиеся лужи портят покрытие дорожек. Но самая главная опасность — разрушение фундаментов. Даже самая надежная гидроизоляция не защитит основание дома, если не сделать дренаж
Подробнее ![]()
Молниезащита зданий: необходимость и разновидности
Многие из нас боятся грозы, и тому есть весомые причины. Напряжение при грозовом разряде достигает 50 000 000 В, а сила тока – 100 000 А. Удар молнии несет такое количество энергии, что огромные вековые дубы раскалываются пополам. От дома же могут остаться одни головешки. Впрочем, человечеству уже давно известно, как избежать катастрофы. Достаточно просто установить на крышу молниеотвод
Подробнее ![]()
Плюсы и минусы каркасного дома для круглогодичного проживания
Так называемые «каркасники» стремительно набирают популярность, особенно в последние годы. Что вполне объяснимо: у этой технологии масса достоинств, и основное — ценовая доступность. Впрочем, замалчивать недостатки таких построек было бы нечестно. В этой статье мы рассмотрим и то, и другое, а заодно поговорим о том, годятся ли каркасные и каркасно-панельные дома для того, чтобы жить в них круглый год
Подробнее ![]()
Как правильно регулировать окна самостоятельно
Едва ли не каждый горожанин хоть раз принимал звонок с навязчивым предложением отрегулировать окна. Домовладельцы тоже не обделены вниманием сомнительных «специалистов». Справедливости ради, они не являются мошенниками в прямом смысле слова — рамы окон и правда требуют техобслуживания. Но это нехитрую работу можно сделать и своими руками. Итак, тема нашего сегодняшнего разговора - как отрегулировать пластиковые окна самостоятельно
Подробнее ![]()
Как крепить вагонку: эффективные методы
Вагонка — едва ли не самый популярный материал для частного домостроения. Она может превратить потрепанную дачу в аккуратное шале, а тесную каморку - в уютное жилое пространство. Стоит вагонка недорого, да и работать с ней легко. С обшивкой справится любой, кто хотя бы пару раз держал в руках молоток и ножовку. Но в любом деле важно понимать не только основные принципы, но также детали и тонкости. В этой статье мы рассмотрим и общее, и частное
Подробнее ![]()
Как заделать стык между ванной и стеной?
Как бы тщательно не выравнивались стены санузла, ванна никогда не встает к ним вплотную. Остается зазор, который неизбежно станет причиной неприятностей, если его не заделать. Но чем? Ответ не так прост, как кажется на первый взгляд
Подробнее ![]()
Дизайн каркасного дома в стиле кантри
Деревенский стиль (он же стиль кантри) не выглядит как что-то трудновыполнимое. Оштукатурь стены, поставь грубую деревянную мебель, добавь занавески в цветочек и пару
Подробнее ![]()
Пластиковые и деревянные окна – какие лучше?
Пластиковые окна появились в РФ в далеком 1992 г. и совершили настоящую революцию на строительном рынке. Красивые, прочные, с плотным притвором, они разительно отличались от перекошенных «деревяшек», стоявших в старых домах. С тех пор прошло более 40 лет, и казалось бы, деревянные окна уже давно должны были уйти в прошлое, но нет. Они по-прежнему востребованы. Почему? И что выбрать — современное ПВХ или деревянную классику?
Подробнее ![]()
СИП-панели: что это и с чем их «едят»?
Дома из СИП-панелей — очередная разновидность столь популярных сегодня каркасников. Изобретенные в США, эти строительные плиты быстро завоевали популярность в Канаде и уже оттуда распространились по всему миру. Постройки такого рода теплые, прочные, доступные по цене и быстровозводимые. Но есть подвох. Точнее, объективные недостатки
Подробнее ![]()
Засохли акриловые краски. Как их спасти?
Появление акриловых красок стало отличной новостью не только для художников, но и для строителей. Яркая, прочная, долговечная, не восприимчивая к воде и ультрафиолету краска быстро набрала популярность, причем используют ее и для внутренней, и для внешней отделки домов. Но как быть, если дорогостоящая краска засохла? Неужели придется ее выбрасывать?
Подробнее ![]()
Наливные полы на основе бетона и гипса — как выровнять стяжку до идеала?
Бетонная плита, даже cамая надежная и качественная, не подходит для укладки плитки, ламината и уж тем более паркета. На её поверхности, всегда будут бугры, впадины, трещины и сколы. И прежде чем настилать дорогостоящее напольное покрытие, их необходимо выровнять. Каким образом? Об и пойдет речь в нашей статье
Подробнее ![]()
Внешняя отделка дома. Чем обшить фасады красиво и недорого?
Из чего бы ни был построен загородный дом, его стены требуют той или иной отделки. Материалов, способных превратить невзрачную коробку в уютное шале или викторианский особняк, великое множество. В этой статье мы разберем те, что пользуются наибольшей популярностью. Какой же может быть наружная отделка дома?
Подробнее ![]()
Зимнее бетонирование — как залить фундамент в мороз?
Заливка бетона требует сухой и теплой, 5-15°C, погоды, которая должна держаться неделю. Именно поэтому работы такого рода проводят летом. Но как быть, если в теплое время года фундамент залить не успели, а остановить стройку на полгода не представляется возможным? Единственный выход - производство бетонных работ в зимний период
Подробнее ![]()
Виды фасадных красок для наружных работ
Из всех способов декора фасада дома покраска была и остается самой популярной. Ведь это просто и относительно недорого. Но как выбрать краску? Современный рынок предлагает огромное количество отделочных материалов, причем самых разных - акриловых, силикатных, латексных и проч. В этой статье мы поговорим о каждой разновидности и поможем читателю найти оптимальный вариант. Итак, какие же бывают фасадные краски?
Подробнее ![]()
Фиброцементный сайдинг — обшивка на века
Для каркасно-панельных домов, которые предлагает компания AET-HOME, есть несколько вариантов отделки фасада, как природного, так и искусственного происхождения. Сегодня мы поговорим о материале, который сочетает в себе прочность бетона и красоту древесных волокон. Это — фиброцементный сайдинг
Подробнее ![]()
Что такое фальц и кликфальц. Какую кровлю выбрать?
Фальц кровля это полосы металла с загнутыми краями (они же — фальцевые картины), которые соединяют в единое полотно. Сегодня это одно из самых популярных покрытий в РФ, и тому есть веские причины. Первая и основная — в практически абсолютной герметичности. Это важно в тех широтах, где большую часть года с неба то льется вода, то падает снег. Но это еще не все
Подробнее ![]()
Технология и монтаж «Мокрого» фасада
Как сохранить «погоду в доме»? В холодное время года этот вопрос становится особенно актуален. По подсчётам специалистов до 50% драгоценного тепла уходит через стены. Существует множество способов их утепления. Сегодня мы поговорим о так называемом «мокром» фасаде
Подробнее ![]()
Навесной вентилируемый фасад. Обшил и забыл
Фасады загородного нуждаются в неустанной заботе. Штукатурку приходится подновлять, дерево — красить или пропитывать антисептиками, а с облицовочного кирпича смывать неизбежные высолы. Каждая такая процедура отнимает много времени, сил, и, что печальнее всего, денег. Хочется, чтобы стены сами "сохраняли лицо". И как ни удивительно, такая обшивка есть. Точнее, это целая система, и имя ей - навесной вентилируемый фасад
Подробнее ![]()
Как правильно расположить дом по сторонам света: ориентация на участке
Вопрос правильного расположения дома на участке намного важнее, чем кажется на первый взгляд. Совершив ошибку, придется заплатить за нее холодной спальней, перегретой кухней, неуютной гостиной и темной детской. Еще на стадии разработки проекта нужно четко определиться с тем, какие комнаты развернуть поближе к солнцу, а какие, напротив, увести в тень. Это не только обеспечит комфорт жильцам, но и поможет сэкономить на кондиционировании и отоплении
Подробнее ![]()
Как правильно выбрать затирку для плитки?
Ремонт ванной комнаты в доме — задача с множеством неизвестных. Буквально на каждом шагу нас ждут сюрпризы, причем неприятные и дорогостоящие. Так что, закончив облицовочные работы, мы меньше всего думаем о плиточной затирке, ведь от нее, казалось бы, ничего не зависит. Но это не так. Ошибившись в выборе смеси, можно заметно сократить срок жизни плитки, а то и вовсе испортить ее. Тема нашей сегодняшней статьи - как выбрать затирку для плитки
Подробнее ![]()
Свайно-винтовой фундамент: за и против
Фундамент — самая затратная часть в бюджете на строительство дома. Желание сэкономить на нем более чем понятно. И если для тяжелых кирпичных домов вариантов, по сути, нет, то для относительно легких каркасно-панельных строений можно подобрать альтернативу монолитной железобетонной плите или «ленте». Речь идет о свайно-винтовом фундаменте. Это относительно новая разработка с каждым днем становится все более популярной. А значит, стоит разобраться, что она собой представляет. Итак, тема нашего сегодняшнего разговора - свайно-винтовой фундамент плюсы и минусы
Подробнее ![]()
Плюсы и минусы одноэтажных домов
Раньше, строя дом, мы стремились создать нечто большое, монументальное, переходящее от поколения к поколению. Но сегодня концепция «родового гнезда» уходит в прошлое. Потеряв счет экономическим кризисам, мы стали более рационально подходить загородному жилью, поглядывая в сторону компактных одноэтажных коттеджей. В 2024 году они занимают почти 60% от всего построенного объема. А значит, стоит рассмотреть их достоинства и недостатки
Подробнее ![]()
Что такое ЦСП?
Для фасадов и внутренних перегородок компания AET-HOME использует ЦСП, и тому есть весомые причины. Композит из противоречивых, казалось бы, материалов (цемента и древесной стружки) обладает поистине удивительными свойствами, которые в полной мере соответствуют нашим высоким требованиям
Подробнее ![]()
Зачем нужна пароизоляция в доме?
Стены, крыша и перекрытия каркасно-панельного дома имеют сложную многослойную структуру. Но если гидороизоляция, защищающая утеплитель снаружи, не вызывает вопросов, то лежащая внутри пароизоляция может показаться лишней. Зачем нужна эта мембрана, удорожающая проект? Откуда берется водяной пар и чем он опасен? И наконец, как выбрать пленку, если без нее не обойтись?
Подробнее ![]()
Планировка в каркасном доме
Планировка загородного дома — критически важный вопрос. Даже высокие потолки и большие окна не сделают дом уютным, если приходится петлять по бессмысленным коридорам или натыкаться на мебель в тесных комнатах. Наша компания бесплатно разрабатывает для каждого заказчика индивидуальный проект с учетом всех его требований. В этой статье мы проведем лишь небольшой «ликбез» об основных принципах планировки жилья и наборе необходимых/опциональных помещений
Подробнее ![]()
Как защитить древесину от гниения и горения?
Большинство современных загородных домов имеют в своей конструкции детали из древесины. У этого материала немало преимуществ — ценовая доступность, простота обработки, эстетичный внешний вид, экологическая чистота и проч. Но есть и недостатки — уязвимость к огню и вредоносным микроорганизмам. Можно ли решить эти проблемы? И если да, то каким образом?
Подробнее ![]()
Стеклообои – что это и зачем?
Подобрать идеальные обои с каждым днем становится все труднее. И дело не только в разнообразии расцветок и узоров. Даже в материале изготовления приходится разбираться. Бумажные, виниловые, текстильные, деревянные… Сегодня мы поговорим о стеклянных
Подробнее ![]()
Как отремонтировать стяжку пола
При ремонте в квартире или дома одной из самых больших проблем является старая цементная стяжка. Ее демонтаж — это клубы цементной пыли, горы строительного мусора и конфликты с соседями из-за шума перфоратора. Впрочем, если состояние стяжки не катастрофично, ей можно вернуть былую прочность. Итак, тема нашего сегодняшнего разговора — ремонт стяжки полов своими руками
Подробнее ![]()
Время года для строительства дома: когда лучше начинать?
Строительство загородного дома — дело долгое. И если речь не идет о каркасно-панельном доме, который собирают на объекте за несколько дней, работы могут растянуться на год и больше. Поэтому так важно начать их вовремя. Это поможет свести к минимуму все проблемы, связанные с капризами погоды, и подгадать к сезонным скидкам на материалы и услуги строителей. Итак, какое время года для строительство дома лучше?
Подробнее ![]()
Плитный железобетонный фундамент для дома
Для своих домов компания AET-HOME рекомендует плитный монолитный железобетонный фундамент. Прежде всего потому, что он — наиболее прочный и надежный среди мелкозаглубленных. Но это не единственный его плюс
Подробнее ![]()
Камин — эффективный отопительный прибор или украшение интерьера?
Трудно представить себе загородный дом без камина. Воображение рисует любимое кресло, мягкий плед и причудливую игру пламени, танцующего на поленьях. В реальности же плед может понадобиться из практических соображений, ведь далеко не каждый камин является эффективным отопительным прибором. В этой статье мы расскажем, какие виды каминов для дома действительно дарят тепло.
Подробнее ![]()
Виды фундамента под забор: выбираем подходящий
По окончании строительства загородного дома наступает время заняться ограждениями. И подходить к этому нужно ответственно, иначе в самый неподходящий момент забор может попросту рухнуть. Самое важное — сделать надежное основание. В этой статье мы поговорим о том, какие бывают виды фундамента для забора и как не ошибиться с выбором.
Подробнее ![]()
Битумная черепица — плюсы и минусы
Чаще всего наши заказчики выбирают для своих домов https://aet-home.ru/projects/ металлилическую кровлю кликфальц, но мы предлагаем и другие варианты. Например, битумную черепицу, у которой также есть немало поклонников. Более того, многие считают ее идеальным покрытием. Но так ли это? Давайте разберемся
Подробнее ![]()
Почему трескается фасадная штукатурка?
Штукатурка — популярнейший материал для фасада, проверенный столетиями эксплуатации. Но в последнее время эта отделка стала сдавать свои позиции. Бытует мнение, что она недолговечна. Говорят, что какой бы качественной не была штукатурка, через пару лет стены неизбежно растрескиваются. Так ли это?
Подробнее ![]()
Виды цокольного сайдинга и основные отличия от обычного
Мы привыкли воспринимать сайдинг как материал для отделки фасадов. Но есть и особая его разновидность — обшивка, которая настолько прочна и долговечна, что выдерживает огромные нагрузки, ложащиеся на нижнюю часть здания. И она заслуживает подробного рассмотрения. Итак, что такое цокольный сайдинг?
Подробнее ![]()
Как выбрать цвет фасадной краски: советы дизайнера
Отделка фасадов, как правило, означает, что стройка уже закончена. Последний рывок, и в дом можно заселяться. Но… в какой цвет покрасить дом? Нанимать дизайнера ради одной этой задачи нерационально, а самому страшно ошибиться, ведь перекраска, если что, будет стоить немалых денег. Очевидно, что к выбору краски для фасада дома нужно относиться серьезно
Подробнее ![]()
Как выбрать звукоизолирующее окно?
Переезжая за город, мы стремимся к тишине и спокойствию, но избавиться от раздражающего шума не так-то легко. Причиной могут быть соседи, не представляющие себе отдых без шансона, птичий гомон, собачий лай, лягушки в пруду и многое, многое другое. Решение всех этих проблем одно — окна с шумоизоляцией.
Подробнее ![]()
Каркасно-панельный дом — от начала до конца
Как говорили персонажи старого мультика, «лучше день потерять, потом за пять минут долететь». Четко расписанные этапы строительных работ с привязкой по времени помогают избежать хаоса и свести к минимуму непредсказуемые расходы. И особенно это касается подготовки участка и закладки фундамента. Ошибки на этой стадии часто бывают фатальными. В этой статье мы поговорим о том, что такое каркасно панельная технология строительства домов и как не “наломать дров” при возведении.
Подробнее ![]()



